イベント情報
家族みんなの“暮らし方”を大切にしたお住まい(西区寺地)
  • 見学会・オープンハウス

家族みんなの“暮らし方”を大切にしたお住まい(西区寺地)

場所
日程
2026/01/01(木) ~ 2026/01/14(水)
時間
10:00~17:00【予約制】
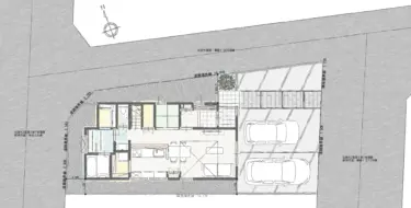
間取り
3LDK 延床面積:98.54㎡(29.8坪)

家族みんなの“暮らし方”を大切にしたお住まい

 

やさしい色合いの外観に、光と開放感あふれる吹き抜けのあるLDK♩

 

畳ヌックはこもり感が心地よく、読書や遊びにぴったり!

 

冷蔵庫も置けるWIC付きパントリーと1Fファミリークローゼットで暮らしもスッキリ快適に◎

 

– みどころポイント –

 

✅小上がり仕様でこもれる環境が心地よい畳ヌック

✅大容量ウォークインパントリー

✅1Fのファミリークローゼット

 

見どころたっぷりの見学会、ぜひお気軽にご来場ください🏠

参加方法

予約制のため、事前にご予約頂いた上でご参加ください。

※1.サイトからのご予約はご来場前日の15時にて締切とさせて頂きます。
※2.締切以降の来場のご希望は、お電話にてスタッフまで直接ご相談下さい。
※3.先着順のため、止むを得ずお時間のご変更やお断りをさせていただく場合がございます。