イベント情報
【4棟同時見学】異なるライフスタイルを一度に体感!江南区五月町 住宅完成見学会 – それぞれの暮らし方が見つかる貴重な機会
  • イベント

4つの個性豊かな住まいを一日で見比べ、あなたにぴったりの暮らし方がここで見つかります

【4棟同時見学】異なるライフスタイルを一度に体感!江南区五月町 住宅完成見学会 – それぞれの暮らし方が見つかる貴重な機会

場所
日程
2025/09/01(月) ~ 2025/09/30(火)
時間
10:00~17:00【予約制】

- イベント詳細 -

 

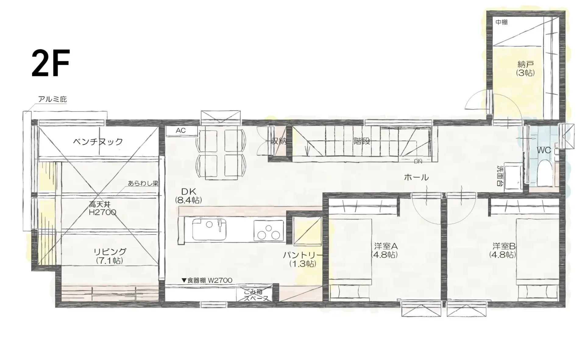
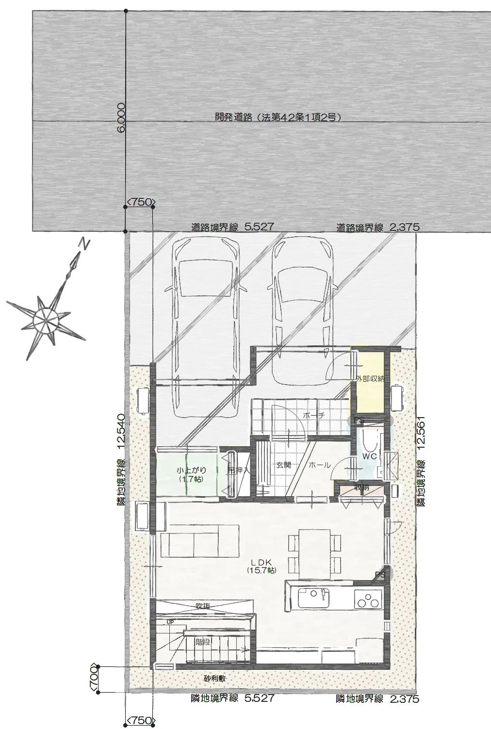
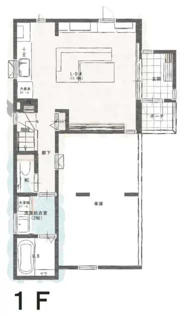
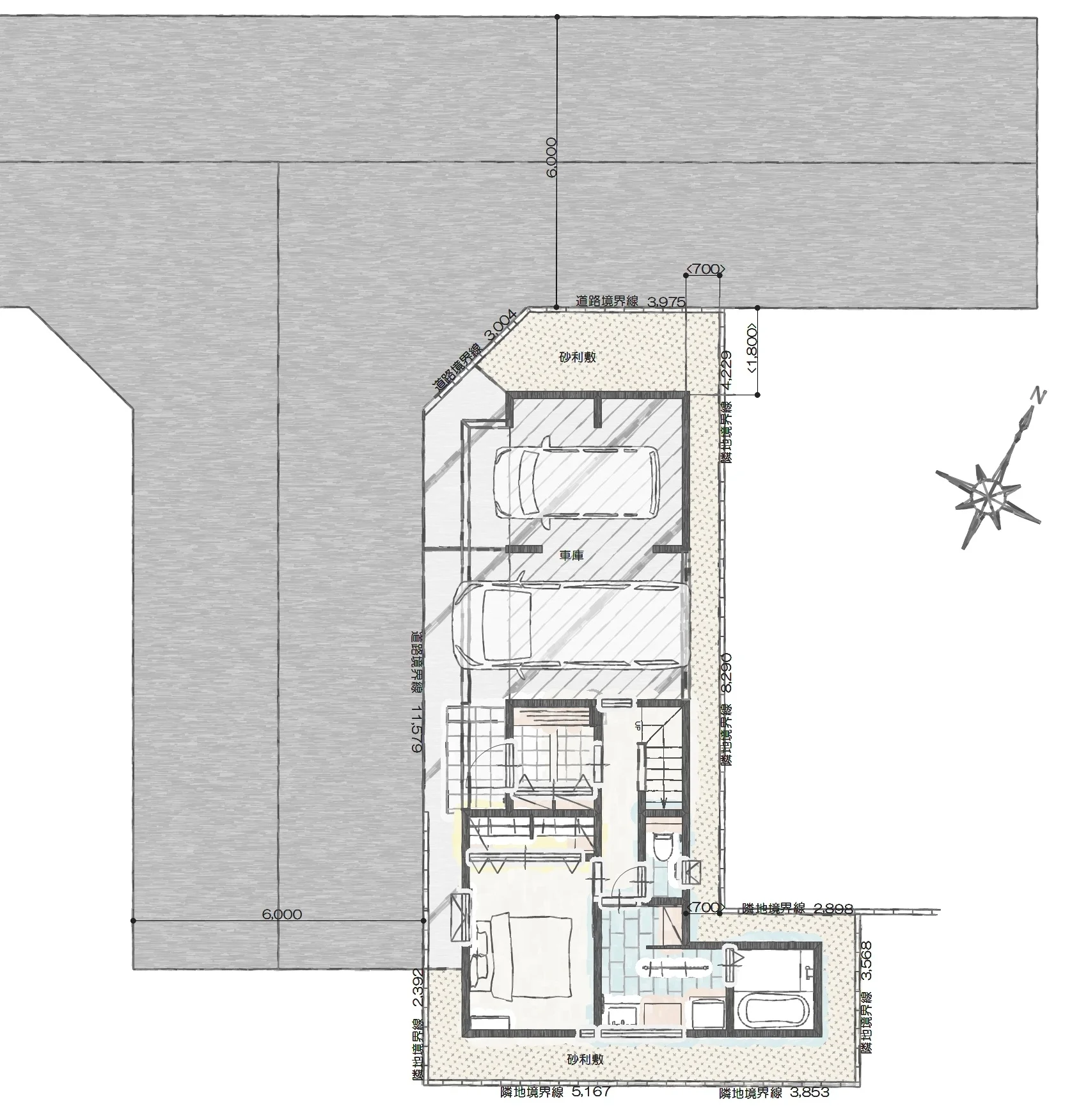
\ 4棟同時 住宅完成見学会開催! /

 

同じ敷地内に建つ4棟の完成住宅を同時にご見学いただける、またとない機会!

 

それぞれ異なるコンセプトで設計された住まいを短時間で効率よく見比べることで、ご家族にとって最適な住まいの形を発見していただけます。

 

通常なら複数の現場を回る必要がある住宅見学が、一箇所で完結🌟

 

ご家族それぞれの好みや価値観を確認しながら、理想の住まい像を具体的に描いていただけます。

 

経験豊富なスタッフが各棟の特色や住み心地について詳しくご説明いたします。

 

この機会にぜひご来場ください!🏠

参加方法

予約制のため、事前にご予約頂いた上でご参加ください。

※1.サイトからのご予約はご来場前日の15時にて締切とさせて頂きます。
※2.締切以降の来場のご希望は、お電話にてスタッフまで直接ご相談下さい。
※3.先着順のため、止むを得ずお時間のご変更やお断りをさせていただく場合がございます。