ステーツトップ » 土地・建売住宅 » 山梨県 » 甲府市上町M 建売住宅 3,630万円

土地・建売住宅

建売住宅

甲府市上町M 建売住宅 3,630万円

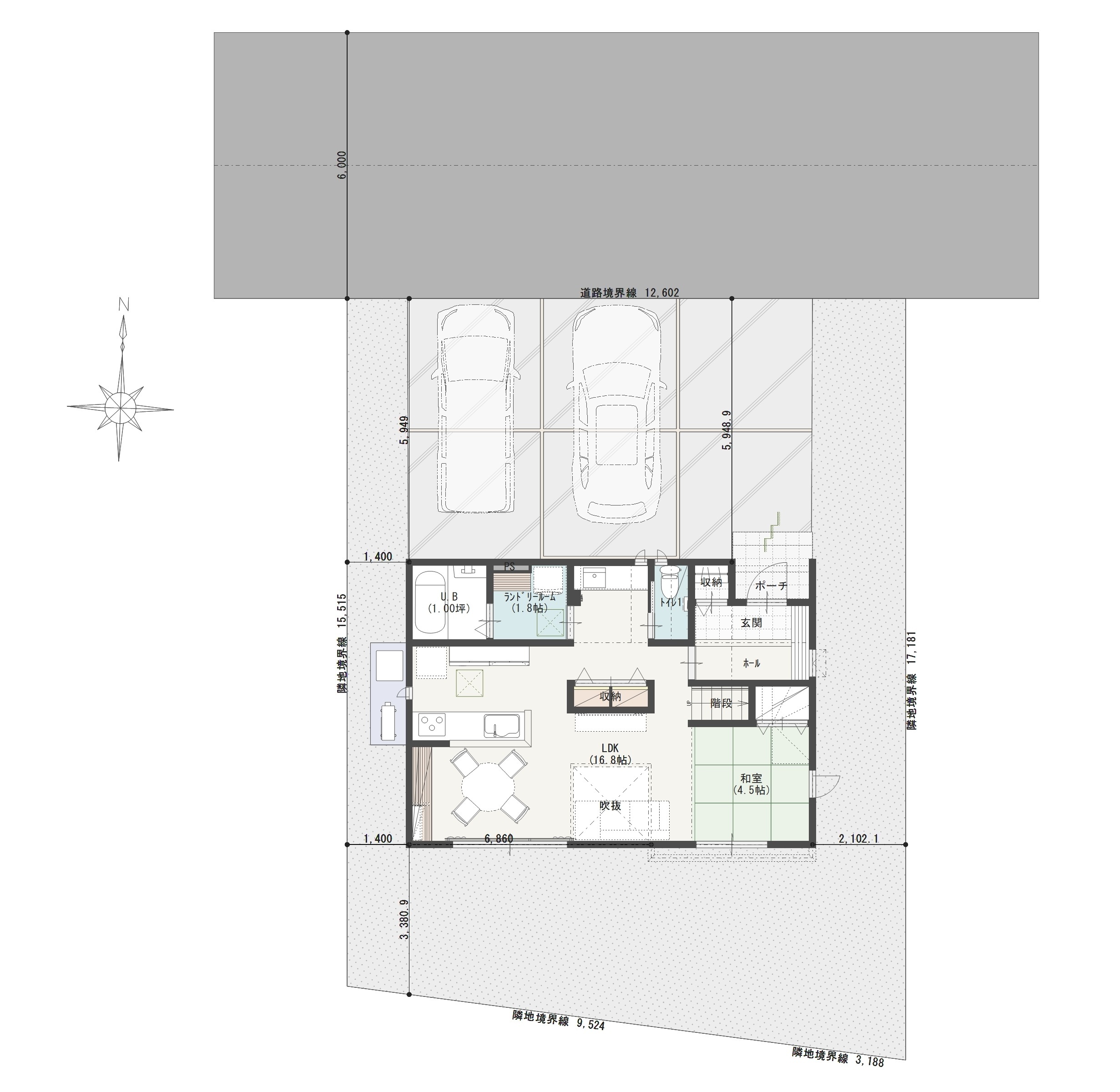
間取り図

1階
甲府市上町M 建売住宅 3,630万円 見取り図:1階
2階
甲府市上町M 建売住宅 3,630万円 見取り図:2階
建物配置図
甲府市上町M 建売住宅 3,630万円 見取り図:建物配置図
2026年4月完成予定!

《◆完成前購入特典付!》
豪華♪『家具セット&カーテン(合計80万円相当)』 サービス!

山城小学校・コンビニ徒歩圏内!
甲府バイパスから各方面へのアクセスがしやすく、陽当たりも良好♪
販売価格
3630万円
間取り
3LDK
築年月
2026年4月 新築
所在地
甲府市上町
GoogleMapで見る
交通
(最寄り駅)身延線 「甲斐住吉」 車で6分
(バス停)コミュニティバス「山城郵便局」 徒歩3分
建物面積
107.37㎡(32.47坪)
土地面積
206.41㎡(62.43坪)
小学校区
山城小学校
中学校区
城南中学校

物件のおすすめポイント

物件のPoint

●甲府市立病院(車で5分)、小瀬こどもクリニック(小児科)徒歩2分で通院時も安心。
●駐車3台以上可
●陽当たりの良いLDK+4.5帖の和室も嬉しいポイントです♪
●玄関から直接アクセス可能!リビング・キッチン側からもグルッと回れる”アイランド式”パントリー。
●水回りスペースを1ヶ所にまとめることで家事時間を短縮。
●毎日の身支度が楽しくなる、オシャレな造作洗面カウンター。
●2Fのフリースペースは室内干しができるサンルームとしても大活躍!
●2Fホールにはお布団専用の収納を設置。

◆ ---お引渡しについて--- ◆
完成後、約半年間は展示場として開放しますので引渡しは2026年10月以降~になります。

*━━ STATESの品質 ━━*

◆「耐震等級3」最高ランクで地震に強い家
◆ 住宅性能評価付
◆ 大切な住まいを熱から守る『省令準耐火構造』、火災保険料もお得に。
◆ 住み始めてからも安心の「最長60年保証&無償点検」+設備保証もセットされた長期保証とアフターサービスをご用意。

《 月々の返済例 》

◆【甲府市上町M】建売住宅 ご購入の場合
 (2025年11月現在)

---------------
[月々の返済額]86,776円
 ※ボーナス払いなしの場合
---------------

■諸条件
[価 格] 3,630万円
[頭 金]   100万円
[借入金] 3,530万円
[金利タイプ]変動金利
[金 利]   0.85%
[借入先/借入年数] 山梨中央銀行/40年
※ローン諸費用別途

設備・仕様

水回り
バス1坪以上 追焚機能 浴室暖房 浴室乾燥機 トイレ2ヶ所(1F:温水洗浄便座、2F:暖房便座) 造作洗面台 室内物干し 省エネ給湯器 サンルーム
キッチン
IHクッキングヒーター システムキッチン グリル 食器洗浄乾燥機 浄水器内蔵ハンドシャワー水栓
収納
パントリー ウォークインクローゼット 玄関収納 床下収納
照明器具
照明器具 人感センサー付照明 ダウンライト 
ライフライン
電気 上水道 下水道
断熱・空調
エアコン2台 複層ガラス Low-Eガラス
セキュリティ
ダブルロックドア モニタ付インターホン ポケットキー 火災警報器(報知機)
耐震仕様
耐震等級3

物件情報

販売価格
3630万円
間取り
3LDK
構造・工法
木造
駐車場
3台以上
現況
建築中
引渡しについて
2026年10月 予定 (※完成後、約半年間は展示場として開放しますので引渡しは2026年10月以降~になります。)
名称
甲府市上町M 建売住宅 3,630万円
所在地
甲府市上町
小学校区
山城小学校
中学校区
城南中学校
用途地域
無指定
土地権利
所有権
建ぺい率
60%
容積率
200%
都市計画
調整区域
建築確認番号
第2025確認建築静建住ま06951号
取引態様
売主
地目
宅地
接道状況
北側:6m 公道 接面12.6m
地勢
平坦
備考
■土地+建物+外構工事セットの価格です。

周辺環境

  • 買い物
    オギノ上今井店(■車で約7分)
    距離1500m
  • 買い物
    セブンイレブン甲府山城店
    距離400m
  • 買い物
    サンドラッグ上今井店(■車で約7分)
    距離1500m
  • 買い物
    DCM甲府住吉店(■車で約6分)
    距離1400m
  • 教育
    甲府市立城南中学校 (※自転車通学可)
    距離2200m
  • 教育
    甲府市立山城小学校
    距離850m
  • 教育
    幼保連携型認定こども園 かほる保育園
    距離600m
  • 教育
    山梨英和カートメルこども園(■車で約3分)
    距離600m
  • 病院
    市立甲府病院 (■車で約5分)
    距離1600m
  • 病院
    小瀬こどもクリニック(小児科)
    距離150m
  • 公共機関
    甲府山城郵便局
    距離450m
  • 公共機関
    小瀬スポーツ公園 (■車で約7分)
    距離1500m

アクセスマップ

土地・建売物件の
お問い合わせはこちらから

お電話でのお問い合わせ

フリーダイヤル0120-666-940
[受付時間]10時〜18時

物件をご覧になりたい方

この物件に関するお問い合わせ

物件お問い合わせフォーム

押し売り営業は一切いたしません。
安心してご入力ください。

必須
必須
必須
必須
必須
必須
「プライバシーポリシー」をご確認いただき、ご同意いただければ確認画面へお進み下さい。