- 建売住宅
3400万円(税込)
【最寄り駅】伊予鉄道城南線 道後公園 徒歩28分
【バス停】伊予鉄バス「東野」 徒歩5分
- 電話問い合わせ(無料)
-
フリーダイヤル 0120-666-940
【受付時間】10時~18時
物件の特徴
災害時も安心『☀ 太陽光パネル ☀』搭載。
家計に優しい、省エネ住宅♪
スーパーが近い♪生活便利な立地!
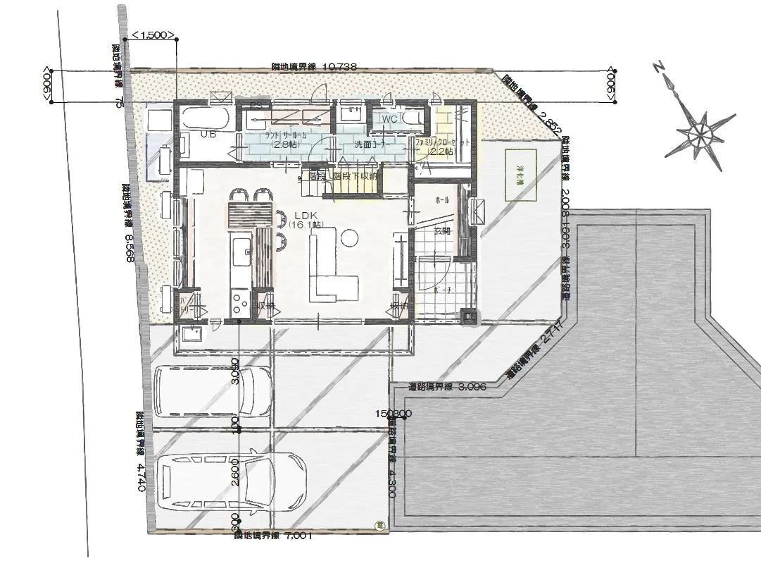
LDK16帖+光と風を感じる大開口の窓で明るく開放的なリビング空間
物件のおすすめポイント
.✦─── 物件のPoint ───✦.
■ キッチンカウンターに沿ってL字型に配置したダイニング。オシャレなバーカウンター風に♪
■ 弊社専属のインテリアコーディネーターがこの建売のために厳選した家具セット付
■ 約3帖分ある大きいランドリールームは毎日のお洗濯もストレスなく干せます。
■ 一直線にまとめた水廻り動線。洗濯物は東側のファミリークローゼットへササッと収納!
■ 静かな環境に南側道路で陽あたり良好!駐車スペースは3台分確保。
■ 晴れた日は2Fのバルコニーで天日干しOK!お布団も広げて干せます♪
■ チタングレーに木目調の外壁でスタイリッシュな外観。
■ 耐震等級3・ZEH仕様・準耐火仕様のステーツの建売住宅!
.✦─── STATESの魅力 ───✦.
◆ 「耐震等級3」最高ランクの地震に強い家
◆ 住宅性能評価付き!ZEHを超える高断熱性能の基準「HEAT20 G1グレード」対応
◆ 住み始めてからも安心のサポートと充実保証「最長60年の保証&無償点検」
キッチン・トイレ等の設備 10年保証付。
■ 月々の返済例
■【松山市東野A】建売住宅
借入金額 3,500万円 の場合
(2026年5月現在)
―――――――――――――――
[月々の返済額] 89,329円
※ボーナス払いなしの場合
―――――――――――――――
■諸条件
[総予算] 3,582万円
[頭 金] 100万円
[借入額] 3,500万円
[金 利] 1.050%(変動金利)
[借入先/借入年数] 伊予銀行 (40年返済の場合)
※[総予算]35,826,393円( ローン諸費用・諸経費を含む )
※表示の返済額は一例であり、条件により異なります。
- 電話問い合わせ(無料)
-
フリーダイヤル 0120-666-940
【受付時間】10時~18時
物件情報
- 物件名
- 松山市東野A 建売住宅 3,400万円
- 価格
- 3400万円
- 間取り
- 3LDK
- 販売戸数
- -
- 総戸数
- -
- 土地面積(㎡)
- 139.15㎡(42.09坪)
- 建物面積(㎡)
- 92.32㎡(27.92坪)
- 私道負担・道路
- 南東4.3m 公道 接面7.4m
- 完成時期(築年月)
- 2024年09月
- 住所
- 松山市東野2丁目GoogleMap
- 交通
- 【最寄り駅】伊予鉄道城南線 道後公園 徒歩28分
【バス停】伊予鉄バス「東野」 徒歩5分 - 構造・工法
- 木造
- 駐車場
- 3台分
- 現況
- 完成済
- 引き渡しについて
- 要相談
- 小学校区
- 松山市立桑原小学校
- 中学校区
- 松山市立桑原中学校
- 用途地域
- 1種低層
- 土地権利
- 所有権
- 建ぺい率
- 50%
- 容積率
- 80%
- 都市計画
- 市街化区域
- 建築確認番号
- 第2023建確-3017号
- 取引態様
- 売主
- 地目
- 宅地
- 地勢
- 平坦
- 備考
- -
- 電話問い合わせ(無料)
-
フリーダイヤル 0120-666-940
【受付時間】10時~18時
周辺環境

セブンスター石手店(1100m)

一里木マルシェ(1300m)

ローソン松山東野二丁目店
(190m)

くすりのレデイ道後石手店
(400m)

松山市立桑原中学校
(1100m)

松山市立桑原小学校
(1000m)

医療法人友朋会栗林病院
(1400m)

松山正円寺郵便局(700m)

伊予銀行東野支店
(500m)

正円寺公園
(350m)
設備・仕様

バス1坪以上

追焚機能

浴室暖房

浴室乾燥機

トイレ2ヶ所

タンクレストイレ

温水洗浄便座

シャワー付洗面化粧台

室内物干し

省エネ給湯器

IHクッキングヒーター

システムキッチン

グリル

食器洗浄乾燥機

浄水器

クローゼット

床下収納

照明器具

人感センサー付照明

ダウンライト

電気

上水道

浄化槽

太陽光発電システム

複層ガラス

エアコン2台以上

ダブルロックドア

モニタ付インターホン

ディンプルキー

火災警報器(報知機)

耐震等級3
物件見学・お問い合わせフォーム
押し売り営業は一切いたしません。
安心してご入力ください。


