- 建売住宅
3540万円(税込)
JR信越本線 亀田 徒歩14分
- 電話問い合わせ(無料)
-
フリーダイヤル 0120-666-940
【受付時間】10時~18時
物件の特徴
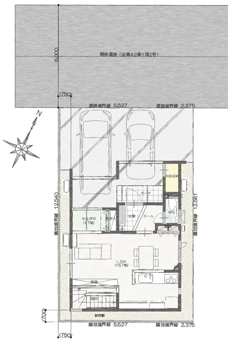
~車庫・外部収納・吹抜・小屋裏など暮らしの工夫を詰め込んだ27坪の家~
車庫・外部収納・小上がり・吹き抜け・小屋裏収納・
ガス衣類乾燥機「幹太くん」など、暮らしに嬉しい工夫が充実。
イオン亀田店やスターバックスコーヒーをはじめ、スーパーやドラッグストアが徒歩圏内に充実。
保育園・小中学校も徒歩10分以内で、毎日の暮らしも子育ても安心のロケーションです。
物件のおすすめポイント
物件のPoint
● タイヤ、車・ガーデニング用品などの収納場所に便利な外部収納付き
● リビング:壁掛けTV設置用に階段の壁を有効利用。TV下スペースはニッチ収納を造作。
吹抜け+FIX窓から差し込む陽光が明るくあたたかい雰囲気を作り出します。
● 小上がり+LDK合わせて約17.5帖。
お子様の遊び場や家事スペースとして使用できます。
● ボリューム感のある約2.7mの食器棚は、食器・カトラリー、鍋等の他、ストック品や食材を入れてもOK!
お気に入りの食器やカップをコレクションする楽しみも…♪
● 洗面脱衣室にはパワフルな熱量でふんわり乾かす、人気のガス衣類乾燥機『乾太くん』を設置。コスト面も◎
● たっぷり大容量8帖分の小屋裏収納
● ステーツの家は、最高ランク「耐震等級3」、火災に強い「省令準耐火構造」、
「最長60年保証&無償点検」など、安心と安全の標準仕様
▶価格改定しました!
※旧価格3550万円(公表:2025/7/31)→3540万円(価格改定:2025/12/13)
《 月々の返済例 》
◆【江南区五月町B】建売住宅 ご購入の場合
(2025年12月現在)
―――――――――――――――
[月々の返済額]83,767円
―――――――――――――――
※ボーナス払いなしの場合
■諸条件
[価 格] 3,540万円
[頭 金] 100万円
[借入金] 3,440万円
[金利タイプ]変動金利
[金 利] 0.8%
[借入年数] 40年
※ローン諸費用別途
- 電話問い合わせ(無料)
-
フリーダイヤル 0120-666-940
【受付時間】10時~18時
物件情報
- 物件名
- 江南区五月町B 建売住宅 3,540万円
- 価格
- 3540万円
- 間取り
- 3LDK
- 販売戸数
- -
- 総戸数
- -
- 土地面積(㎡)
- 99.15㎡(29.99坪)
- 建物面積(㎡)
- 89.00㎡(26.92坪)
- 私道負担・道路
- 北6.0m 接面7.9m
- 完成時期(築年月)
- 2025年07月 新築
- 住所
- 新潟市江南区五月町2丁目GoogleMap
- 交通
- JR信越本線 亀田 徒歩14分
- 構造・工法
- 木造
- 駐車場
- 2台分
- 現況
- 完成済み
- 引き渡しについて
- 要相談
- 小学校区
- 亀田西小学校
- 中学校区
- 亀田西中学校
- 用途地域
- 1種中高
- 土地権利
- 所有権
- 建ぺい率
- 60%
- 容積率
- 200%
- 都市計画
- 市街化区域
- 建築確認番号
- 第R06-2022号
- 取引態様
- 売主
- 地目
- 宅地
- 地勢
- 平坦
- 備考
- ■土地+建物+外構セットの価格です。
- 電話問い合わせ(無料)
-
フリーダイヤル 0120-666-940
【受付時間】10時~18時
周辺環境

イオンモール 新潟南(■車で約6分)(1700m)

アピタパワー新潟亀田店(■車で約5分)(1100m)

ラ・ムー亀田店(250m)

イオン亀田店(■車で約3分)(500m)

スターバックスコーヒー新潟亀田店(■車で約4分)(1000m)

ウオロク亀田店(■車で約3分)(800m)

セブンイレブン新潟亀田四ツ興野店(210m)

マツモトキヨシ亀田店(500m)

新潟市立亀田西中学校(800m)

新潟市立亀田西小学校(500m)

新潟市立亀田第四保育園(700m)

愛仁会亀田第一病院(600m)

江南区役所(1100m)
設備・仕様

バス1坪以上

追焚機能

浴室暖房

浴室乾燥機

トイレ2ヶ所

タンクレストイレ

温水洗浄便座

シャワー付洗面化粧台

省エネ給湯器

IHクッキングヒーター

オープンキッチン

システムキッチン

食器洗浄乾燥機

クローゼット

床下収納

小屋裏収納

照明器具

人感センサー付照明

ダウンライト

都市ガス

電気

上水道

下水道

複層ガラス

Low-Eガラス

エアコン2台以上

ダブルロックドア

モニタ付インターホン

ディンプルキー

火災警報器(報知機)

耐震等級3
物件見学・お問い合わせフォーム
押し売り営業は一切いたしません。
安心してご入力ください。



