- 建売住宅
3765万円(税込)
【最寄り駅】JR越後線 小針 徒歩12分
【バス停】新潟交通「小針五丁目」 徒歩3分
- 電話問い合わせ(無料)
-
フリーダイヤル 0120-666-940
【受付時間】10時~18時
物件の特徴
小針駅まで徒歩10分の静かな場所。
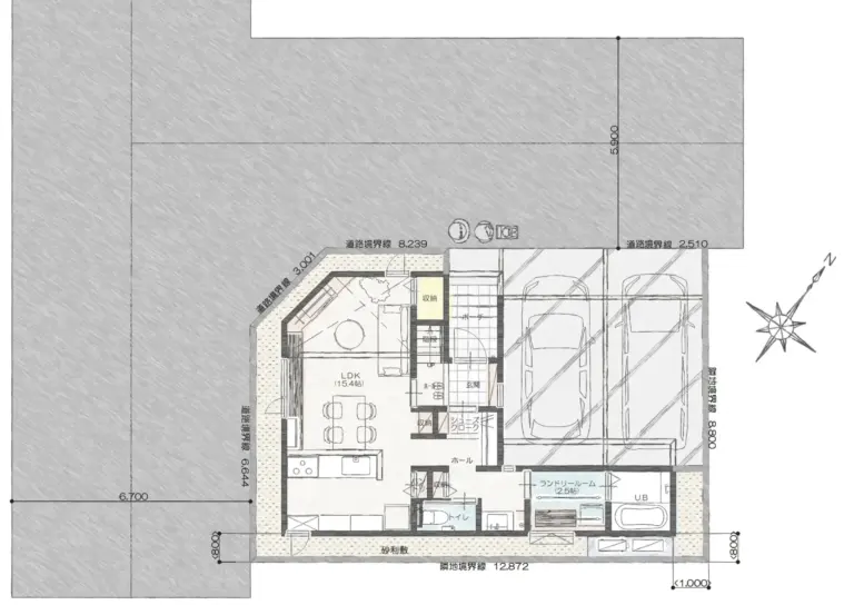
周辺環境と角地の良さを活かし、約28坪でL字型に設計した3LDKのデザイン住宅をつくりました。
物件のおすすめポイント
《 周辺環境 》
■ 小針駅まで徒歩10分!通勤通学にも利用しやすいですね♪
■ 大堀幹線沿いから少し入った所にある静かな住宅街にあります。
■ 日当たりが良く開放感のある、人気の角地!
■ 歩いて1分で遊具のある「小針中央公園」へ。
■ 小針小学校は歩いて9分、プレイランドのあるマクドナルドも徒歩5分。親子で嬉しい魅力ポイントがいっぱい!
《 物件Point 》
■ 駐車スペース2台分確保。
■ 2.7mの食器棚・ベンチ下の引き出し・パントリー・シューズクローク・4帖のファミリークローゼット、収納もたっぷり。
■ リビング~ダイニングまで部屋の壁に沿って作ったベンチカウンター。空間を広く見せる視覚効果アリ!
■ 見た目のおしゃれさはもちろんですが、オープンな多目的スペースがあると、
ダイニングやリビングが散らかしっぱなしになりにくく、キレイを保てます♪
■ 窓のラインに合わせた美しい木目がアクセント。ブラックで統一された外壁が目を惹く外観デザイン
《 月々の返済例 》
◆【 西区小針4丁目A 】建売住宅 ご購入の場合
(2025年11月現在)
―――――――――――――――
[月々の返済額]89,246円
―――――――――――――――
※ボーナス払いなしの場合
■諸条件
[価 格] 3,765万円
[頭 金] 100万円
[借入金] 3,665万円
[金利タイプ]変動金利
[金 利] 0.8%
[借入年数] 40年
※ローン諸費用別途
- 電話問い合わせ(無料)
-
フリーダイヤル 0120-666-940
【受付時間】10時~18時
物件情報
- 物件名
- 西区小針4丁目A 建売住宅 3,765万円
- 価格
- 3765万円
- 間取り
- 3LDK
- 販売戸数
- -
- 総戸数
- -
- 土地面積(㎡)
- 110.87㎡(33.53坪)
- 建物面積(㎡)
- 91.61㎡(27.71坪)
- 私道負担・道路
- 北西側:5.9m 公道 接面13.7m 南西側:6.7m 公道 接面6.6m
- 完成時期(築年月)
- 2025年10月 新築
- 住所
- 新潟市西区小針4丁目GoogleMap
- 交通
- 【最寄り駅】JR越後線 小針 徒歩12分
【バス停】新潟交通「小針五丁目」 徒歩3分 - 構造・工法
- 木造
- 駐車場
- 2台分
- 現況
- 完成済み
- 引き渡しについて
- 即引渡し可
- 小学校区
- 小針小学校
- 中学校区
- 小針中学校
- 用途地域
- 1種低層
- 土地権利
- 所有権
- 建ぺい率
- 50%
- 容積率
- 100%
- 都市計画
- 市街化区域
- 建築確認番号
- 第R06-2219号
- 取引態様
- 売主
- 地目
- 宅地
- 地勢
- 平坦
- 備考
- ■土地+建物+外構セットの価格です。
- 電話問い合わせ(無料)
-
フリーダイヤル 0120-666-940
【受付時間】10時~18時
周辺環境

アピタ 新潟西店 ■車で約4分(1200m)

イオン新潟青山店 ■車で約6分 (※イオン新潟西店も当物件より2km(車で約5分) ほぼ同距離にあります!)(1900m)

リオン・ドール寺尾店 ■車で約3分(800m)

清水フードセンター小針店 ■車で約3分(750m)

ローソン新潟小針五丁目店(230m)

ドラッグ・トップス小針店(350m)

コメリハード&グリーン小針店(600m)

新潟市立小針中学校(950m)

新潟市立小針小学校(650m)

小針パステルこども園(450m)

JA新潟厚生連 新潟医療センター ■車で約3分(800m)

小針中央公園 ■徒歩1分の至近距離!コンパクトな広さの公園でブランコやすべり台等の遊具があります。(87m)

青山水道遊園 ■車で約4分・・・青山浄水場の水を利用した滝や噴水が魅力の公園!クジャクやウサギなどの小動物にも出会えます♪(1100m)

マクドナルド新潟小針店 ■子供向け施設の 『プレイランド』 も併設!親子で時間を気にせずにゆっくりと食事できるのが嬉しいですね♪(350m)
設備・仕様

バス1坪以上

追焚機能

浴室暖房

浴室乾燥機

トイレ2ヶ所

タンクレストイレ

温水洗浄便座

シャワー付洗面化粧台

室内物干し

省エネ給湯器

サンルーム

IHクッキングヒーター

システムキッチン

グリル

食器洗浄乾燥機

パントリー

シューズIC

床下収納

ファミリークローゼット

照明器具

人感センサー付照明

ダウンライト

電気

上水道

下水道

複層ガラス

Low-Eガラス

エアコン2台以上

ダブルロックドア

モニタ付インターホン

ディンプルキー

火災警報器(報知機)

耐震等級3
物件見学・お問い合わせフォーム
押し売り営業は一切いたしません。
安心してご入力ください。


