- 建売住宅
4095万円(税込)
【最寄り駅】JR篠ノ井線 「南松本」 徒歩30分(車で6分)
【バス停】 アルピコ交通「並柳団地南」 徒歩6分
- 電話問い合わせ(無料)
-
フリーダイヤル 0120-666-940
【受付時間】10時~18時
物件の特徴
■おしらせ■
この度ご購入予約を頂きましたので、今後ご購入希望の方は
キャンセル待ちとさせて頂きます。
【ご予約期間:2026年4月26日(日)まで】
2026年4月末完成予定!
【★早期購入特典付き!!】・・・・・━━━━━━━━━━━・・・・・
ソファ&ダイニング家具セットをプレゼント!
・・・・・━━━━━━━━━━━━━━━━━━━━━━・・・・・
陽当たりが良く、≪太陽光パネル付き≫の家計にもやさしい住まい。
物件のおすすめポイント
◆周辺環境 ━━*.
・松本市の中でも特に静かで、自然豊かな住宅街。
・騒音や交通量も少なく、のどかで落ち着いた雰囲気の周辺環境。
・子育て世帯におすすめの立地!保育園・小学校が徒歩圏内。スーパーも通いやすい距離です。
◆物件のPoint ━━*.
・電気代高騰の中、太陽光4.92kW搭載で光熱費削減。
・南側がひらけているので日当たり抜群!
・シュークロークやパントリー、納戸など適材適所に充実の収納スペースを確保。
・お子様の遊び場や書斎として使えるヌック。
・広々としたランドリールームでストレスなく家事ができます。
・オシャレな造作洗面台やキッチン周りのタイルにも注目です♪
◆STATESの魅力 ━━*.
◆「耐震等級3」最高ランクの頑強構造・地震に強い家
◆ 大切な住まいを熱から守る「省令準耐火構造」で火災保険料もお得に!
◆ 徹底した品質管理・安心のアフターサポート・充実の長期保証
「最長60年保証&無償定期点検」をはじめ、設備保証も10年とずっと安心が続くステーツの家
《 月々の返済例 》
◆【 松本市寿北A 】建売住宅 ご購入の場合
(2025年10月現在)
———————————————
[月々の返済額]96,693円
※ボーナス払いなしの場合
———————————————
■諸条件
[価 格] 4,095万円
[頭 金] 100万円
[借入金] 3,995万円
[金利タイプ]変動金利
[金 利] 0.768%
[借入年数] 40年
※ローン諸費用別途
- 電話問い合わせ(無料)
-
フリーダイヤル 0120-666-940
【受付時間】10時~18時
物件情報
- 物件名
- 【ご予約中】松本市寿北A 建売住宅 4,095万円
- 価格
- 4095万円
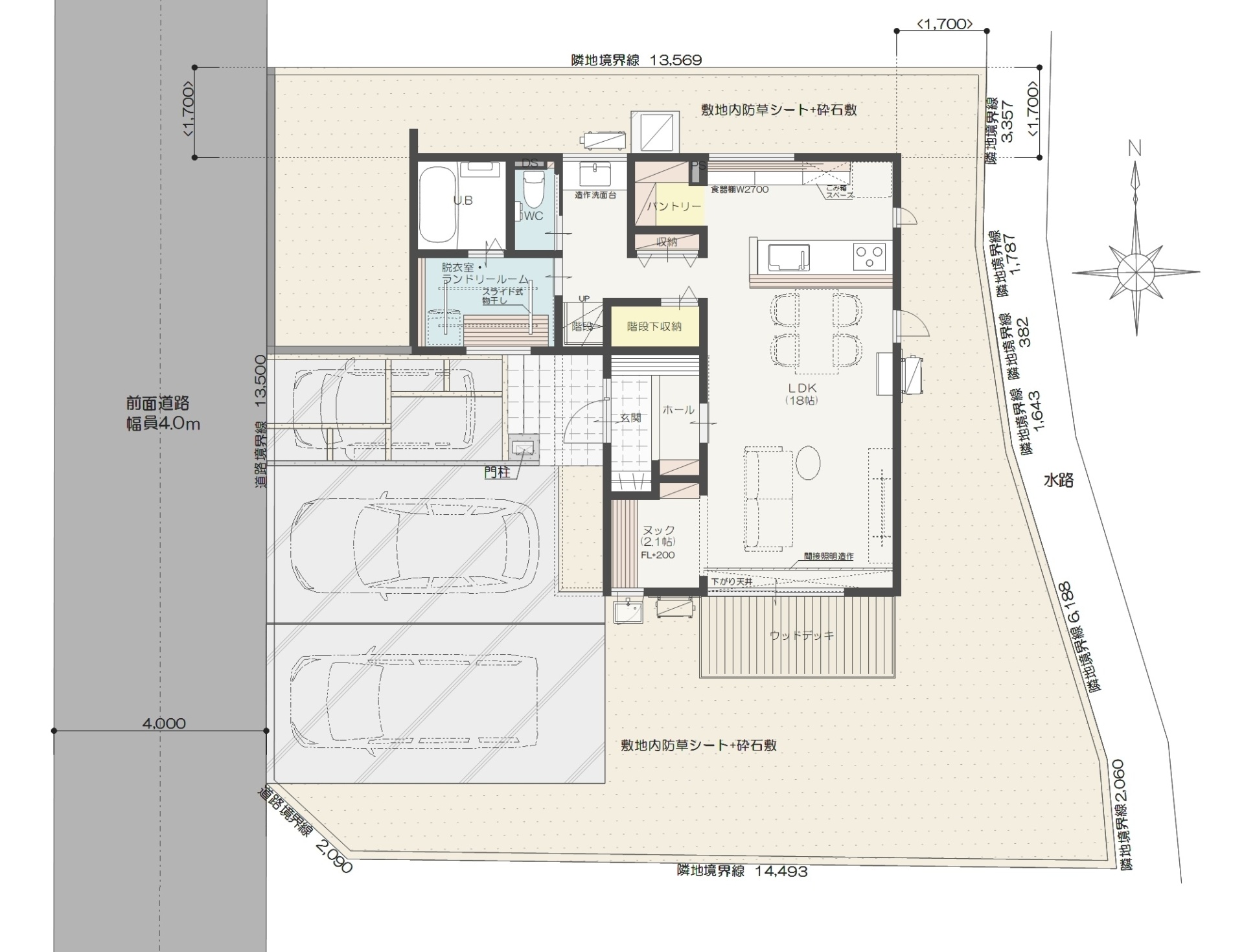
- 間取り
- 3LDK+S
- 販売戸数
- -
- 総戸数
- -
- 土地面積(㎡)
- 215.94㎡(65.32坪)
- 建物面積(㎡)
- 105.16㎡(31.81坪)
- 私道負担・道路
- 【西】4.0m 接面13.5m
- 完成時期(築年月)
- 2026年4月末 新築
- 住所
- 松本市寿北5丁目GoogleMap
- 交通
- 【最寄り駅】JR篠ノ井線 「南松本」 徒歩30分(車で6分)
【バス停】 アルピコ交通「並柳団地南」 徒歩6分 - 構造・工法
- 木造
- 駐車場
- 3台分
- 現況
- 建築中
- 引渡し可能時期
- 2026年5月 予定
- 小学校区
- 並柳小学校
- 中学校区
- 開成中学校
- 用途地域
- 1種住居
- 土地権利
- 所有権
- 建ぺい率
- 60%
- 容積率
- 160%
- 都市計画
- 市街化区域
- 建築確認番号
- 第ERI-25026371号
- 取引態様
- 売主
- 地目
- 畑
- 地勢
- 平坦
- 備考
- ■建物+土地+外構セットの価格です。
- 電話問い合わせ(無料)
-
フリーダイヤル 0120-666-940
【受付時間】10時~18時
周辺環境

COMO庄内
(■車で約6分)(2,100m)

ツルヤ並柳店
(■車で約5分)(1,700m)

イオン南松本店
(■車で約6分)(2,300m)

ラ・ムー並柳店(1100m)

ローソン松本並柳店(850m)

アメリカンドラッグ 松本並柳店(■車で約3分)(1,200m)

相澤病院
(■車で約11分)(3,400m)

松本市立開成中学校(2,700m)

松本市立並柳小学校(750m)

松本市並柳保育園(450m)

サザン下瀬黒中緑地(450m)
設備・仕様

バス1坪

追焚機能

浴室暖房

浴室乾燥機

浴室に窓あり

トイレ2ヶ所(1階:タンクレス、2階:温水洗浄便座)

造作洗面台

室内物干し

省エネ給湯器

サンルーム

IHクッキングヒーター

システムキッチン

グリル

食器洗浄乾燥機

パントリー

ウォークインクローゼット

床下収納

照明器具

間接照明

人感センサー付照明

ダウンライト

電気

上水道

下水道

太陽光発電システム

複層ガラス

Low-Eガラス

エアコン2台

ダブルロックドア

モニタ付インターホン

ポケットキー

火災警報器(報知機)

耐震等級3
物件見学・お問い合わせフォーム
押し売り営業は一切いたしません。
安心してご入力ください。


