- 建売住宅
3981万円(税込)
【最寄り駅】あいの風とやま鉄道 新富山口 徒歩9分
【 バス停 】 富山地方鉄道「下冨居口」 停歩5分
- 電話問い合わせ(無料)
-
フリーダイヤル 0120-666-940
【受付時間】10時~18時
物件の特徴
2026年6月20日(土)オープン!
【★完成前ご購入特典】・・・・・━━━━━━━━━━━・・・・・
\👑完成前にご契約の方限定👑/
『宅配BOX』&『ルンバ』 W(ダブル)でプレゼント♪
・・・・・━━━━━━━━━━━━━━━━━━━━━━・・・・・
~ ゆったりくつろぐ、こだわりの平屋空間 ~
■雨の日や雪の日も安心な「2台用のアルミカーポート」完備。
物件のおすすめポイント
◆物件のPoint ━━*.
■雨の日や雪の日も安心な「2台用のアルミカーポート」完備。
■敷地内にはゆったり3台以上の駐車が可能。ご家族やゲストが遊びに来た時も安心のカースペース。
■スーパー、コンビニ、薬局から、病院や公園などの公共施設まですべて徒歩圏内。
■市街地にも近く、毎日が通勤や買い物に便利なやさしい周辺環境。
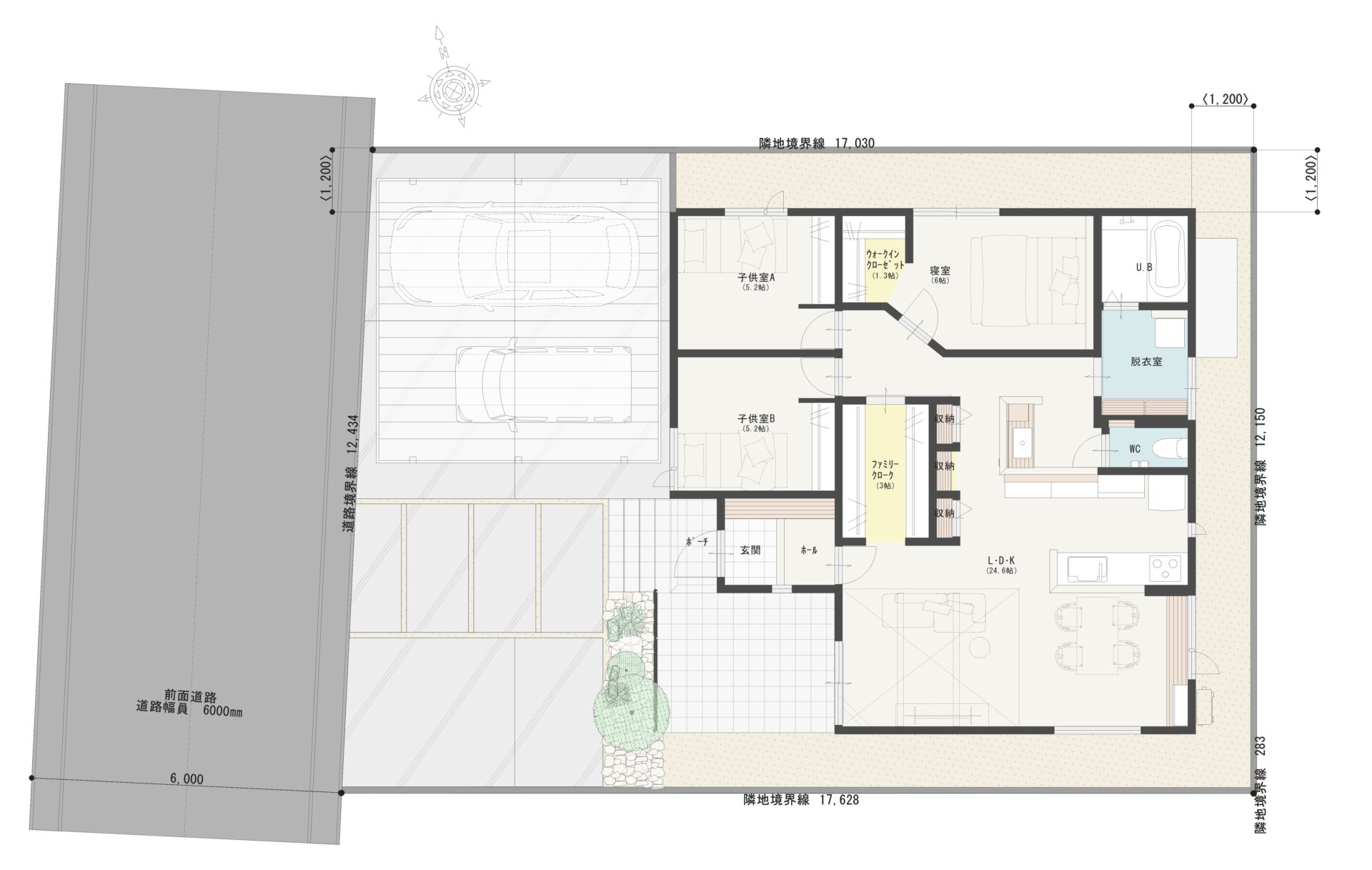
■ちょうどいいサイズ感:延床面積27坪、家族の気配をいつも感じられる暮らしやすい間取り。
■開放的なリビング:奥行きと開放感のある「勾配天井」仕様のリビング。のびのびとした時間を包み込みます。
■癒しのテラス:ポーチ周りには、“日向ぼっこ”や“おうちカフェ・BBQ”などが楽しめる広いタイルテラスを設けました。
■家具・インテリア付♪:こだわりの「照明」や「カーテン」の他、すぐに暮らしをスタートできる「家具セット」付!
専属コーディネーターが厳選・トータルコーディネートしたアイテムをお付けします♪
■こだわりのサニタリー:毎日の身支度が楽しみ!アイカ工業製のステキな造作洗面台を採用。
■すっきり収納:家族みんなのアイテムを1箇所にまとめてしまえる、便利なファミリークローゼット完備。
◆STATESの魅力 ━━*.
◆ 災害時の安全性に配慮した、最上位等級 「耐震等級3」 地震に強い家
◆「ウレタン吹付断熱」+「樹脂サッシ」の高気密高断熱住宅
◆ 火に強く、火災保険料も抑えられる安心の住まい「省令準耐火構造」
※省令準耐火構造=火の広がりを抑える国の基準に準じた構造のこと
◆ 全棟「住宅性能評価」付。
ワンランク上の断熱性能を示す ― HEAT20・G2グレード対応 ―
冬あたたかく、夏も快適。
高断熱で、家族が心地よく過ごせる住まい。
◆ 【充実保証・アフターサービス】
住んでからも、ずっと続く安心。永く寄り添うサポートと、充実の保証。
・20年目までの無償定期点検
・構造・雨漏り 最長60年保証
・設備保証 10年
・シロアリ 最長30年保証
・地盤保証 20年
・住宅瑕疵担保保険 最長20年 ・・・万が一に備える、国が定めた家の安心保険
《 月々の返済例 》
◆【 富山市豊田町A 】建売住宅 ご購入の場合
(2026年2月現在)
———————————————
[月々の返済額]93,933円
※ボーナス払いなしの場合
———————————————
■諸条件
[価 格] 3,981万円
[頭 金] 100万円
[借入金] 3,881万円
[金利タイプ]変動金利
[金 利] 0.768%
[借入年数] 40年
※ローン諸費用別途
- 電話問い合わせ(無料)
-
フリーダイヤル 0120-666-940
【受付時間】10時~18時
物件情報
- 物件名
- 富山市豊田町A 建売住宅 3,981万円
- 価格
- 3981万円
- 間取り
- 3LDK
- 販売戸数
- -
- 総戸数
- -
- 土地面積(㎡)
- 215.33㎡(65.13坪)
- 建物面積(㎡)
- 89.84㎡(27.17坪)
- 私道負担・道路
- 【西側】 6.0m 公道 接面12.4m
- 完成時期(築年月)
- 2026年6月 新築
- 住所
- 富山市豊田町2丁目GoogleMap
- 交通
- 【最寄り駅】あいの風とやま鉄道 新富山口 徒歩9分
【 バス停 】 富山地方鉄道「下冨居口」 停歩5分 - 構造・工法
- 木造
- 駐車場
- 3台分
- 現況
- 建築中
- 引渡し可能時期
- 2026年8月 予定
※完成後 一定期間、展示場として開放します。お引渡しは2026年9月以降~になります。 - 小学校区
- 豊田小学校
- 中学校区
- 奥田中学校
- 用途地域
- 準工業
- 土地権利
- 所有権
- 建ぺい率
- 60%
- 容積率
- 200%
- 都市計画
- 市街化区域
- 建築確認番号
- 第ERI-25044169号
- 取引態様
- 売主
- 地目
- 宅地
- 地勢
- 平坦
- 備考
- ■建物+土地+外構セットの価格です。
- 電話問い合わせ(無料)
-
フリーダイヤル 0120-666-940
【受付時間】10時~18時
周辺環境

大阪屋ショップ豊田店(550m(徒歩7分))

セブンイレブン富山下冨居店(400m(徒歩5分))

クスリのアオキ富山豊田店(450m(徒歩6分))

ジョイフルシマヤ豊田店(900m(徒歩12分))

富山市立奥田中学校(2.5km(徒歩32分) ※自転車通学可能)

富山市立豊田小学校(1.4km(徒歩18分))

富山認定こども園(車で約5分)(850m(徒歩11分))

富山協立病院(450m(徒歩6分))

富山豊田郵便局(900m(徒歩12分))

北陸銀行 豊田支店(500m(徒歩7分))

ユニクロ富山豊田店(車で約4分)(950m(徒歩12分))

粟島公園(700m(徒歩9分))
設備・仕様

バス 1坪サイズ

追焚機能

浴室暖房

浴室乾燥機

トイレ(タンクレスタイプ)

シャワー付 造作洗面台

室内物干し

省エネ給湯器

IHクッキングヒーター

システムキッチン

グリル

食器洗浄乾燥機

タッチレスハンドシャワー水栓

パントリー

ウォークインクローゼット

床下収納

ファミリークローゼット

照明器具

人感センサー付照明

ダウンライト

電気

上水道

下水道

複層ガラス

Low-Eガラス

エアコン

ダブルロックドア

モニタ付インターホン

タイルテラス

ポケットキー

火災警報器(報知機)

耐震等級3
物件見学・お問い合わせフォーム
押し売り営業は一切いたしません。
安心してご入力ください。

