- 建売住宅
3198万円(税込)
【最寄り駅】JR白新線 西新発田 徒歩15分
- 電話問い合わせ(無料)
-
フリーダイヤル 0120-666-940
【受付時間】10時~18時
物件の特徴
2026年7月完成予定!
\専属コーディネーターが選んだ!『家具・カーテン・照明付』✨ /
25坪でも、驚きの開放感。
🌿 光あふれる吹抜けLDK × L字型小上がり×トリプルガラスの家 🌿
物件のおすすめポイント
◆物件のPoint ━━*.
🏘️ 【周辺環境】
スーパーやコンビニ、公園、保育園、ショッピングセンターが徒歩10分以内。
暮らしや子育てに便利な住環境。
🏡 【街並みに映える、やさしい外観デザイン】
ホワイトとグレーのモノトーンをベースに、オークの木目をアクセントに。
落ち着きのある色合いが、街並みにやさしくなじむデザイン。
🚗 【ゆとりの駐車スペース3台分】
家族用はもちろん、来客時にも安心の3台分を確保。
シンボルツリーの植栽が、住まいにさりげない彩りを添えます。
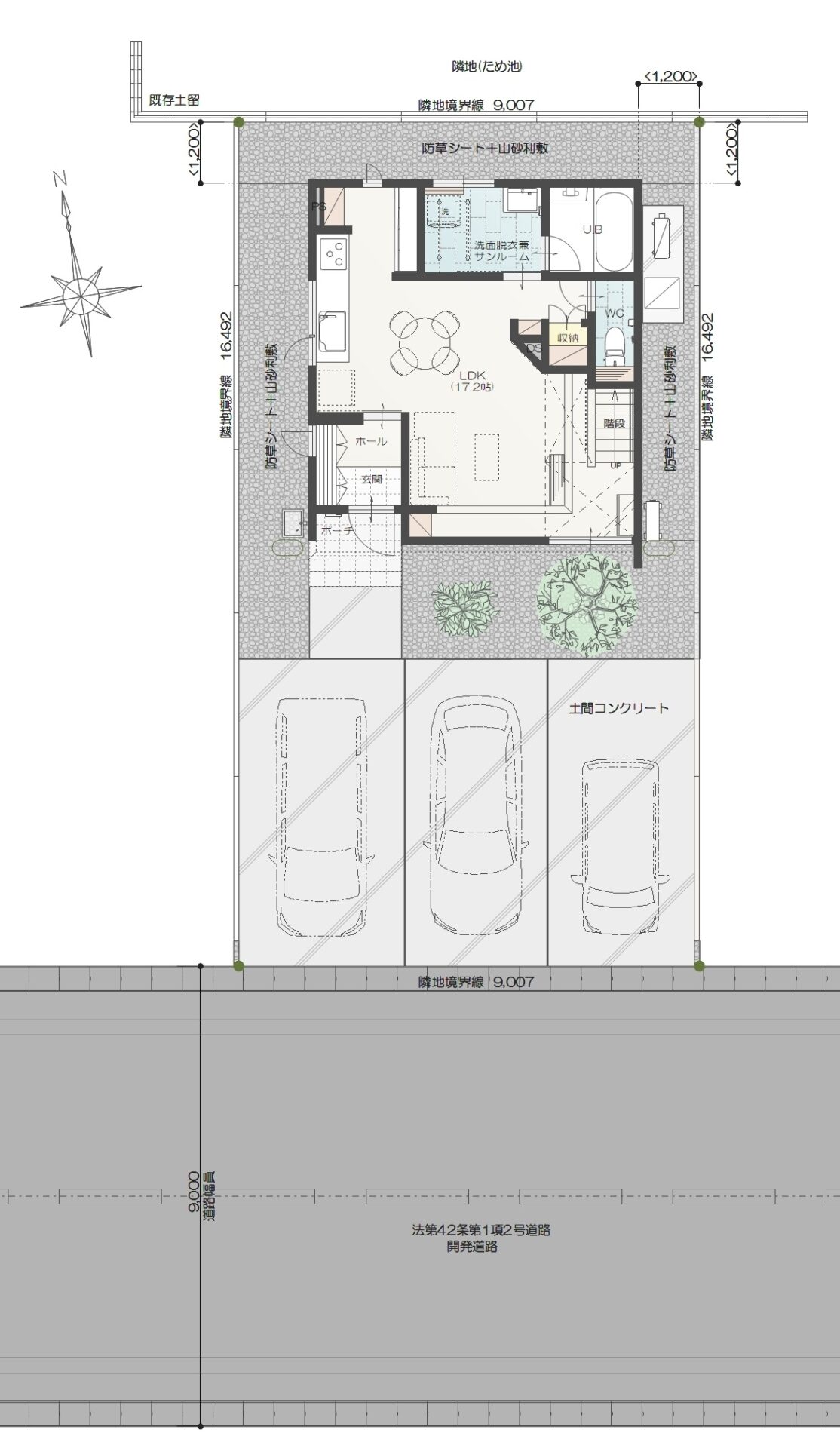
📺 【吹抜けが心地よい、開放的なLDK】
約17帖以上のLDKに階段部分の吹抜けをプラス。
光と空間の広がりを感じられる、心地よいリビング。
🛋️ 【家族が集まる小上がりスペース】
階段1段目と兼用したL字型の小上がり。
腰掛けたり、くつろいだり、ちょっとした家族の居場所に。
📦【すっきり片付くパントリー収納】
食品のストックや調理家電なども置けるパントリースペース。
👖【家事がはかどるサンルーム】
洗面脱衣室とつながるサンルームには室内物干しを設置。
天気を気にせず洗濯でき、毎日の家事をサポート。
👨👩👧👦 【家族それぞれのプライベート空間】
2階には3部屋を配置。家族それぞれの時間を大切にできる、使いやすい間取り。
🛌 【収納充実の主寝室】
7帖のゆったりとした主寝室には、2.2帖のウォークインクローゼットを設置。
衣類や季節物もすっきり収納。
🪟【快適性を高める高性能な窓】
トリプルガラス樹脂窓を採用。
世界最高レベルの断熱性能で、夏も冬も快適な室内環境を保ちます。
◆STATESの性能・仕様 ━━*.
- 最上位ランク「耐震等級3」地震に強い家
- 「ウレタン吹付断熱」+「トリプルガラスサッシ」 3層ガラスがつくる、ワンランク上の窓性能。
- 「住宅性能評価」付。ZEHを超える高断熱性能
- 「20年目までの無償定期点検」・「構造・雨漏り 最長60年」・「設備 10年」など、住み始めてからも安心のサポートと充実保証
- 建物はIH仕様の「オール電化住宅」ですが、”都市ガス”対応エリアのため将来の切替えも安心です。
《 月々の返済例 》
◆【 新発田市富塚町C 】建売住宅 ご購入の場合
(2026年3月現在)
——————————————————
[月々の返済額]75,439円
※ボーナス払いなしの場合
——————————————————
■諸条件
[価 格] 3,198万円
[頭 金] 100万円
[借入金] 3,098万円
[金利タイプ]変動金利
[金 利] 0.8%
[借入年数] 40年
※ローン諸費用別途
- 電話問い合わせ(無料)
-
フリーダイヤル 0120-666-940
【受付時間】10時~18時
物件情報
- 物件名
- 新発田市富塚町C 建売住宅 3,198万円
- 価格
- 3198万円
- 間取り
- 3LDK
- 販売戸数
- -
- 総戸数
- -
- 土地面積(㎡)
- 148.54㎡(44.93坪)
- 建物面積(㎡)
- 84.73㎡(25.63坪)
- 私道負担・道路
- 【南側】9.0m 公道 接面9.0m
- 完成時期(築年月)
- 2026年7月 新築
- 住所
- 新発田市富塚町2丁目GoogleMap
- 交通
- 【最寄り駅】JR白新線 西新発田 徒歩15分
- 構造・工法
- 木造
- 駐車場
- 3台分
- 現況
- 建築中
- 引渡し可能時期
- 2026年8月 予定
- 小学校区
- 住吉小学校
- 中学校区
- 猿橋中学校
- 用途地域
- 1種中高
- 土地権利
- 所有権
- 建ぺい率
- 60%
- 容積率
- 200%
- 都市計画
- 市街化区域
- 建築確認番号
- 第R07-1997号
- 取引態様
- 売主
- 地目
- 宅地
- 地勢
- 平坦
- 備考
- ■建物+土地+外構セットの価格です。
- 電話問い合わせ(無料)
-
フリーダイヤル 0120-666-940
【受付時間】10時~18時
周辺環境

イオンモール新発田(車で約3分)(1,100m(徒歩14分))

フレスポ新発田(450m(徒歩6分))

原信 西新発田店(450m(徒歩6分))

業務スーパーチャレンジャー 新発田店(400m(徒歩5分))

セブンイレブン 新発田富塚町3丁目店(350m(徒歩5分))

ドラッグ・トップス富塚店(400m(徒歩5分))

ひらせいホームセンター新発田店(850m(徒歩11分))

新発田市立猿橋中学校(1,500m(徒歩19分))

新発田市立住吉小学校(850m)

認定こども園エンジェルKids陽だまり園(350m)

冨塚町児童公園(190m(徒歩3分))
設備・仕様

バス 1坪サイズ

追焚機能

浴室暖房

浴室乾燥機

トイレ2ヶ所(1階・2階:温水洗浄便座)

シャワー付洗面化粧台

サンルーム

室内物干し

省エネ給湯器

IHクッキングヒーター

システムキッチン

グリル

食器洗浄乾燥機

浄水器内臓ハンドシャワー水栓

パントリー

ウォークインクローゼット

床下収納

照明器具

人感センサー付照明

ダウンライト

電気

上水道

下水道

都市ガス対応エリア

複層ガラス

三層複層ガラス(トリプルガラス樹脂窓)

エアコン

ダブルロックドア

モニタ付インターホン

ポケットキー

火災警報器(報知機)

耐震等級3
物件見学・お問い合わせフォーム
押し売り営業は一切いたしません。
安心してご入力ください。


