- 建売住宅
- NEW
3980万円(税込)
長野電鉄長野線 「朝陽」 徒歩15分
- 電話問い合わせ(無料)
-
フリーダイヤル 0120-666-940
【受付時間】10時~18時
物件の特徴
✼••┈┈┈┈•• 完成前ご契約特典 ••┈┈┈┈••✼
新生活のスタートにピッタリ♪
\《ドラム式洗濯機&冷蔵庫(450L~500L)/
プレゼント!! ※詳細はスタッフまで
✼••┈┈┈┈┈┈┈┈••✼••┈┈┈┈┈┈┈┈••✼
2026年8月完成予定。
うれしい『家具セット付』!!
|勾配天井×19帖LDK|開放感あふれるデザイン住宅
物件のおすすめポイント
*━━ 建売のPoint ━━*
■木目アクセントの美しい外観
外壁は、落ち着きのあるチタンベージュをベースに、木目調のアクセントをプラス。
上質さと温かみを兼ね備えた、飽きのこない外観に仕上げました。
ケイミュー「ネオロック光セラ18」を採用し、耐久性にも優れています。
■開放感あふれるLDK
勾配天井を採用したリビングは、のびやかで心地よい空間。
19帖の広々LDKで、家族みんながゆったり過ごせます。
一部には間接照明を取り入れ、上質で落ち着いた雰囲気を演出。
■外とつながるタイルテラス
リビングからそのまま出られるタイルテラス付き。
おうち時間の幅が広がり、くつろぎの空間としても活躍します。
■収納力も安心
約4帖の大容量ウォークインクローゼットを完備。
衣類や季節物もしっかり収納でき、住まいがすっきり整います。
■家事ラク動線
洗面室と脱衣室を分けた独立設計。
家族が同時に使いやすく、毎日の家事や身支度もスムーズです。
■将来まで見据えた間取り
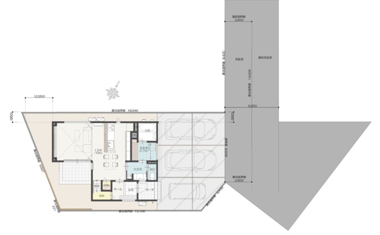
ライフスタイルの変化にも対応しやすい、使い勝手の良い3LDKプラン。
■省エネ設備も充実
ガス給湯器は『Rinnaiエコジョーズ』を採用。
少ないガスで効率よくお湯をつくり、光熱費の節約にも貢献。
ガスコンロならではの大火力で、お料理も快適♪
*━━ ステーツの住宅性能・仕様 ━━*
◆ 災害時の安全性に配慮した、最上位等級 「耐震等級3」 地震に強い家
◆ 「ウレタン吹付断熱」+「樹脂サッシ」の高気密高断熱住宅
◆ 火に強く、火災保険料も抑えられる安心の住まい「省令準耐火構造」
※省令準耐火構造=火の広がりを抑える国の基準に準じた構造のこと
◆ 全棟「住宅性能評価」付。
ワンランク上の断熱性能を示す ― HEAT20・G2グレード対応 ―
冬あたたかく、夏も快適。
高断熱で、家族が心地よく過ごせる住まい。
◆ 【充実保証・アフターサービス】
住んでからも、ずっと続く安心。永く寄り添うサポートと、充実の保証。
「長野市富竹B」建売 月々の返済例
(2026年3月現在)
----------
[月々の返済額]94,481円
----------
※ボーナス払いなしの場合
■諸条件
[価 格] 3,980万円
[頭 金] 100万円
[借入金] 3,880万円
[金利タイプ]変動金利
[金 利] 0.8%
[借入年数] 40年
※ローン諸費用別途
- 電話問い合わせ(無料)
-
フリーダイヤル 0120-666-940
【受付時間】10時~18時
物件情報
- 物件名
- 長野市富竹B 建売住宅 3,980万円
- 価格
- 3980万円
- 間取り
- 3LDK
- 販売戸数
- -
- 総戸数
- -
- 土地面積(㎡)
- 153.61㎡(46.46坪)
- 建物面積(㎡)
- 100.47㎡(30.39坪)
- 私道負担・道路
- 北東 5.0m 公道 接面2.5m
- 完成時期(築年月)
- 2026年8月 新築
- 住所
- 長野市大字富竹字山道西GoogleMap
- 交通
- 長野電鉄長野線 「朝陽」 徒歩15分
- 構造・工法
- 木造
- 駐車場
- 3台以上
- 現況
- 建築中
- 引き渡しについて
- 2026年9月 予定
- 小学校区
- 古里小学校
- 中学校区
- 東北中学校
- 用途地域
- 2種中高
- 土地権利
- 所有権
- 建ぺい率
- 60%
- 容積率
- 200%
- 都市計画
- 市街化区域
- 建築確認番号
- 第 ERI-26006043 号
- 取引態様
- 売主
- 地目
- 宅地
- 地勢
- 平坦
- 備考
- ■土地+建物+外構セットの価格です。
- 電話問い合わせ(無料)
-
フリーダイヤル 0120-666-940
【受付時間】10時~18時
周辺環境

IKONE City(■車の場合:約6分)(2,000m(徒歩25分))

西友 古里店(■車の場合:約3分)(1,000m(徒歩13分))

ローソン 長野富竹店(450m(徒歩6分))

クスリのアオキ 石渡店(■車の場合:約5分)(1,600m(徒歩20分))

DCM 長野運動公園店(■車の場合:約5分)(1,700m(徒歩22分))

長野市立東北中学校(1,400m(徒歩18分))

長野市立古里小学校(550m(徒歩7分))

古里中央幼稚園(■車の場合:約3分)(1,000m(徒歩13分))

認定こども園 朝陽学園保育園(■車の場合:約4分)(1,200m(徒歩15分))

長野市民病院(900m(徒歩12分))

長野市柳原支所(■車の場合:約5分)(1,500m(徒歩19分))

古里公園(850m(徒歩11分))


設備・仕様

バス 1坪サイズ

追焚機能

浴室暖房

浴室乾燥機

シャワー付洗面化粧台

トイレ2ヶ所(1階:タンクレス 2階:温水洗浄便座)

温水洗浄便座

室内物干し

ガス給湯器

システムキッチン

ガスコンロ

グリル

食器洗浄乾燥機

タッチレスハンドシャワー水栓

ウォークインクローゼット

床下収納

照明器具(※一部、間接照明あり)

人感センサー付照明

ダウンライト

電気

上水道

下水道

都市ガス

複層ガラス

Low-Eガラス

エアコン2台

ダブルロックドア

モニタ付インターホン

ポケットキー

タイルテラス

火災警報器(報知機)

耐震等級3
物件見学・お問い合わせフォーム
押し売り営業は一切いたしません。
安心してご入力ください。



