- 建売住宅
- NEW
3693万円(税込)
富山地鉄不二越上滝線 「不二越」 徒歩30分
- 電話問い合わせ(無料)
-
フリーダイヤル 0120-666-940
【受付時間】10時~18時
物件の特徴
\🎁完成前だけの嬉しい特典✨/『宅配BOX』&『ルンバ』 豪華Wプレゼント♪
|グレートーンで統一された、
吹抜け × ニッチ × アクセントクロスで叶える
ワンランク上のホテルライク空間|
必要なものがすぐ揃う、スーパーやコンビニなどが徒歩圏内の便利な住環境。
専属のインテリアコーディネーターが設えた、オシャレな家具付きの建売住宅です。
物件のおすすめポイント
◆物件のPoint ━━*.
■2色のチタングレー外壁を組み合わせた、洗練された大人の外観デザイン。
■19.5帖の広々LDKで、家族みんながゆったり過ごせる上質空間。
■リビング上部の吹き抜けによってさらに広がりを感じられる心地よい空間に。
■キッチン腰壁にニッチ収納付きで、使い勝手も◎
■キッチンまわりにはニッチ収納や、白いレンガ調のアクセントクロスを採用。毎日の家事時間も少し楽しくなるような工夫が詰まっています♪
■室内はグレートーンを基調に、木目の美しさを活かしたホテルライクな落ち着きあるデザインに統一。
■1階に設けた寝室で生活動線がスムーズ。将来を見据えた暮らしやすさも魅力。
■外にはタイルデッキを設け、おうちにいながらアウトドア気分を満喫。
◆STATESの性能・仕様 ━━*.
- 最上位ランク「耐震等級3」地震に強い家
- 「ウレタン吹付断熱」+「樹脂ペアガラスサッシ」 で、快適さと省エネを両立。
- UA値0.44を実現し、HEAT20 G1グレードに対応した高断熱住宅。
- 全棟「住宅性能評価」付。ZEHを超える高断熱性能。
- 「20年目までの無償定期点検」・「構造・雨漏り 最長60年」・「設備 10年」など、住み始めてからも安心のサポートと充実保証
■「富山市天正寺D」建売 月々の返済例
(2026年3月現在)
[月々の返済額]86,963円
※ボーナス払いなしの場合
■諸条件
[価 格] 3,693万円
[頭 金] 100万円
[借入金] 3,593万円
[金利タイプ]変動金利
[金 利] 0.768%
[借入年数] 40年
※ローン諸費用別途
- 電話問い合わせ(無料)
-
フリーダイヤル 0120-666-940
【受付時間】10時~18時
物件情報
- 物件名
- 富山市天正寺D 建売住宅 3,693万円
- 価格
- 3693万円
- 間取り
- 3LDK
- 販売戸数
- -
- 総戸数
- -
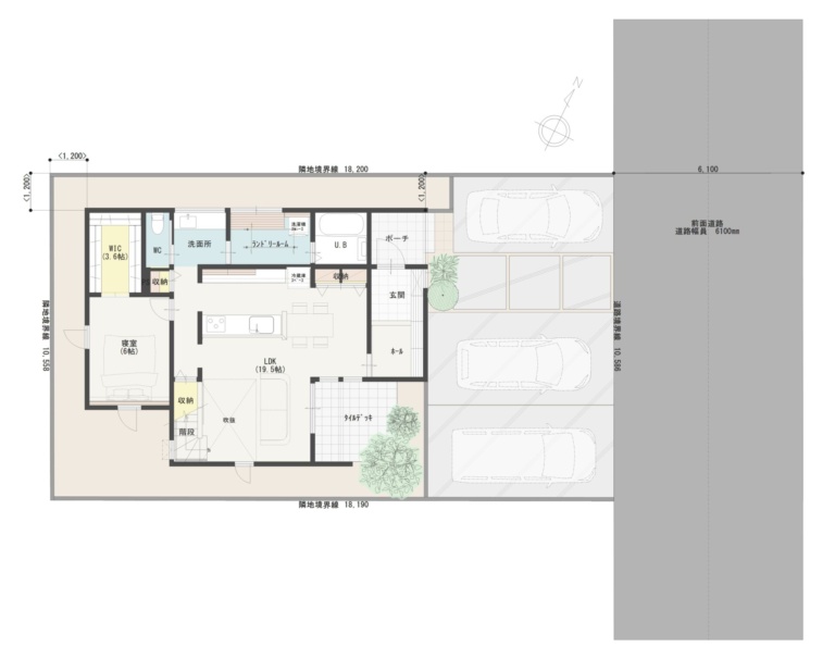
- 土地面積(㎡)
- 192.56㎡(58.24坪)
- 建物面積(㎡)
- 101.02㎡(30.55坪)
- 私道負担・道路
- 東6.1m 公道 接面10.5m
- 完成時期(築年月)
- 2026年7月 新築
- 住所
- 富山市天正寺GoogleMap
- 交通
- 富山地鉄不二越上滝線 「不二越」 徒歩30分
- 構造・工法
- 木造
- 駐車場
- 3台分
- 現況
- 建築中
- 引渡し可能時期
- 2026年8月 予定
- 小学校区
- 山室小学校
- 中学校区
- 山室中学校
- 用途地域
- 1種低層
- 土地権利
- 所有権
- 建ぺい率
- 50%
- 容積率
- 80%
- 都市計画
- 市街化区域
- 建築確認番号
- 第ERI-26002105号
- 取引態様
- 売主
- 地目
- 宅地
- 地勢
- 平坦
- 備考
- ■土地+建物+外構 込みの価格です。
- 電話問い合わせ(無料)
-
フリーダイヤル 0120-666-940
【受付時間】10時~18時
周辺環境

グリーンモール山室・・・車で約7分。県道3号に面しているショッピングセンターです。(1,900m(徒歩26分))

大阪屋ショップ秋吉店(500m(徒歩7分))

セブンイレブン富山中川原店(500m(徒歩7分))

ウエルシア富山天正寺店(350m(徒歩5分))

ニトリ富山店(450m(徒歩6分))

ホームセンタームサシ富山店・・・車で約4分(1,000m(徒歩14分))

富山市立山室中学校(2,100m(徒歩29分))

富山市立山室小学校(1,400m(徒歩19分))

幼保連携型認定こども園わかくさ保育園
・・・車で2分(600m(徒歩8分))

佐伯病院・・・車で約4分(1,000m(徒歩14分))

富山高原町郵便局・・・車で約4分(1,300m(徒歩17分))

北國銀行富山東部支店(600m(徒歩9分))

高原緑地・・・車で約5分(1,400m(徒歩20分))

富山市2000年体育館・・・2000年とやま国体秋季大会の会場として建設された記念体育館。(350m(徒歩5分))

スターバックスコーヒー富山天正寺店(400m(徒歩5分))
設備・仕様

バス 1坪サイズ

追焚機能

浴室暖房

浴室乾燥機

トイレ2ヶ所(1階:タンクレス 2階:温水洗浄便座)

シャワー付 造作洗面台

スライド式 室内物干し

省エネ給湯器

サンルーム

IHクッキングヒーター

ペニンシュラ型キッチン

グリル

食器洗浄乾燥機

パントリー

ウォークインクローゼット

床下収納

照明器具(※一部、間接照明あり)

人感センサー付照明

ダウンライト

電気

上水道

下水道

複層ガラス

Low-Eガラス

エアコン

吹き抜け

ダブルロックドア

モニタ付インターホン

玄関ポケットキー

タイルデッキ

火災警報器(報知機)

耐震等級3
物件見学・お問い合わせフォーム
押し売り営業は一切いたしません。
安心してご入力ください。



