- 見学会・オープンハウス
見た目も暮らしもスッキリ整う、こだわりの収納設計
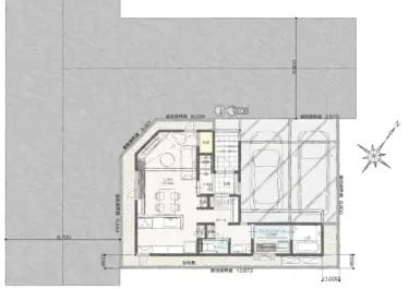
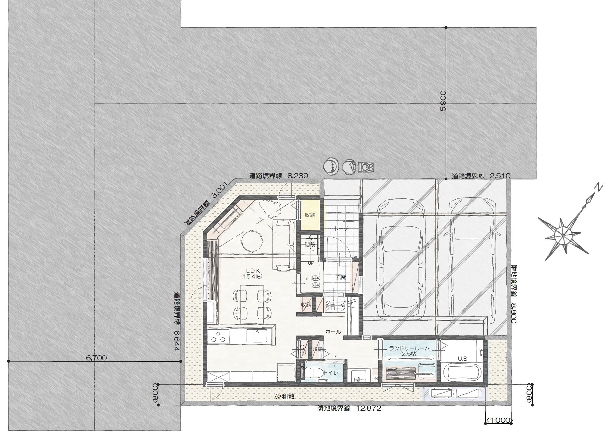
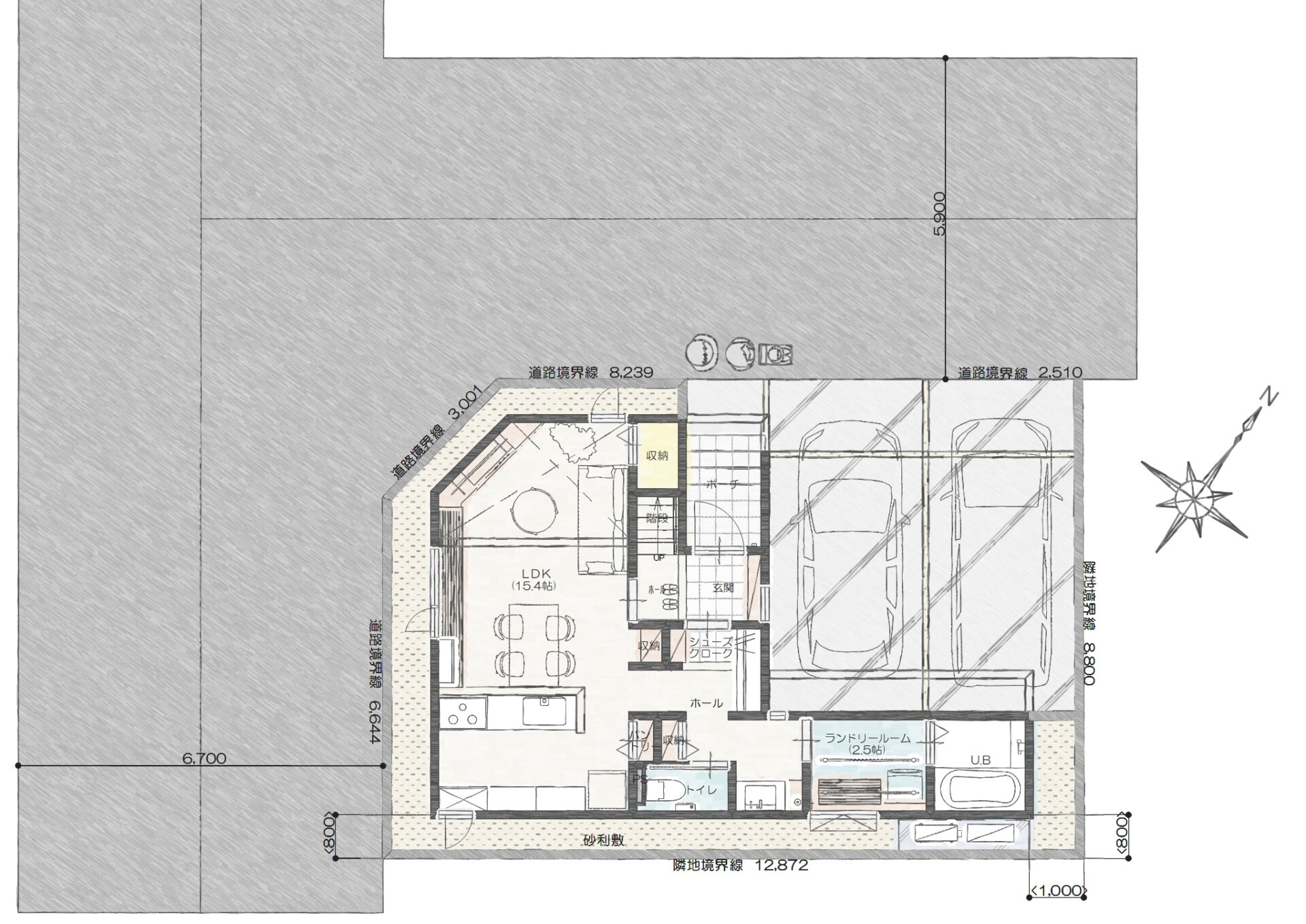
約28坪!L字型に設計した3LDKのデザイン住宅(西区小針4丁目)
- 場所
- 新潟市西区小針4丁目Google MAP
- 日程
- 2026/05/01(金) ~ 2026/05/31(日)
- 時間
- 10:00~17:00【予約制】
- 間取り
- 3LDK 延床面積:91.61㎡(27.71坪)
ギャラリー
約28坪!L字型に設計した3LDKのデザイン住宅
外観は、ブラックで統一された外壁に窓ラインと合わせた美しい木目が映える、上品で洗練されたデザイン。
室内には、2.7mの食器棚やパントリー・シューズクローク・4帖のファミリークローゼットなど、随所に大容量の収納スペースを完備。
さらにベンチ下の引き出しも設け、日常の片付けがスムーズに行える工夫が満載!
リビングからダイニングにかけて設けたベンチカウンターは、空間を広く見せる視覚的な効果があり、くつろぎやすさもアップ🌟
オープンな多目的スペースとして活用できるため、自然とリビングやダイニングをキレイに保つことができます。
「スッキリ暮らす」理想を叶える住まいを、ぜひ現地でご体感ください🍃
参加方法
予約制のため、事前にご予約頂いた上でご参加ください。
※1.サイトからのご予約はご来場前日の15時にて締切とさせて頂きます。
※2.締切以降の来場のご希望は、お電話にてスタッフまで直接ご相談下さい。
※3.先着順のため、止むを得ずお時間のご変更やお断りをさせていただく場合がございます。


