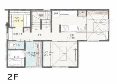
✅LDKと水まわりは2階に配置した間取り設計 ✅陽当たりが良く、外からの視線を気にせず過ごせる2階リビング
✅プライバシーに配慮した快適な住空間
✅家族みんなが心地よく過ごせる工夫を随所に採用
建売住宅をお考えの皆さまに嬉しいご案内です!
実際の暮らしをイメージしやすい建売住宅を、複数棟まとめてご見学いただける「建売住宅フェア」を開催します💡
間取りやデザイン、家事動線など、リアルな住まいを体感できるチャンス!
ご予約の際は、ご見学希望の物件名を「お問い合わせ欄」にご記入ください。
完全予約制となりますので予約フォームよりご来場お願いいたします!🏠
はじめてステーツへご来場いただいた方で、1年以内に注文住宅または建売住宅のご購入を検討中のお客様限定!
「Amazonギフト券 5,000円分」をプレゼントいたします🌟

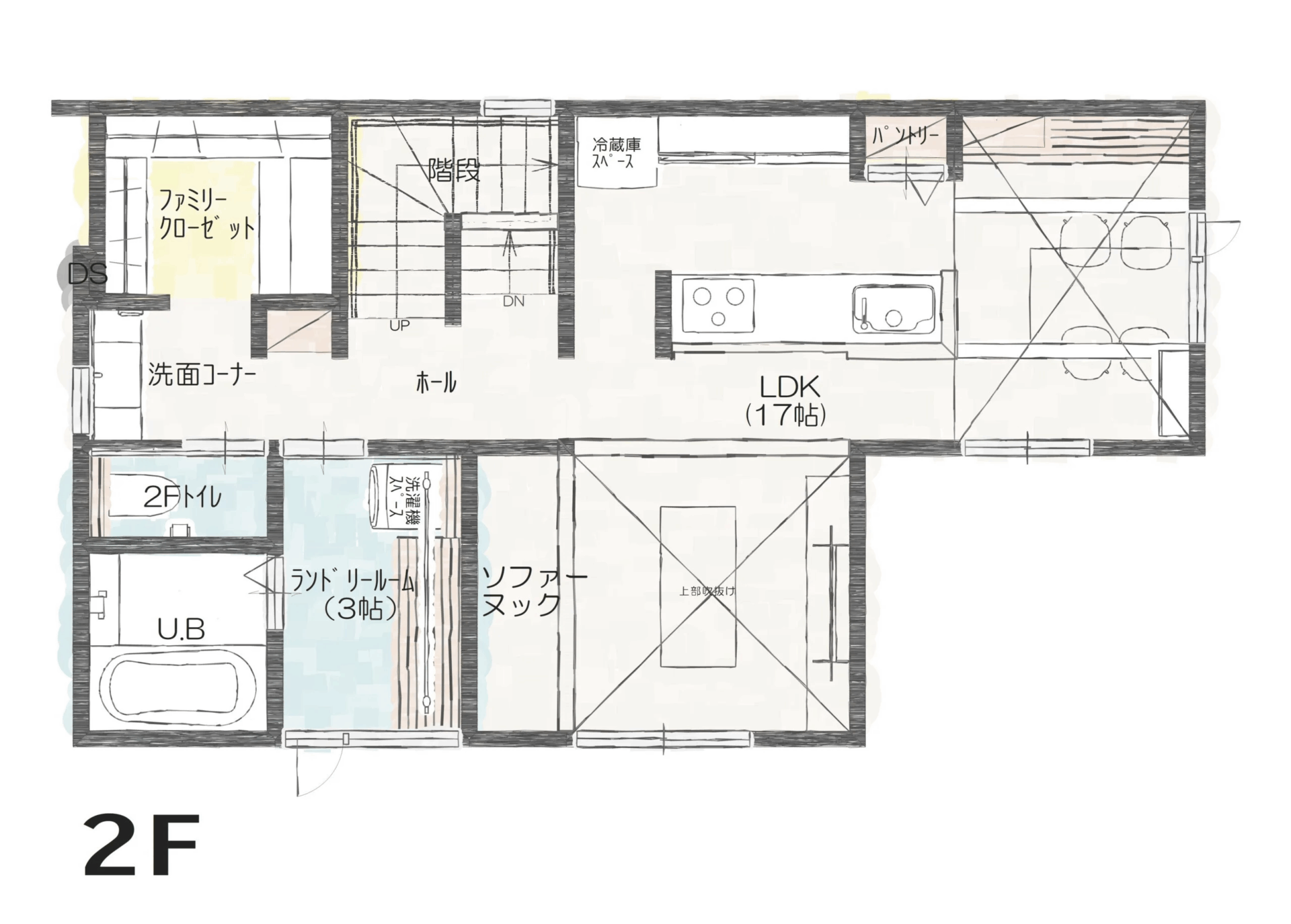
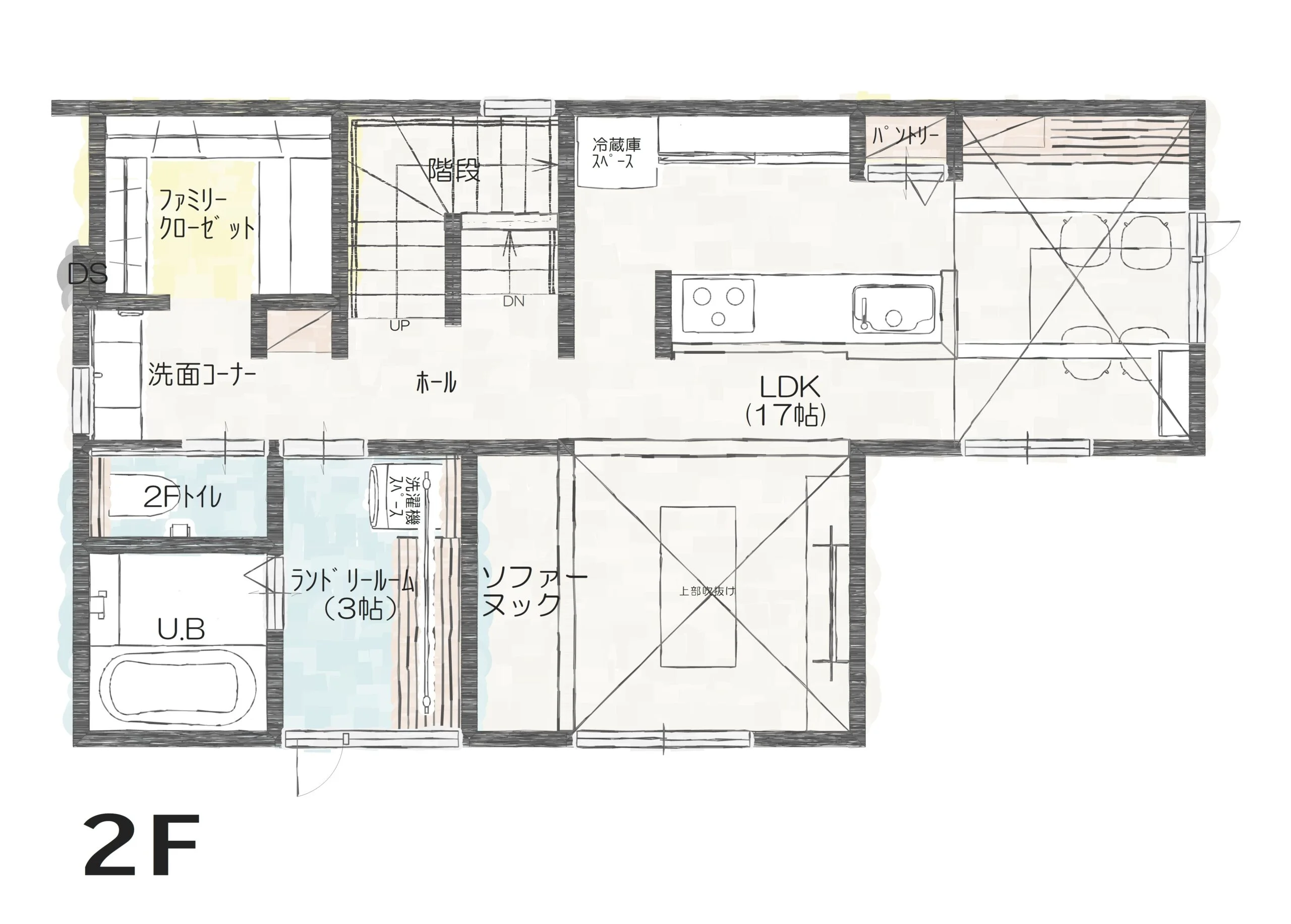
✅LDKと水まわりは2階に配置した間取り設計 ✅陽当たりが良く、外からの視線を気にせず過ごせる2階リビング
✅プライバシーに配慮した快適な住空間
✅家族みんなが心地よく過ごせる工夫を随所に採用

✅玄関からキッチン・洗面へ直行できる「おかえり動線」
✅家事や移動がスムーズになる動線設計
✅階段下に、こもって過ごせるカーペット敷きのヌックスペースを配置
✅寝転んでくつろげる、居心地の良いリラックス空間を確保

✅行き止まりのないペニンシュラ型キッチンを採用
✅円を描くような動線で、家事がスムーズに行える設計
✅リビングの一部に間接照明を取り入れた上質な空間
✅くつろぎの時間を豊かに彩る、特別感のある住まい演出
予約制のため、事前にご予約頂いた上でご参加ください。
※1.サイトからのご予約はご来場前日の15時にて締切とさせて頂きます。
※2.締切以降の来場のご希望は、お電話にてスタッフまで直接ご相談下さい。
※3.先着順のため、止むを得ずお時間のご変更やお断りをさせていただく場合がございます。