- 見学会・オープンハウス
1階寝室で半平屋の家と、3LDK・ヌックのある2階建ての家
【土日はフリー来場可】半平屋と2階建の家、2棟同時見学会(新潟市南区)
- 場所
- 新潟市南区戸頭・南区田中 ※マップは戸頭のお家を表示しています。Google MAP
- 日程
- 2026/04/11(土) ~ 2026/04/30(木)
- 時間
- 10:00~17:00【平日は予約制】
ギャラリー
今回見学できる2棟

01【1階寝室で半平屋生活の家】

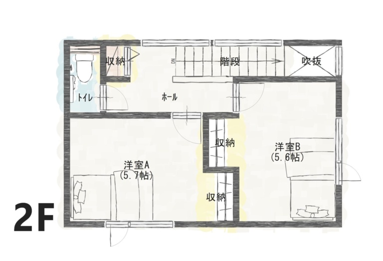
02【3LDK・ヌックのある2階建ての家】
コンセプトが違う2棟を同時見学!
ライフスタイルに合わせて選べる、2つの新しいお家が完成しました。将来を見据えた間取りと、今を楽しむ空間デザイン。異なる魅力を持った2棟を一度に見比べることができる特別な見学会です。ご家族の心地よい暮らしのヒントを、ぜひ現地で見つけてください。
① 【南区田中】1階寝室で叶える、将来を見据えた「半平屋生活の家」 1階に主寝室を配置し、日々の生活をワンフロアで完結できる間取り設計です。お子様が小さい時期はもちろん、将来ご夫婦ふたりになった後も、生涯を通じて平屋のようにゆったりと暮らすことができます。 さらに、シューズクロークからパントリー、キッチンへと真っ直ぐ繋がる優れた動線を確保。家事の負担を大きく軽減し、生活感を抑えたすっきりと美しいノイズレスな空間を保ちます。
② 【南区戸頭】家族の時間が深まる、ソファヌックのある「現代の3LDK」 2階に3つの居室を設けた、現代のスタンダードな2階建ての邸宅です。最大の魅力は、リビングに設けられた「ソファヌック」。ご家族がゆったりと腰を下ろし、お茶を飲んだり読書を楽しんだりできる、心地よいおこもり空間を計画しました。洗練されたモダンな設えの中で、上質なリラックスタイムをご体感いただけます。
「一生の暮らしやすさ」と「毎日の心地よさ」。それぞれのアプローチで設計された2棟のリアルなスケール感と動線を、ご自身の目でじっくりとお確かめください。皆様のご来場を心よりお待ちしております。
参加方法
土日は営業時間内いつでも来場OKです。
平日は予約制のため、事前にご予約頂いた上でご参加ください。
※1.サイトからのご予約はご来場前日の17時にて締切とさせて頂きます。
※2.締切以降の来場のご希望は、お電話にてスタッフまで直接ご相談下さい。
※3.先着順のため、止むを得ずお時間のご変更やお断りをさせていただく場合がございます。



