- 見学会・オープンハウス
まちなかモデルハウス販売!南面のスキップフロア+吹抜で明るい光が降り注ぐLDK空間へ(松山市東垣生町)
- 場所
- 松山市東垣生町
- 日程
- 2026/04/11(土) ~ 2026/04/30(木)
- 時間
- 10:00~17:00【予約制】
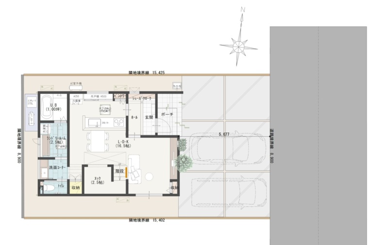
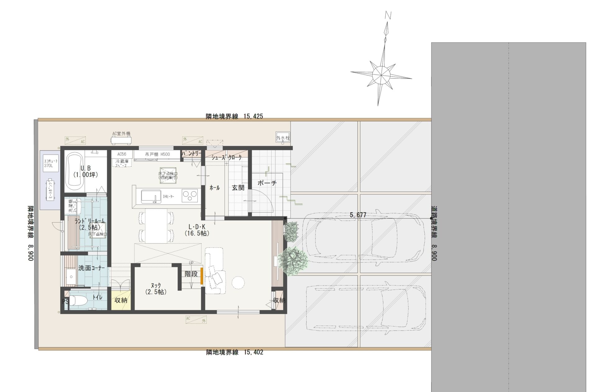
- 間取り
- 3LDK 延床面積:102.68㎡(31.06坪)
ギャラリー
物件ポイント
01災害時も安心『 太陽光パネル 』4.92kW搭載。
02「耐震等級3」最高ランクの頑強構造・地震に強い家
03住宅性能評価付き!ZEHを超える高断熱性能の基準「HEAT20 G2グレード」対応
まちなかモデルハウスを販売します!
全21区画の美しい街並みが広がる新興分譲地。その一角に、デザイン性と機能性を両立させた「まちなかモデルハウス」を販売いたします!
1. 災害時も日常も。太陽が味方する「安心と家計」
屋根には4.92kWの太陽光パネルを搭載。高い発電効率で日々の電気代を抑えるだけでなく、万が一の災害時や停電時にも電力を確保できる「もしもに強い家」です。地球に優しく、家計にもゆとりをもたらす次世代の省エネ住宅をご体感ください。
2. リビングを格上げする「上質な造作デザイン」
家族が集まるリビングには、こだわりが光る「造作TVカウンター」を設置。壁面には調湿・脱臭効果のある「エコカラット」をあしらい、視覚的な美しさと心地よい空気感を両立しました。注文住宅のような特別感を、建売住宅の身近さで手に入れるチャンスです。
3. 毎日の質を変える「洗練された洗面コーナー」
既製品にはない温もりを感じる「造作洗面台」を配置。毎朝の身支度が楽しみになるような、カフェ風のおしゃれな空間に仕上げました。細部にまでこだわったデザインが、住まう人の個性を引き立てます。
物件情報
「デザイン性と機能性を両立させた」
まちなかモデルハウス
販売価格:3,800万円(税込)
間取りや周辺環境、内観写真など、詳しい物件情報は下記リンクよりご確認いただけます📍
参加方法
予約制のため、事前にご予約頂いた上でご参加ください。
※1.サイトからのご予約はご来場前日の17時にて締切とさせて頂きます。
※2.締切以降の来場のご希望は、お電話にてスタッフまで直接ご相談下さい。
※3.先着順のため、止むを得ずお時間のご変更やお断りをさせていただく場合がございます。


