写真で見るだけではわからなかった、空間や収納の広さ、見え方、暖かさなどをご体験いただけますので、これから建てるお住まいでの具体的な生活のイメージが湧いてきます。
家族みんなが心地よく過ごせる住まいを実現
松前町筒井(まちなかモデルハウス)
- 所在地
- 伊予郡松前町Google MAP
- TEL
- 089ー961ー4001
- 営業時間
- 10:00 ~ 17:00 ※ご予約時のみオープン
- 定休日
- 水・木曜日
年末年始休業のお知らせ
平素より格別のご愛顧を賜り、誠にありがとうございます。
年末年始休業については下記のボタンよりご確認ください。
休業期間中でもお問い合わせフォームからご相談いただけますが、返信は年明けの営業開始後に順次対応させていただきます。
毎日の暮らしに、小さな贅沢を――――――――
趣味に没頭したり、お子様の遊び場にしたり
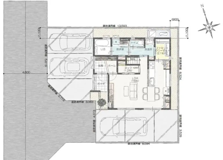
「ヌック」は、こもれる小さな空間。自分だけの時間を大切にできる、癒しのスペース。
自然と会話が生まれ、家族のつながりを感じられる間取りや毎日の家事が、ぐっと快適になるポイントも満載!
住む人が笑顔になれる理想の住まいをご提案します🌟
モデルハウスで、理想の暮らしをぜひ体感してください。
松前町筒井(まちなかモデルハウス)でできること
01リアルな体験ができる!
02情報収集がはかどる!
ホームページに掲載されている情報は全体のほんの一部です。モデルハウスでは家づくりに役立つたくさんの資料がありますので、情報収集がはかどること間違いなしです。
03家づくりの相談ができる!
「こんな暮らしをしたい」というイメージがある程度固まったら、モデルハウスの営業マンに話してみてください。理想的な暮らしを実現するための具体的なお住まいの案と、お見積り、実際の進め方などを、わかりやすくご説明させていただきますので、イメージがよりハッキリとしてきますよ。
04住宅ローンの相談ができる!
「住宅ローンはいっぱいあって、何を選んだらいいかよくわからない」という方は、是非ご相談ください。経験豊富なローンアドバイザーが具体的なアドバイスをいたしますので、より良いローンを選んでいただけるでしょう。
まずは見に来て、
感じてください!
百聞は一見にしかず。
写真では伝わらない空間の広がりや、素材の質感、暮らしのイメージを、ぜひ現地でご体感ください。
実際の住まいを見ながら、家づくりのヒントを見つけてみませんか?
皆さまのご来場を心よりお待ちしております。
ギャラリー
おすすめポイント

こもれる小さな空間「ヌック」で、自分だけの特別な時間を満喫

リビングとダイニングの床材を変えて違う雰囲気に

ヌック&洗面所へと続く動線

横並びのダイニングキッチンで動線がスムーズ

黒で統一したシックな玄関収納
間取り図



家族みんなが心地よく過ごせる住まいを実現
趣味部屋やお子様の遊び場にぴったりな、こもれる小さな空間「ヌック」で、自分だけの特別な時間を満喫。
横並びのダイニングキッチンは、配膳がしやすく、家事の動線もスムーズで、家族のコミュニケーションも自然と広がります。
陽当たりのよい南向きのバルコニーでは、洗濯物を一気に干せて家事の負担を軽減!