写真で見るだけではわからなかった、空間や収納の広さ、見え方、暖かさなどをご体験いただけますので、これから建てるお住まいでの具体的な生活のイメージが湧いてきます。
家族がつながる、やさしい平屋の暮らし
高松市三谷町(まちなかモデルハウス)
- 所在地
- 香川県高松市三谷町Google MAP
- TEL
- 営業時間
- 10:00 ~ 17:00 ※ご予約時のみオープン
- 定休日
- 水・木曜日
年末年始休業のお知らせ
平素より格別のご愛顧を賜り、誠にありがとうございます。
年末年始休業については下記のボタンよりご確認ください。
休業期間中でもお問い合わせフォームからご相談いただけますが、返信は年明けの営業開始後に順次対応させていただきます。
家族のつながりを大切にした平屋のモデルハウスが誕生しました!
コンパクトな間取りの中にも、暮らしやすさの工夫がぎゅっと詰まった住まいです。
さらに、外とゆるやかにつながるテラススペースも魅力!
子どもたちの遊び場や、ホッとひと息つける癒しの場所としても活躍します。
高松市三谷町(まちなかモデルハウス)でできること
01リアルな体験ができる!
02情報収集がはかどる!
ホームページに掲載されている情報は全体のほんの一部です。モデルハウスでは家づくりに役立つたくさんの資料がありますので、情報収集がはかどること間違いなしです。
03家づくりの相談ができる!
「こんな暮らしをしたい」というイメージがある程度固まったら、モデルハウスの営業マンに話してみてください。理想的な暮らしを実現するための具体的なお住まいの案と、お見積り、実際の進め方などを、わかりやすくご説明させていただきますので、イメージがよりハッキリとしてきますよ。
04住宅ローンの相談ができる!
「住宅ローンはいっぱいあって、何を選んだらいいかよくわからない」という方は、是非ご相談ください。経験豊富なローンアドバイザーが具体的なアドバイスをいたしますので、より良いローンを選んでいただけるでしょう。
まずは見に来て、
感じてください!
百聞は一見にしかず。
写真では伝わらない空間の広がりや、素材の質感、暮らしのイメージを、ぜひ現地でご体感ください。
実際の住まいを見ながら、家づくりのヒントを見つけてみませんか?
皆さまのご来場を心よりお待ちしております。
ギャラリー
おすすめポイント

家族が自然に顔を合わせる、つながりを感じる間取り

日用品や保存食品の収納庫として活用できるキッチンパントリー

LDKと寝室から自由にアクセスできるタイルテラス

BBQやガーデニング、お子様の遊び場…など様々な用途で使用可能
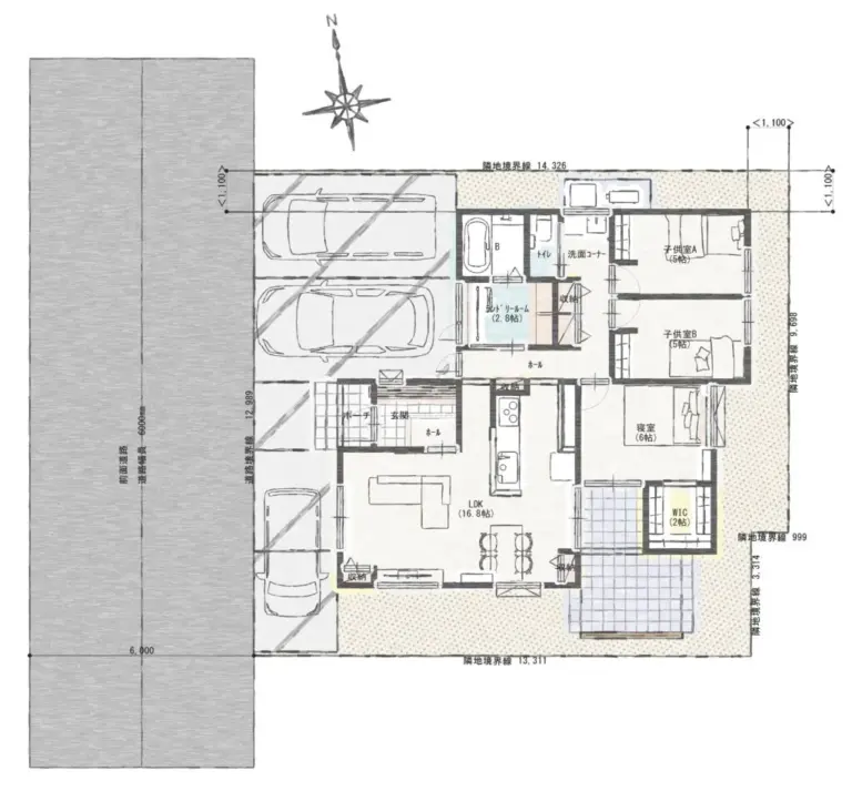
間取り図


コンパクトでも、家族のつながりと心地よさを大切にした住まい
無駄を省いたシンプルな間取りの中に、暮らしやすさの工夫がぎゅっと詰まった住まい。
家族が自然に顔を合わせる動線設計で、毎日の何気ない会話も大切な時間に変わります。
子育て世代にもうれしい平屋スタイルは、段差が少なく、どの世代にもやさしい安心設計。
さらに、外とゆるやかにつながるテラスは、子どもたちの遊び場や家族のくつろぎ空間として大活躍。
室内と外が緩やかにひとつながりになり、暮らしにゆとりと彩りをプラスしてくれます。