モデルハウス・支店

トレンドカラーのグレーが際立つ、スタイリッシュな暮らし
西区ときめき西G(まちなかモデルハウス)
所在地 |
新潟市西区ときめき西2丁目
GoogleMapで見る
|
---|---|
営業時間 | 10:00 ~ 17:00 ※ご予約時のみオープン |
定休日 | 水・木曜日 |
2025年10月完成予定!
\建売に合う、おしゃれな家具付♪/
アピタ・ウエルシア・パステルこども園・済生会病院まで
徒歩圏内で便利な立地!
\建売に合う、おしゃれな家具付♪/
アピタ・ウエルシア・パステルこども園・済生会病院まで
徒歩圏内で便利な立地!
お問い合わせはこちらから
展示場画像一覧
西区ときめき西G(まちなかモデルハウス)のおすすめポイント
-
ダイニングキッチン。ゆとりある空間設計で、日々の暮らしに心地よさをプラス
-
家族が自然と集まる開放的なリビング
-
ご夫婦のプライベート空間をしっかり確保
-
お子様の成長に合わせて独立した空間を提供
-
浴室・洗面室・トイレが1階にまとまり、生活動線がスムーズ。帰宅後や朝の身支度も効率的
-
テレワークや趣味の時間に集中できる専用スペース
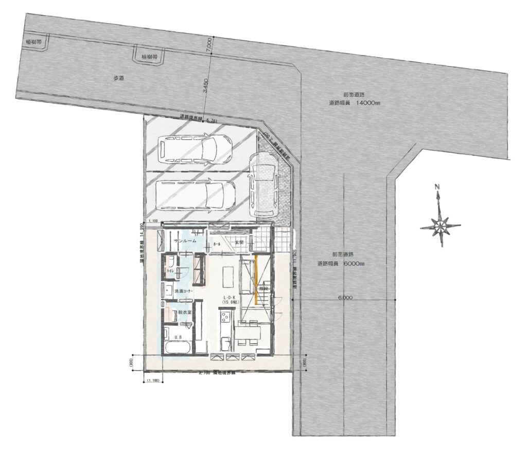
間取り図
1F
2F
配置図



家族時間と個の時間を両立する、4LDK+書斎の機能的2階建て
4LDKに書斎を加えた、ゆとりある2階建て住宅です。1階はパブリックスペース、2階はプライベートスペースと明確にゾーニングされ、家族構成やライフスタイルの変化にも柔軟に対応できる間取りとなっています。
西区ときめき西G(まちなかモデルハウス)でできること
-
01リアルな体験ができる!写真で見るだけではわからなかった、空間や収納の広さ、見え方、暖かさなどをご体験いただけますので、これから建てるお住まいでの具体的な生活のイメージが湧いてきます。
-
02情報収集がはかどる!ホームページに掲載されている情報は全体のほんの一部です。モデルハウスでは家づくりに役立つたくさんの資料がありますので、情報収集がはかどること間違いなしです。
-
03家づくりの相談ができる!「こんな暮らしをしたい」というイメージがある程度固まったら、モデルハウスの営業マンに話してみてください。理想的な暮らしを実現するための具体的なお住まいの案と、お見積り、実際の進め方などを、わかりやすくご説明させていただきますので、イメージがよりハッキリとしてきますよ。
-
04住宅ローンの相談ができる!「住宅ローンはいっぱいあって、何を選んだらいいかよくわからない」という方は、是非ご相談ください。経験豊富なローンアドバイザーが具体的なアドバイスをいたしますので、より良いローンを選んでいただけるでしょう。
アクセスマップ
- 電車をご利用の場合
- 最寄り駅:JR越後線 「小針」駅 2.3km/車で7分
- バスをご利用の場合
- バス停:新潟交通「ときめき」 徒歩8分
GoogleMapで見る
イベント情報
イベント情報はまだありません。
西区ときめき西G(まちなかモデルハウス)のブログ

来場希望日の前日17時~当日のご来場予約については、弊社営業時間(10:00~18:00)内に、
フリーダイヤル 0120-666-940 までお電話いただきますようご協力をお願いいたします。
※営業日にご予約確認をお電話又はメールにてご連絡させていただきます。
来場予約フォーム
新潟中越(燕三条エリア)
新潟中越(長岡エリア)
新潟上越
石川県
福井県
山梨県
滋賀県