- 建売住宅
2990万円(税込)
電車:しなの鉄道 「屋代」 徒歩16分
バス停 :千曲市バス「千曲市役所東」 徒歩1分
- 電話問い合わせ(無料)
-
フリーダイヤル 0120-666-940
【受付時間】10時~18時
物件の特徴
コンビニ・ドラッグストアまで徒歩5分以内♪
千曲市役所まで徒歩2分の至近距離!
・・・・・━━━━━━━━ ★建売のpoint ━━━━━━━━・・・・・
1. コンパクトながら広さ・明るさを十分に確保した、
延床面積28坪の建売住宅です。
2. すぐに暮らせる《家具セット・エアコン2台付き》
3. 吹抜けのシーリングファンにより、冷暖房効率を大幅にUP。
夏も冬も快適に過ごせます!
・・・・・ ━━━━━━━━━━━━━━━━━━━━━━━・・・・・
《価格改定しました! 》
※旧価格3,280万円(公表日:2024/9/12)→ 2,990万円(価格改定日:2025/6/12)
この機会にぜひご検討ください!
物件のおすすめポイント
この建売のポイント
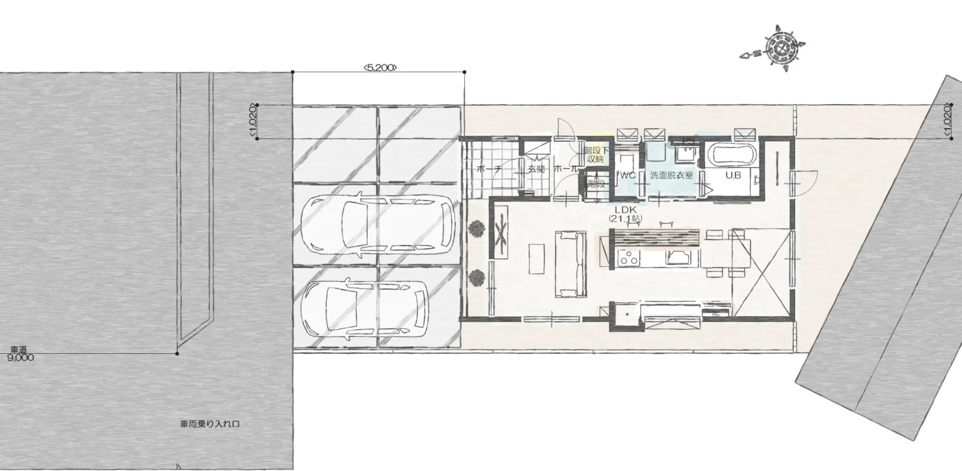
■周辺は住宅地で前面道路の幅は広々約16m!
大型車両でも十分な広さがあり、歩道も整備されているので通勤通学も利用しやすい道路です。
■敷地面積39坪とコンパクトながら3台分の駐車スペースをしっかりと確保。
■ダイニング上部の吹き抜け、全居室6帖以上、さらに全室2面採光!広さと明るさを兼ね揃えた間取り
■寝室8帖+WIC3帖で大きなベッドを置いても衣類が増えがちな方も安心ですね♪
■約21帖のLDKの中心にアイランドキッチンを設置。左右どちらからでもアクセス可能な使い勝手のよいキッチンです。
建売の強み
◇吹付け断熱材×樹脂サッシで、快適な高断熱性能
◇構造保証最長25年、地盤保証20年、白アリ保証10年の安心保証付き
◇第三者機関のJIO瑕疵担保保険加入済
■「千曲市杭瀬下B」建売 月々の返済例
(2025年6月現在)
[月々の返済額]76,967円 ※ボーナス払いなしの場合
■諸条件
[価 格] 3,280万円
[頭 金] 100万円
[借入金] 3,180万円
[金利タイプ]変動金利
[金 利] 0.768%
[借入年数] 40年
※ローン諸費用別途
- 電話問い合わせ(無料)
-
フリーダイヤル 0120-666-940
【受付時間】10時~18時
物件情報
- 物件名
- 千曲市杭瀬下B 建売住宅 2,990万円
- 価格
- 2990万円
- 間取り
- 3LDK
- 販売戸数
- -
- 総戸数
- -
- 土地面積(㎡)
- 131.18㎡(39.68坪)
- 建物面積(㎡)
- 93.02㎡(28.13坪)
- 私道負担・道路
- (西)16.0m 公道 接面7.5m (南東)4.0m 公道 接面8.3m
- 完成時期(築年月)
- 2023年7月
- 住所
- 千曲市杭瀬下1丁目GoogleMap
- 交通
- 電車:しなの鉄道 「屋代」 徒歩16分
バス停 :千曲市バス「千曲市役所東」 徒歩1分 - 構造・工法
- 木造
- 駐車場
- 駐車場3台分
- 現況
- 完成済
- 引渡しについて
- 即引渡し可
- 小学校区
- 千曲市立埴生小学校
- 中学校区
- 千曲市立埴生中学校
- 用途地域
- 準住居
- 土地権利
- 所有権
- 建ぺい率
- 60%
- 容積率
- 200%
- 都市計画
- 非線引区域
- 建築確認番号
- 第21NJK-10-01738号
- 取引態様
- 売主
- 地目
- 畑
- 地勢
- 平坦
- 備考
- ■土地+建物+外構セットの価格です。
- 電話問い合わせ(無料)
-
フリーダイヤル 0120-666-940
【受付時間】10時~18時
周辺環境

ベイシア更埴店(950m)

バロー千曲店(850m)

セブンイレブン更埴市民体育館前店(250m)

アメリカンドラッグ杭瀬下店(700m)

千曲市立埴生中学校(1200m)

千曲市立埴生小学校(1700m)

更埴中央公園(400m)

千曲市役所(180m)
設備・仕様

バス1坪以上

追焚機能

浴室暖房

浴室乾燥機

トイレ2ヶ所

タンクレストイレ

温水洗浄便座

シャワー付洗面化粧台

室内物干し

省エネ給湯器

IHクッキングヒーター

アイランドキッチン

システムキッチン

グリル

食器洗浄乾燥機

浄水器

クローゼット

ウォークインクローゼット

床下収納

照明器具

人感センサー付照明

ダウンライト

都市ガス

電気

上水道

下水道

複層ガラス

エアコン2台以上

シーリングファン

シーリングファン

ダブルロックドア

モニタ付インターホン

ディンプルキー

火災警報器(報知機)

耐震等級2
物件見学・お問い合わせフォーム
押し売り営業は一切いたしません。
安心してご入力ください。


