- 建売住宅
4262万円(税込)
JR徳島線 鮎喰 徒歩15分
- 電話問い合わせ(無料)
-
フリーダイヤル 0120-666-940
【受付時間】10時~18時
物件の特徴
~キーワードは『緑の中で豊かな暮らし』~
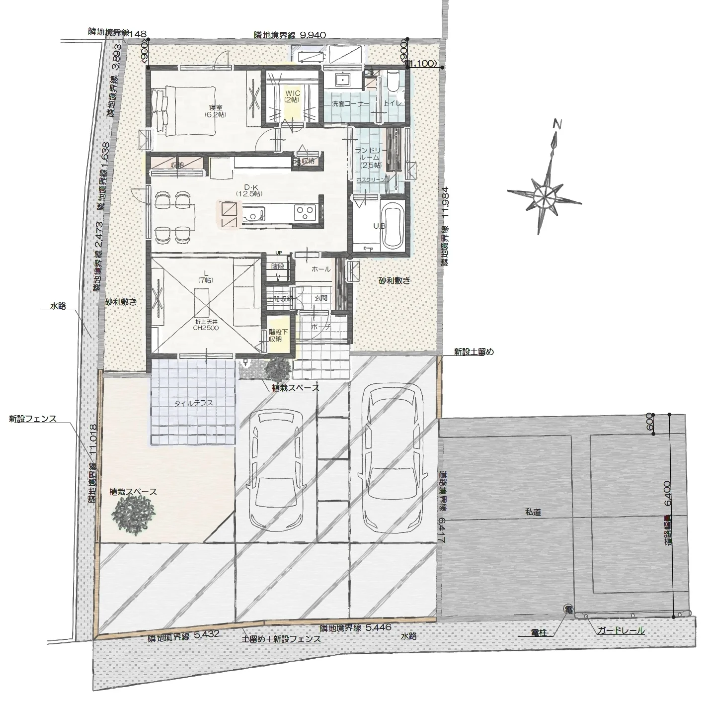
快適な1F寝室と2.5mの折上天井リビング・木目柄のキッチンが魅力的な建売住宅です。
加茂名中学校、スーパー、ドラッグストア、ホームセンターまで徒歩圏内!
静かな住宅地で市街地が近く、周辺環境にも恵まれています♪
物件のおすすめポイント
周辺環境
■ 複数の店舗が揃った、大型ショッピングセンター「タクト」まで車で7分。
■ キョーエイ、くすりのレディ、DMCホームセンターは徒歩圏内の近さ♪
物件Point
● 駐車3台以上可能!袋小路のため敷地内で回転出来るスペースも確保。
● プライベートテラスでおうちアウトドア気分を満喫
● ワンフロアで日常生活を過ごせるよう寝室を1階に配置し、子育て中も老後も安心
● 広々とした洗面台とランドリールームで毎日の家事や身支度も楽しく
● 玄関土間・階段下・2階納戸など収納スペース盛りだくさん
● 内装はグレー×木目でナチュラルシンプルに、やさしい空間
《 月々の返済例 》
◆【 徳島市南庄町C 】建売住宅 ご購入の場合
(2026年2月現在)
―――――――――――――――
[月々の返済額]101,348円
※ボーナス払いなしの場合
―――――――――――――――
■諸条件
[価 格] 4,262万円
[頭 金] 100万円
[借入金] 4,162万円
[金利タイプ]変動金利
[金 利] 0.80%
[借入年数] 40年
※ローン諸費用別途
- 電話問い合わせ(無料)
-
フリーダイヤル 0120-666-940
【受付時間】10時~18時
物件情報
- 物件名
- 徳島市南庄町C 建売住宅 4,262万円
- 価格
- 4262万円
- 間取り
- 3SLDK
- 販売戸数
- -
- 総戸数
- -
- 土地面積(㎡)
- 198.19㎡(59.95坪)
- 建物面積(㎡)
- 95.22㎡(28.8坪)
- 私道負担・道路
- 東 6.4m 私道 接面6.4m
- 完成時期(築年月)
- 2025年5月
- 住所
- 徳島市南庄町3丁目GoogleMap
- 交通
- JR徳島線 鮎喰 徒歩15分
- 構造・工法
- 木造
- 駐車場
- 駐車場3台分以上
- 現況
- 完成済み
- 引き渡しについて
- 即引渡し可
- 小学校区
- 加茂名小学校
- 中学校区
- 加茂名中学校
- 用途地域
- 1種中高
- 土地権利
- 所有権
- 建ぺい率
- 60%
- 容積率
- 200%
- 都市計画
- 市街化区域
- 建築確認番号
- 第131号
- 取引態様
- 売主
- 地目
- 宅地
- 地勢
- 平坦
- 備考
- ■土地+建物+外構 セットの価格です。
- 電話問い合わせ(無料)
-
フリーダイヤル 0120-666-940
【受付時間】10時~18時
周辺環境

ショッピングプラザタクト
(1300m)

キョーエイ鮎喰店
(550m)

ファミリーマート庄町三丁目店
(700m)

くすりのレデイ庄町店
(500m)

徳島市立加茂名中学校
(350m)

徳島市立加茂名小学校
(900m)

若松こども園
(1100m)

徳島県立中央病院
(1500m)
設備・仕様

バス1坪以上

追焚機能

浴室暖房

浴室乾燥機

タンクレストイレ

温水洗浄便座

シャワー付洗面化粧台

室内物干し

省エネ給湯器

IHクッキングヒーター

アイランドキッチン

システムキッチン

グリル

食器洗浄乾燥機

浄水器

パントリー

ウォークインクローゼット

床下収納

照明器具

人感センサー付照明

ダウンライト

電気

上水道

浄化槽

複層ガラス

Low-Eガラス

エアコン

ダブルロックドア

モニタ付インターホン

ディンプルキー

火災警報器(報知機)

耐震等級3
物件見学・お問い合わせフォーム
押し売り営業は一切いたしません。
安心してご入力ください。


