- 建売住宅
4500万円(税込)
【最寄り駅】①JR越後線「小針」徒歩22分/ ②JR越後線「青山」徒歩22分
【バス停】 新潟交通「小針中学前」 徒歩4分
- 電話問い合わせ(無料)
-
フリーダイヤル 0120-666-940
【受付時間】10時~18時
物件の特徴
✼••┈┈┈┈┈┈┈┈┈┈┈┈┈┈┈┈┈┈┈┈┈┈••✼
\2台用アルミカーポート付!/
~ 自然に囲まれた癒しの贅沢空間
【プライベートテラス】 のある家 ~
✼••┈┈┈┈┈┈┈┈┈┈┈┈┈┈┈┈┈┈┈┈┈┈••✼
● イオン・アピタ 2つの大型商業施設をはじめ、公園やドラッグストア等、生活環境が整った「小針球場」跡地の大型分譲地
● 新潟駅まで3駅!交通アクセスの良さも魅力♪
● 美しく暮らしやすい街並み
● スーパーマルイが分譲地内にオープンし、さらに便利に。
物件のおすすめポイント
《 周辺環境 》
■ 新潟市西区旧小針球場跡地の大型分譲地内
■ 小針小学校 徒歩15分、小針中学校 徒歩5分以内でお子様の負担にならない距離です。
■「マルイ」が2024年12月に分譲地内にオープン♪
スーパーが近くて利用しやすいメリットも魅力ですね!
《 物件Point 》
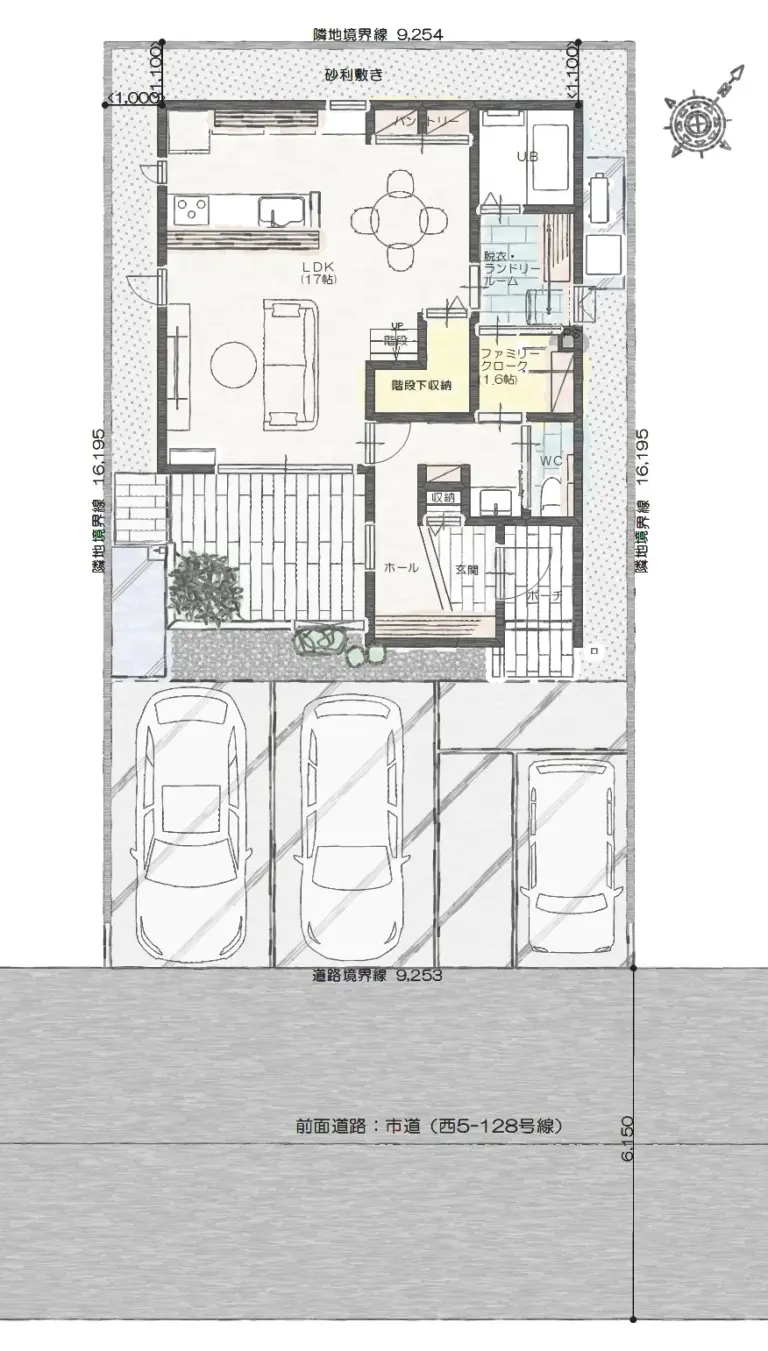
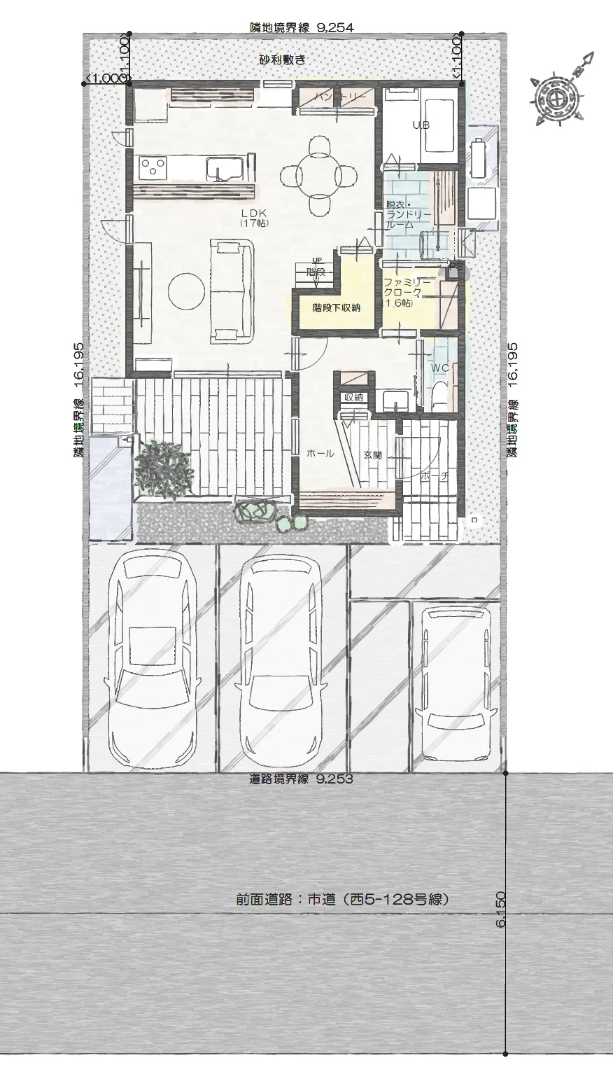
■ 駐車スペース3台分
■ リビングとフラットに繋がるプライベートテラスは陽当たり◎
日光浴やプール遊び、BBQ、ガーデニングなど自然に触れながらアウトドアを思いっきり楽しんで、外遊びの達人に♪
お庭の植栽を眺めながら目隠し壁に囲まれたプライベート空間で贅沢な時間をのんびり満喫!
■ 普段よく使う衣類はココへ。家族でシェアできる、1階ファミリークローク
■ 二つに分けたクローゼットがある主寝室。夫婦で収納を分けることが可能!
■ パントリー、階段下収納、ファミリークローク、2階ホール収納など、欲しい場所に最適な収納スペースを確保しました。
《 月々の返済例 》
◆【 西区小針A 】建売住宅 ご購入の場合
(2025年11月現在)
―――――――――――――――
[月々の返済額]107,144円
―――――――――――――――
※ボーナス払いなしの場合
■諸条件
[価 格] 4,500万円
[頭 金] 100万円
[借入金] 4,400万円
[金利タイプ]変動金利
[金 利] 0.8%
[借入年数] 40年
※ローン諸費用別途
- 電話問い合わせ(無料)
-
フリーダイヤル 0120-666-940
【受付時間】10時~18時
物件情報
- 物件名
- 西区小針A 建売住宅 4,500万円
- 価格
- 4500万円
- 間取り
- 3LDK
- 販売戸数
- -
- 総戸数
- -
- 土地面積(㎡)
- 149.85㎡(45.32坪)
- 建物面積(㎡)
- 101.57㎡(30.72坪)
- 私道負担・道路
- 南東6.1m 公道 接面9.2m
- 完成時期(築年月)
- 2025年05月 新築
- 住所
- 新潟市西区小針1丁目GoogleMap
- 交通
- 【最寄り駅】①JR越後線「小針」徒歩22分/ ②JR越後線「青山」徒歩22分
【バス停】 新潟交通「小針中学前」 徒歩4分 - 構造・工法
- 木造
- 駐車場
- 3台分
- 現況
- 完成済み
- 引き渡しについて
- 即引渡し可
- 小学校区
- 小針小学校
- 中学校区
- 小針中学校
- 用途地域
- 2種中高
- 土地権利
- 所有権
- 建ぺい率
- 60%
- 容積率
- 200%
- 都市計画
- 市街化区域
- 建築確認番号
- 第R06-2103号
- 取引態様
- 売主
- 地目
- 宅地
- 地勢
- 平坦
- 備考
- ■土地+建物セットの価格です。
- 電話問い合わせ(無料)
-
フリーダイヤル 0120-666-940
【受付時間】10時~18時
周辺環境

イオン新潟青山店(■車で約4分)(1000m)

アピタ新潟西店(■車で約4分)(1100m)

セブンイレブン新潟小針1丁目店(500m)

ウエルシア青山店(550m)

コメリハード&グリーン小針店(■車で約5分)(1000m)

新潟市立小針中学校(290m)

新潟市立小針小学校(1100m)

東小針認定こども園(650m)

新潟医療センター(800m)

平島公園(140m)
設備・仕様

バス1坪以上

追焚機能

浴室暖房

浴室乾燥機

トイレ2ヶ所

タンクレストイレ

温水洗浄便座

シャワー付洗面化粧台

室内物干し

IHクッキングヒーター

システムキッチン

グリル

食器洗浄乾燥機

パントリー

全居室収納

クローゼット

床下収納

照明器具

間接照明

人感センサー付照明

ダウンライト

都市ガス

電気

上水道

下水道

複層ガラス

Low-Eガラス

エアコン2台以上

ダブルロックドア

モニタ付インターホン

ディンプルキー

火災警報器(報知機)

耐震等級3
物件見学・お問い合わせフォーム
押し売り営業は一切いたしません。
安心してご入力ください。


