- 建売住宅
4000万円(税込)
伊予鉄道郡中線 「鎌田」 徒歩20分
- 電話問い合わせ(無料)
-
フリーダイヤル 0120-666-940
【受付時間】10時~18時
物件の特徴
うれしい\家具付きの建売住宅/
~和モダンで落ち着いた雰囲気のお家~
伝統的な”和の要素”と、現代的でスタイリッシュな”モダンなデザイン”を掛けあわせた落ち着いた佇まい。
全21区画の新興分譲地の1区画。
災害時も安心『☀ 太陽光パネル ☀』4.92kW搭載。
家計も地球にも優しい、省エネ住宅。
物件のおすすめポイント
.*━━ 物件のPoint ━━*.
■住宅性能評価付き!ZEHを超える高断熱性能の基準「HEAT20 G2グレード」対応
■和室を含めて約20帖以上のLDK
■大開口窓で明るく開放的なリビング
■オシャレで特別な造作洗面台
■屋根付きバルコニーで外干しOK!カラッと乾きやすく紫外線や風通しも良いので気持ちいい♪
■TVボードの裏には『隠す収納』が…。生活感を感じさせないスタイリッシュな空間に。
.*━━ STATESの魅力 ━━*.
◆「耐震等級3」最高ランクの頑強構造・地震に強い家
◆大切な住まいを熱から守る「省令準耐火構造」で火災保険料もお得に!
◆徹底した品質管理・安心のアフターサポート・充実の長期保証
「最長60年保証&無償定期点検」をはじめ、設備保証も10年と長期対応
■月々の返済例
◆【 松山市東垣生町A 】建売 ご購入の場合
(2026年2月現在)
―――――――――――――――
[月々の返済額]94,969円
※ボーナス払いなしの場合
―――――――――――――――
■諸条件
[価 格] 4,000万円
[頭 金] 100万円
[借入金] 3,900万円
[金利タイプ]新変動金利(保証料含む)
[金 利] 0.80%
[借入先/借入年数] 伊予銀行(40年返済の場合)
※ローン諸費用別途
■諸費用 ※別途必要となります。
・電子契約に伴う事務手数料 5,500円
・水道申請・検査 4,300円
・確認申請費料 95,500円
・完了検査料 40,000円
- 電話問い合わせ(無料)
-
フリーダイヤル 0120-666-940
【受付時間】10時~18時
物件情報
- 物件名
- 松山市東垣生町A 建売住宅 4,000万円
- 価格
- 4000万円
- 間取り
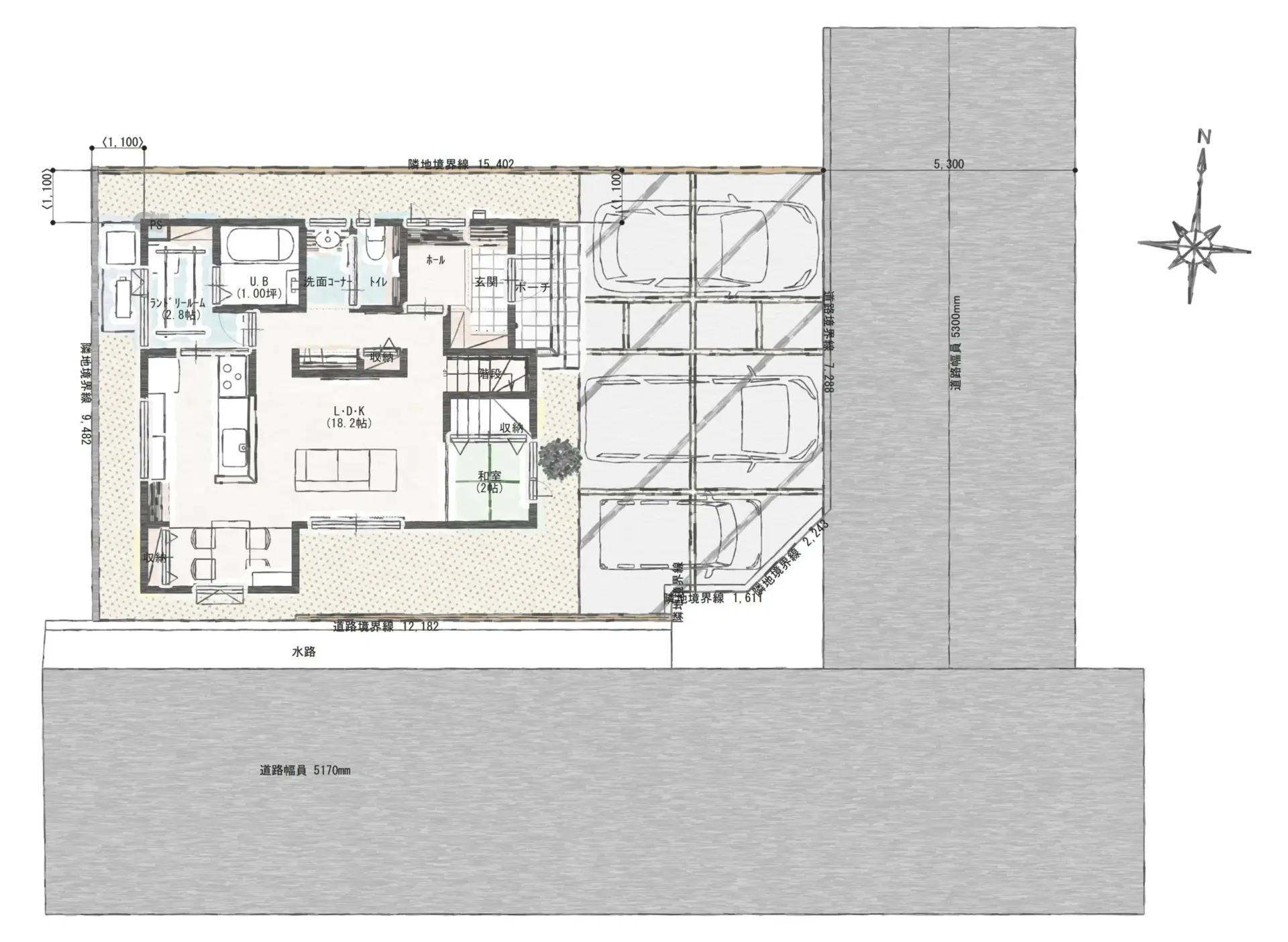
- 3LDK
- 販売戸数
- -
- 総戸数
- -
- 土地面積(㎡)
- 142.71㎡(43.16坪)
- 建物面積(㎡)
- 101.64㎡(30.74坪)
- 私道負担・道路
- 東 5.3m 接面7.2m
- 完成時期(築年月)
- 2025年10月 新築
- 住所
- 松山市東垣生町GoogleMap
- 交通
- 伊予鉄道郡中線 「鎌田」 徒歩20分
- 構造・工法
- 木造
- 駐車場
- 3台分
- 現況
- 完成済
- 引き渡しについて
- 即引渡し可
- 小学校区
- 垣生小学校
- 中学校区
- 垣生中学校
- 用途地域
- 準工業
- 土地権利
- 所有権
- 建ぺい率
- 60%
- 容積率
- 200%
- 都市計画
- 市街化区域
- 建築確認番号
- 第2025建確-0128号
- 取引態様
- 売主
- 地目
- 宅地
- 地勢
- 平坦
- 備考
- ■土地+建物+外構セットの価格です。
- 電話問い合わせ(無料)
-
フリーダイヤル 0120-666-940
【受付時間】10時~18時
周辺環境

セブンスター垣生店(450m)

ローソン松山垣生店(450)

ウエルシア松山東垣生町店(750m)

DCM垣生店(■車で約6分)(1300m)

松山市立垣生中学校(850m)

松山市立垣生小学校(1300m)

伊予銀行垣生支店(450m)

東垣生南公園(85m)
設備・仕様

バス1坪以上

追焚機能

浴室暖房

浴室乾燥機

トイレ2ヶ所

タンクレストイレ

温水洗浄便座

室内物干し

省エネ給湯器

IHクッキングヒーター

システムキッチン

グリル

食器洗浄乾燥機

パントリー

ウォークインクローゼット

シューズIC

床下収納

照明器具

間接照明

人感センサー付照明

ダウンライト

電気

上水道

下水道

太陽光発電システム

複層ガラス

Low-Eガラス

エアコン2台以上

ダブルロックドア

モニタ付インターホン

ディンプルキー

火災警報器(報知機)

耐震等級3
物件見学・お問い合わせフォーム
押し売り営業は一切いたしません。
安心してご入力ください。


