- 建売住宅
3800万円(税込)
最寄り駅:JR信越本線 「矢代田」車で18分
バス停:①新潟交通バス「白根日の出町」徒歩5分
②レインボーバス「マーケットシティ白根前」徒歩3分
- 電話問い合わせ(無料)
-
フリーダイヤル 0120-666-940
【受付時間】10時~18時
物件の特徴
\建売に合う、おしゃれな家具付♪/
白根バイパス間近!無印良品、原信、白根総合病院、
コンビニ、ドラッグストアもぜ~んぶ徒歩5分以内!
いろんなお店が揃っているので、ゆったりとお買い物を楽しめます。
物件のおすすめポイント
.*━━ 物件のPoint ━━*.
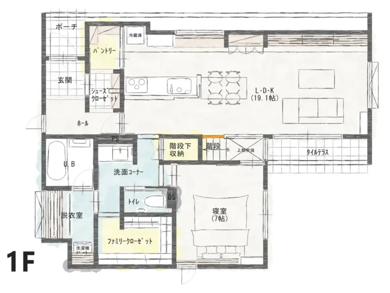
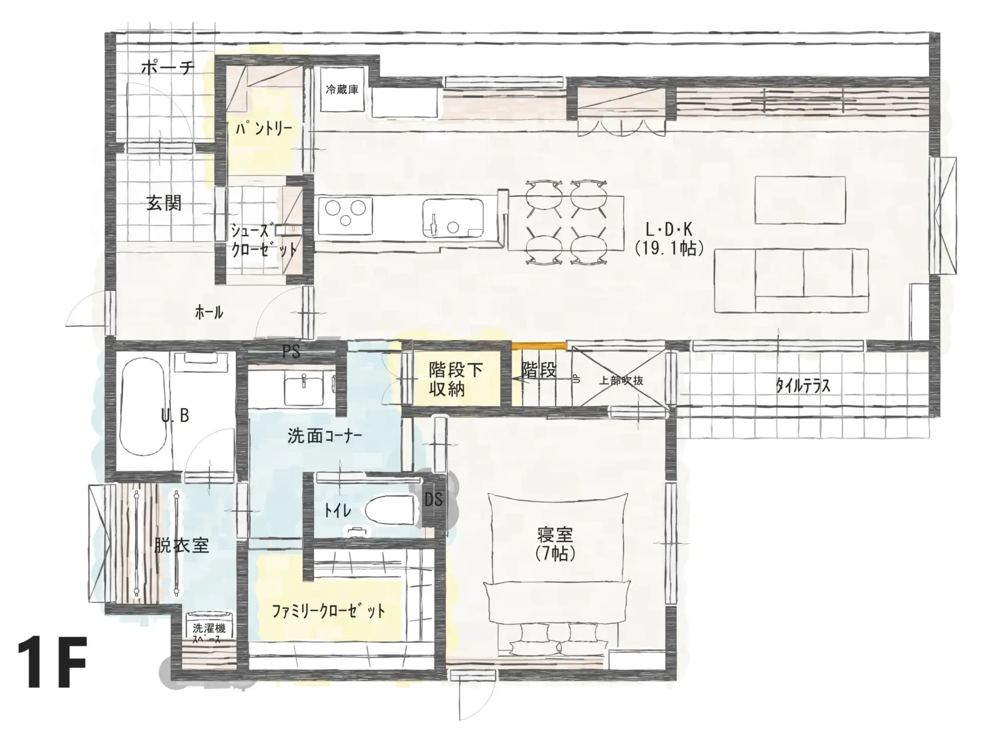
【LDK】19帖以上の広々としたLDK。北側の壁一面「下がり天井」仕様にし、空間にアクセントを付けました。
【リビング】造作TVボード&間接照明のあるリビングで映画鑑賞やお酒を楽しんだり…。特別な時間を過ごせます♪
【タイルテラス】お手入れ簡単で存在感を感じる軒下タイルテラス。
リビングから直接アクセスできるので、お庭遊びや家庭菜園、天気の良い日は外干しもOK!
【収納豊富!】パントリー・ダイニング後ろのカウンター収納・1Fファミリークローゼット、階段下・玄関収納など
収納たっぷりでいつでもスッキリ快適に。
【1F寝室】1F完結型!将来のことを考えた使い勝手の良い間取り。
.*━━ STATESの魅力 ━━*.
◆「耐震等級3」最高ランクの頑強構造・地震に強い家
◆ 大切な住まいを熱から守る「省令準耐火構造」で火災保険料もお得に!
◆ 徹底した品質管理・安心のアフターサポート・充実の長期保証
「最長60年保証&無償定期点検」をはじめ、設備保証も10年と長期対応
《 月々の返済例 》
◆【南区田中A】建売住宅 ご購入の場合
(2025年11月現在)
―――――――――――――――
[月々の返済額]90,098円
※ボーナス払いなしの場合
―――――――――――――――
■諸条件
[価 格] 3,800万円
[頭 金] 100万円
[借入金] 3,700万円
[金利タイプ]変動金利
[金 利] 0.8%
[借入年数] 40年
※ローン諸費用別途
- 電話問い合わせ(無料)
-
フリーダイヤル 0120-666-940
【受付時間】10時~18時
物件情報
- 物件名
- 南区田中A 建売住宅 3,800万円
- 価格
- 3800万円
- 間取り
- 3LDK
- 販売戸数
- -
- 総戸数
- -
- 土地面積(㎡)
- 206.12㎡(62.35坪)
- 建物面積(㎡)
- 104.84㎡(31.71坪)
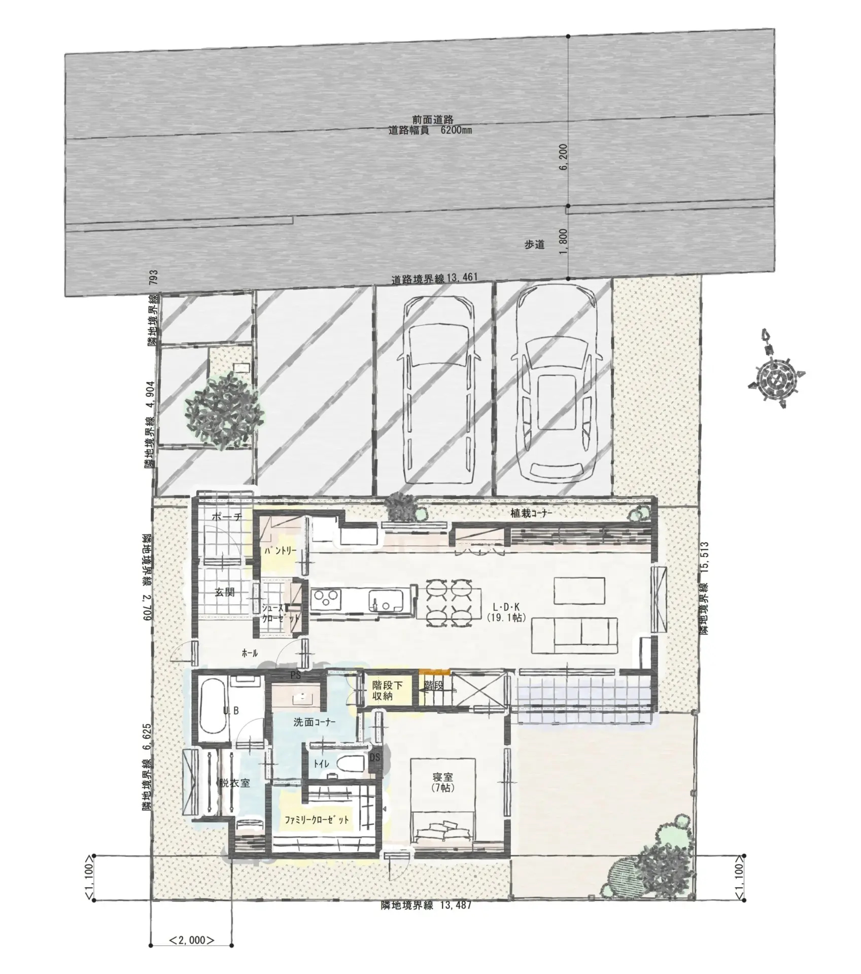
- 私道負担・道路
- 北 6.2m 公道 接面13.4m
- 完成時期(築年月)
- 2025年09月 新築
- 住所
- 新潟市南区田中GoogleMap
- 交通
- 最寄り駅:JR信越本線 「矢代田」車で18分
バス停:①新潟交通バス「白根日の出町」徒歩5分
②レインボーバス「マーケットシティ白根前」徒歩3分 - 構造・工法
- 木造
- 駐車場
- 3台分
- 現況
- 完成済み
- 引き渡しについて
- 即引渡し可
- 小学校区
- 白根小学校
- 中学校区
- 白根第一中学校
- 用途地域
- 1種住居
- 土地権利
- 所有権
- 建ぺい率
- 60%
- 容積率
- 200%
- 都市計画
- 市街化区域
- 建築確認番号
- 第R07-0011号
- 取引態様
- 売主
- 地目
- 畑
- 地勢
- 平坦
- 備考
- ■土地+建物+外構セットの価格です。
- 電話問い合わせ(無料)
-
フリーダイヤル 0120-666-940
【受付時間】10時~18時
周辺環境

原信 白根店(280m)

無印良品 新潟白根店(180m)

マーケットシティ白根前(350m)

しろねカイトタウン(1000m)

リオン・ドール白根店(1100m)

セブンイレブン 白根戸頭店(130m)

ドラッグ・トップス 白根店(400m)

ひらせいホームセンター白根バイパス店(1000m)

新潟市立白根第一中学校(1400m)

新潟市立白根小学校(1300m)

諏訪木保育園(550m)

新潟白根総合病院(650m)
設備・仕様

バス1坪以上

追焚機能

浴室暖房

浴室乾燥機

トイレ2ヶ所

タンクレストイレ

温水洗浄便座

シャワー付洗面化粧台

室内物干し

省エネ給湯器

IHクッキングヒーター

システムキッチン

グリル

浄水器

パントリー

ウォークインクローゼット

シューズIC

床下収納

照明器具

間接照明

人感センサー付照明

ダウンライト

都市ガス

電気

上水道

下水道

複層ガラス

Low-Eガラス

エアコン3台

ダブルロックドア

モニタ付インターホン

ディンプルキー

火災警報器(報知機)

耐震等級3
物件見学・お問い合わせフォーム
押し売り営業は一切いたしません。
安心してご入力ください。


