- 建売住宅
3800万円(税込)
最寄り駅:長野電鉄長野線 「桐原」 車で9分
バス停:アルピコ交通「浅川団地中央公園」徒歩2分
- 電話問い合わせ(無料)
-
フリーダイヤル 0120-666-940
【受付時間】10時~18時
物件の特徴
・・・・・━━━━━━━━
夏はすずしく、冬はぽかぽか。一年中、春みたいな心地よさ。
_性能の高さと家族思いの、ハイスペックな住まい🏠✨
━━━━━━━━・・・・・
■ おうちをすっぽり保温:発泡ウレタン&フェノールフォーム。こだわりの「W(ダブル)断熱」でぽかぽか。
■ 寒さ知らずの安心感:UA値 0.31W/㎡K、最高水準のあたたかさ( 断熱等級6・HEAT20 G2対応 )
■ 窓辺のヒヤッとお別れ:ぬくもりを逃さない「3重ガラスの樹脂サッシ」。魔法瓶みたいに、心地よさをキープ。
■ 自然のめぐみを暮らしに:☀️お日さまの力で、毎日の家計をふんわりサポート。家計にやさしい「太陽光パネル 4.92kW 」搭載。
物件のおすすめポイント
.*━━ 物件Point ━━*.
\◆ 価格改定 “170万円”お値引き!! /
【長野市浅川A】建売住宅 税込3,800万円!
土地・建物・外構・駐車場・エアコンまで含めた価格を、より安心してご検討いただけるよう見直しました。
▶旧価格3,970万円(公表:2025/6/13)→ 3,800万円(価格改定:2026/2/1)
——————————————
\ 太陽光パネル 4.92kW搭載! /
W(ダブル)断熱・樹脂トリプルガラスサッシの高断熱性能と
太陽光パネルで省エネ・快適な30坪サイズの住まい
◆浅川小学校・北部中学校 徒歩10分以内で通学も安心。
◆すぐに暮らせるうれしい"家具セット"付!
◆災害時も安心『太陽光パネル』4.92kW搭載。家計も地球にも優しい、省エネ住宅
◆駐車3台分OK。エアコン2台付
◆ムダのない30坪ジャストサイズの間取り
◆リビング横の小さな場所。ゆるやかに繋がる程よい距離感が心地よい「小上がりヌック」
◆2.7m大きな食器棚と専用パントリーでキッチン周りのアイテムを一気に収納。片づける習慣が身に付きます。
◆吹き抜けのある大開口窓で光と風をたっぷり注ぐ開放的なリビング
◆ ただいま手洗い習慣が身に付く「玄関先手洗い器」
◆ 2Fホールに物干しを設け、空間を有効活用。
.*━━ 建物仕様 ━━*.
◆「耐震等級3」最高ランクの頑強構造・地震に強い家
◆大切な住まいを熱から守る「省令準耐火構造」で火災保険料もお得に!
◆徹底した品質管理・安心のアフターサポート・充実の長期保証
「最長60年保証&無償定期点検」をはじめ、設備保証も10年と長期対応
月々の返済例
■「長野市浅川A」建売住宅 月々の返済例
(2026年2月現在)
―――――――――――――――
[月々の返済額]90,098円 ※ボーナス払いなしの場合
―――――――――――――――
■諸条件
[価 格] 3,800万円
[頭 金] 100万円
[借入金] 3,700万円
[金利タイプ]変動金利
[金 利] 0.80%
[借入年数] 40年
※ローン諸費用別途
- 電話問い合わせ(無料)
-
フリーダイヤル 0120-666-940
【受付時間】10時~18時
物件情報
- 物件名
- 長野市浅川A 建売住宅 3,800万円
- 価格
- 3800万円
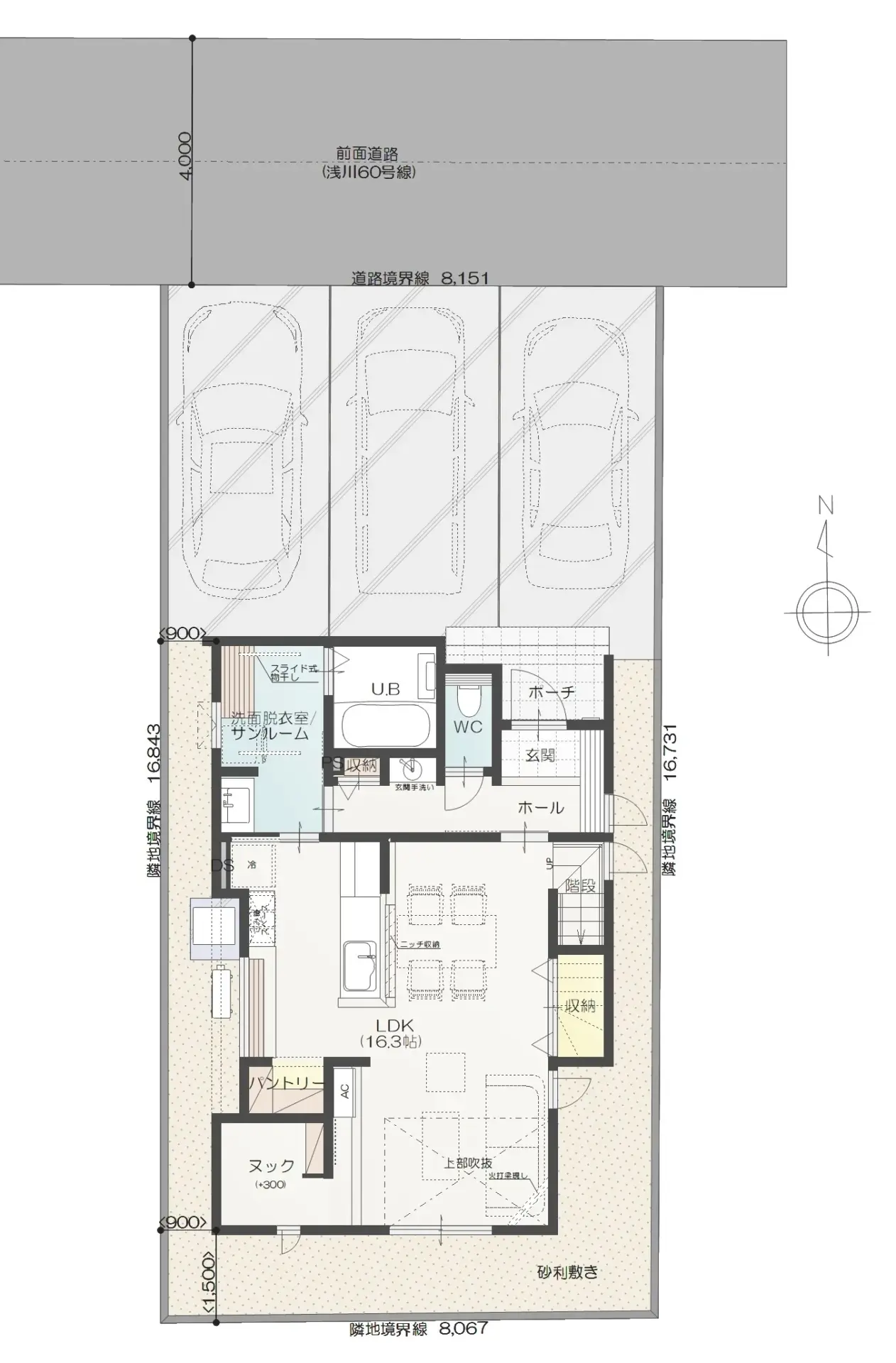
- 間取り
- 3SLDK
- 販売戸数
- -
- 総戸数
- -
- 土地面積(㎡)
- 136.13㎡(41.17坪)
- 建物面積(㎡)
- 98.53㎡(29.8坪)
- 私道負担・道路
- 北4.0m 接面8.1m
- 完成時期(築年月)
- 2025年11月 新築
- 住所
- 長野市浅川1丁目GoogleMap
- 交通
- 最寄り駅:長野電鉄長野線 「桐原」 車で9分
バス停:アルピコ交通「浅川団地中央公園」徒歩2分 - 構造・工法
- 木造
- 駐車場
- 3台分
- 現況
- 完成済
- 引き渡しについて
- 2026年7月予定
※2026年6月まで展示場として使用するため、7月以降~お引渡しとなります。 - 小学校区
- 浅川小学校
- 中学校区
- 北部中学校
- 用途地域
- 1種低層
- 土地権利
- 所有権
- 建ぺい率
- 50%
- 容積率
- 80%
- 都市計画
- 市街化区域
- 建築確認番号
- 第25NJK-10-00090号
- 取引態様
- 売主
- 地目
- 宅地
- 地勢
- 平坦
- 備考
- ■建物+土地+外構セットの価格です。
- 電話問い合わせ(無料)
-
フリーダイヤル 0120-666-940
【受付時間】10時~18時
周辺環境

西友 長野北店(■車で約4分)(1100m)

デリシア 若槻店(■車で約4分)(1600m)

セブンイレブン 長野浅川店(■車で約3分)(1000m)

アメリカンドラッグ まゆみ田店(■車で約4分)(1400m)

綿半ホームエイド檀田店(■車で約5分)(1400m)

小口内科小児科医院(■車で約3分)内科・小児科・循環器科の診療を行っています。(1100m)

長野市立北部中学校(600m)

長野市立浅川小学校(550)

すずらん保育園(■車で約4分)(750m)

浅川団地中央公園(210m)
設備・仕様

バス1坪以上

追焚機能

浴室暖房

浴室乾燥機

トイレ2ヶ所

タンクレストイレ

温水洗浄便座

シャワー付洗面化粧台

室内物干し

省エネ給湯器

サンルーム

IHクッキングヒーター

システムキッチン

グリル

食器洗浄乾燥機

パントリー

ウォークインクローゼット

床下収納

照明器具

人感センサー付照明

ダウンライト

都市ガス

電気

上水道

下水道

エアコン2台以上

ダブルロックドア

モニタ付インターホン

ポケットキー

火災警報器(報知機)

耐震等級3
物件見学・お問い合わせフォーム
押し売り営業は一切いたしません。
安心してご入力ください。






