- 建売住宅
4450万円(税込)
【最寄り駅】JR高崎線 桶川 徒歩19分
【バス停】 朝日バス「大久保」 徒歩4分
- 電話問い合わせ(無料)
-
フリーダイヤル 0120-666-940
【受付時間】10時~18時
物件の特徴
UA値0.46W/㎡Kの高性能なモダン住宅。
桶川駅徒歩19分、スーパー・ドラッグストアも徒歩圏内の安心・便利な生活環境!
物件のおすすめポイント
◆物件のPoint ━━*.
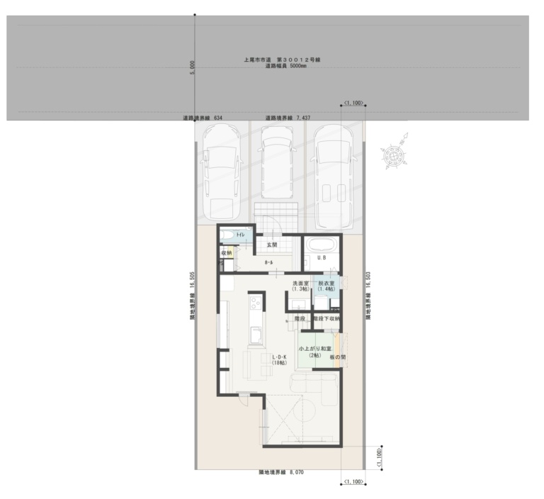
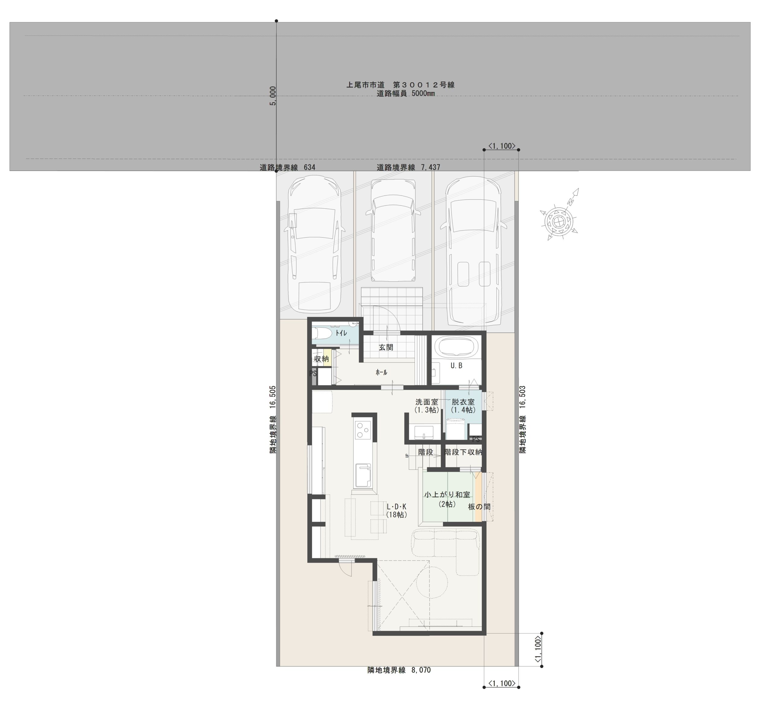
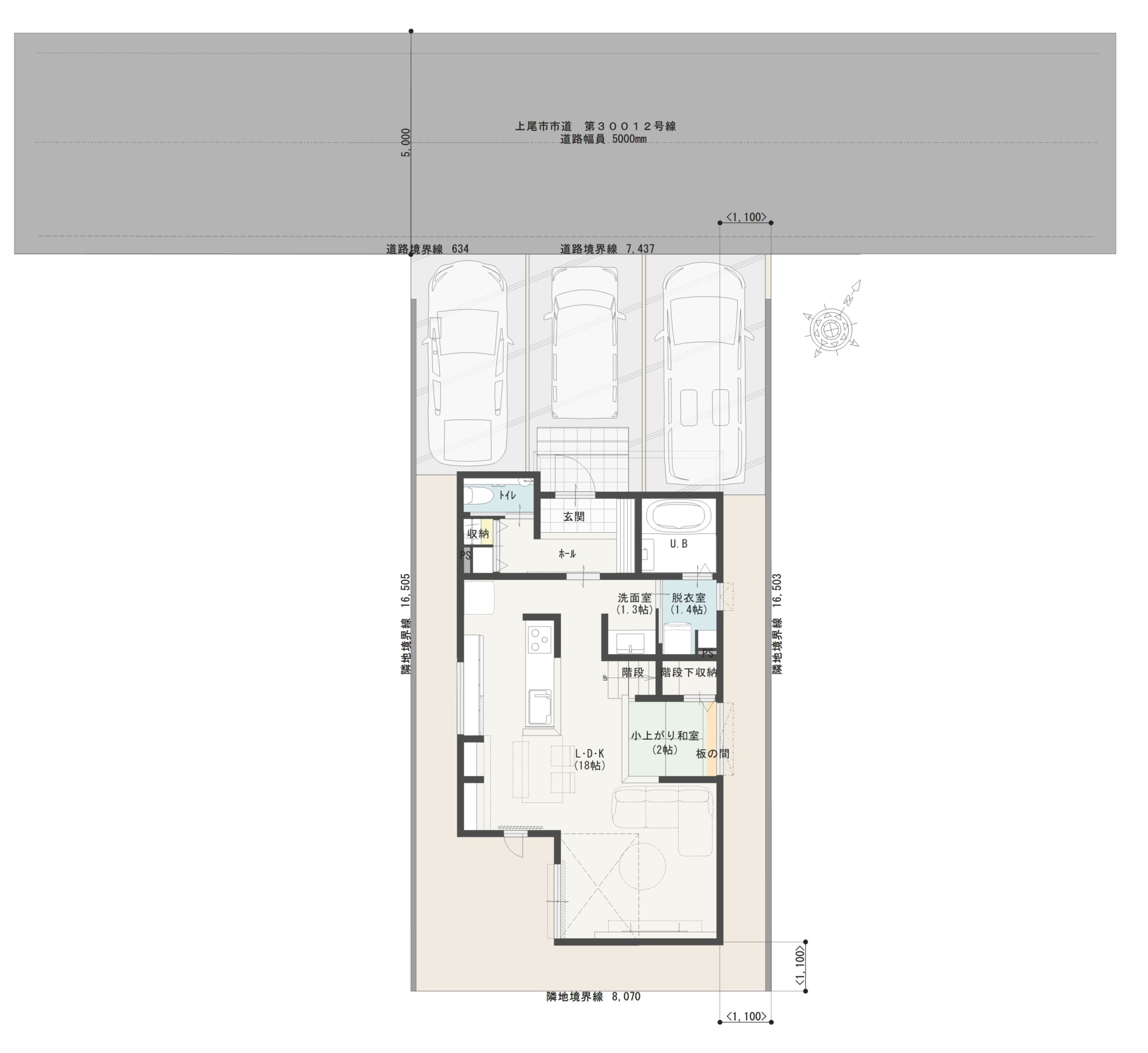
・キッチンからリビング、小上がりまで全体を見渡せる子育て世代にピッタリのプラン!
・吹き抜けから光が差し込む明るく開放的なリビングスペースは、小上がりも合わせて約20帖のゆったりとした空間!
・回遊できるキッチンは水廻りへのアクセスもよく使い勝手のよいプランニング。
・大容量のファミリークロークには家族の衣類から季節物まで何でも収納でき家中スッキリ!
・1階の窓は電動シャッター付きや防犯ガラスで防犯面も安心!
・共働き世帯にうれしい大型インナーバルコニー。
・書斎にも室内干しにも使えるフレキシブルなスペースがあり、暮らしの幅が広がります。
◆STATESの魅力 ━━*.
◆ 最高ランク 「耐震等級3」 地震に強い家
◆ ウレタン吹付断熱+樹脂サッシの高気密高断熱住宅。
◆ ZEHを超える高断熱性能「HEAT20 G1グレード」以上の高性能
◆◆「20年目までの無償定期点検」・「構造・雨漏り 最長60年・設備10年 長期保証」など、建てた後も安心の住まい
《 月々の返済例 》
【上尾市上B】建売住宅 ご購入の場合
(2026年5月現在)
———————————————
[月々の返済額]105,425円
※ボーナス払いなしの場合
———————————————
■諸条件
[価 格] 4,450万円
[頭 金] 100万円
[借入金] 4,350万円
[金利タイプ]変動金利
[金 利] 0.775%
[借入年数] 40年
※ローン諸費用別途
- 電話問い合わせ(無料)
-
フリーダイヤル 0120-666-940
【受付時間】10時~18時
物件情報
- 物件名
- 上尾市上B 建売住宅 4,450万円
- 価格
- 4450万円
- 間取り
- 3LDK
- 販売戸数
- -
- 総戸数
- -
- 土地面積(㎡)
- 133.19㎡(40.28坪)
- 建物面積(㎡)
- 102.77㎡(31.08坪)
- 私道負担・道路
- 【北側】5.0m 公道 接面8.07m
- 完成時期(築年月)
- 2026年3月 新築
- 住所
- 上尾市大字上GoogleMap
- 交通
- 【最寄り駅】JR高崎線 桶川 徒歩19分
【バス停】 朝日バス「大久保」 徒歩4分 - 構造・工法
- 木造
- 駐車場
- 3台分
- 現況
- 完成済み
- 引き渡しについて
- 即引渡し可
- 小学校区
- 上平北小学校
- 中学校区
- 上平中学校
- 用途地域
- 1種中高
- 土地権利
- 所有権
- 建ぺい率
- 50%
- 容積率
- 80%
- 都市計画
- 市街化区域
- 建築確認番号
- 第ERI-25031539号
- 取引態様
- 売主
- 地目
- 宅地
- 地勢
- 平坦
- 備考
- ■建物+土地+外構セットの価格です。
- 電話問い合わせ(無料)
-
フリーダイヤル 0120-666-940
【受付時間】10時~18時
周辺環境
フレスポ桶川(950m)
ヨークマート桶川店(800m)
ドラッグセイムス桶川末広店(700m)
セリア 桶川坂田店(850m)
上尾ことぶき幼稚園(800m)
ひがし幼稚園ひがし保育園(1,200m(車で約6分))

桶川市役所(1,800m(車で約9分))
設備・仕様

バス 1坪サイズ

追焚機能

浴室暖房

浴室乾燥機

トイレ2ヶ所(1階:タンクレス 2階:温水洗浄便座)

室内物干し

省エネ給湯器

IHクッキングヒーター

ペニンシュラ型キッチン

システムキッチン

グリル

食器洗浄乾燥機

パントリー

ウォークインクローゼット

床下収納

照明器具

人感センサー付照明

ダウンライト

都市ガス

電気

上水道

下水道

複層ガラス

Low-Eガラス

ダブルロックドア

モニタ付インターホン

火災警報器(報知機)

耐震等級3
物件見学・お問い合わせフォーム
押し売り営業は一切いたしません。
安心してご入力ください。





















