- 建売住宅
3478万円(税込)
【最寄り駅】福井鉄道福武線 「スポーツ公園」 徒歩9分
- 電話問い合わせ(無料)
-
フリーダイヤル 0120-666-940
【受付時間】10時~18時
物件の特徴
2026年5月完成予定!
【★完成前ご購入特典】・・・・・━━━━━━━━━━━・・・・・
4月末までのご契約で
\『ダイニング家具セット&子供室エアコン』/をまとめてプレゼント!!
・・・・・━━━━━━━━━━━━━━━━━━━━━━・・・・・
スーパー、コンビニ、ドラッグストア、公園もぜ~んぶ徒歩圏内・アクセス抜群!
子育てファミリーにおすすめ♪魅力いっぱいの生活環境です。
物件のおすすめポイント
◆物件のPoint ━━*.
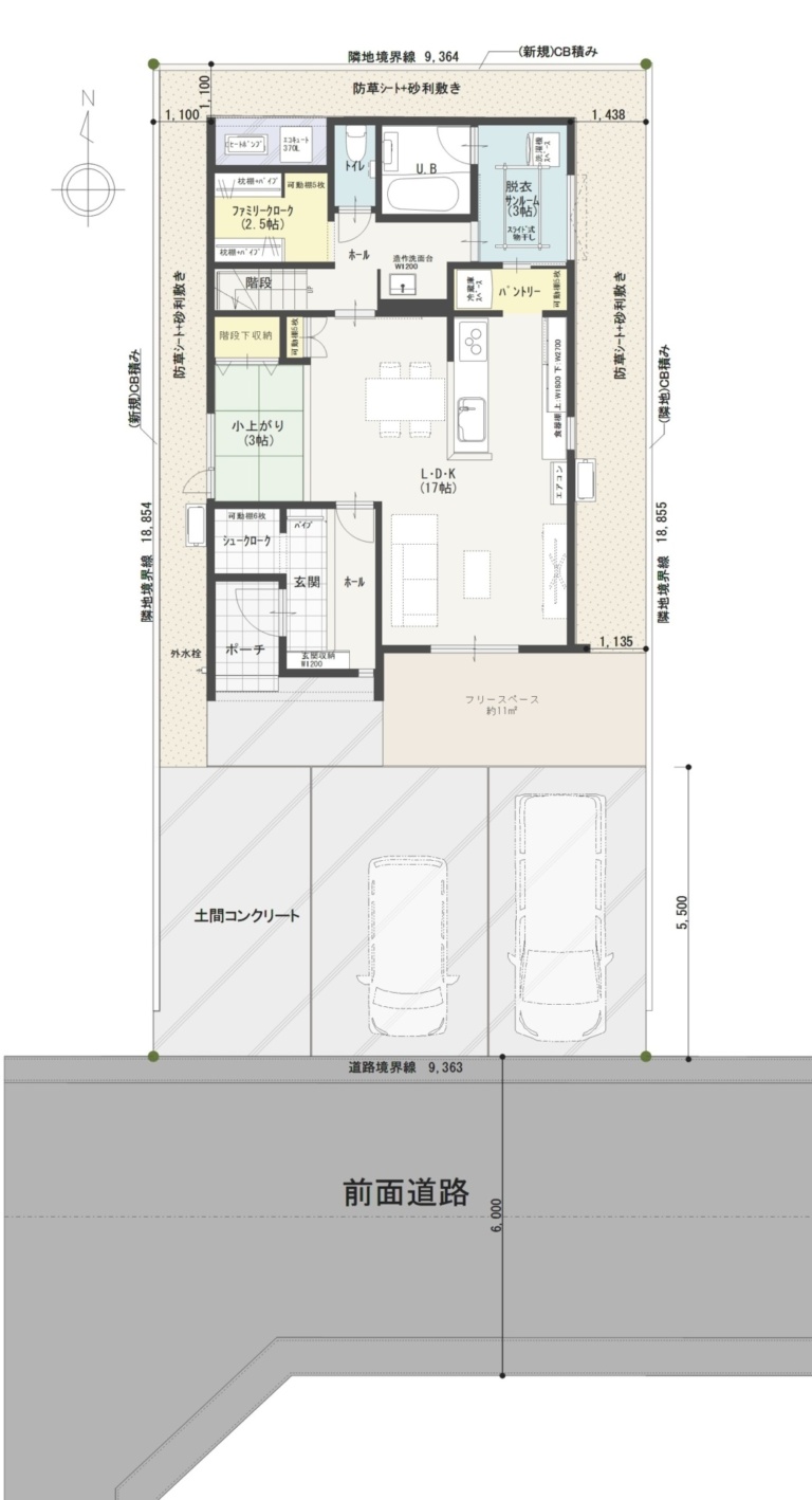
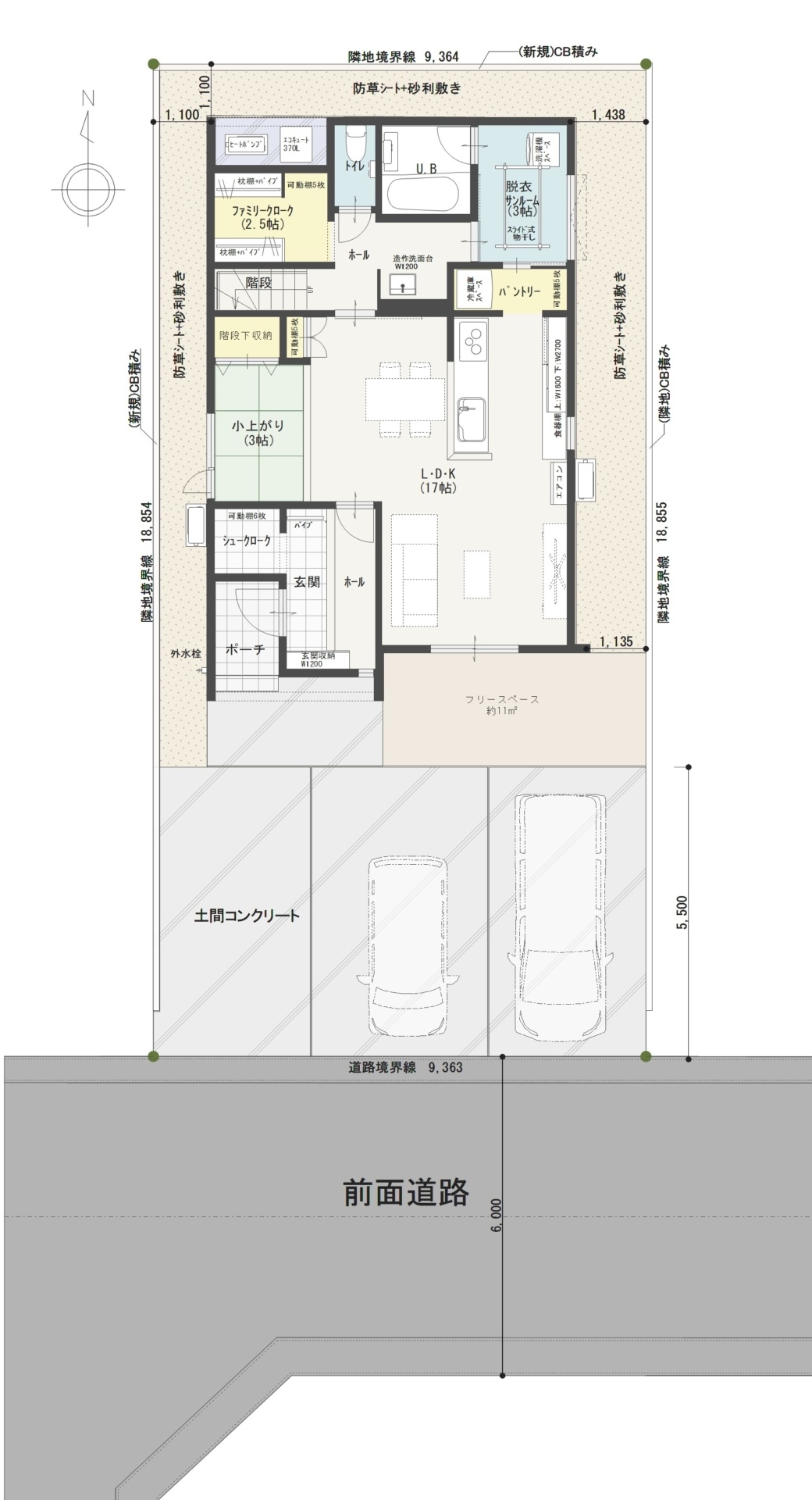
・ キッチンから見える小上がりは子供の遊び場、家事、来客の団らんスペースとして使えます。
・ パントリー、土間収納、1階・2階のファミリークロークなど適材適所に設けた豊富な収納。
・ サンルーム・脱衣室には室内を広く使えるようスライド式の物干しを設置。
東面には犬の足あとが入った、キュートなアクセントクロスを採用しました。
・ 造作洗面台や壁紙のアクセント・建具などのデザインにもご注目!
◆STATESの魅力 ━━*.
・ZEHを超える「HEAT20 G1グレード」以上の高い断熱性能
・最高ランク「耐震等級3」、火災に強い「省令準耐火構造」、「最長60年保証&無償点検」、
「設備10年」の長期保証など、建てた後も安心が続くステーツの家。
《 月々の返済例 》
◆【 越前市芝原B 】建売住宅 ご購入の場合
(2026年1月現在)
-----------------
[月々の返済額]79,267円
-----------------
※ボーナス払いなしの場合
■諸条件
[価 格] 3,650万円
[頭 金] 100万円
[借入金] 3 ,550万円
[金利タイプ]固定金利 2年
[金 利] 0.350%
[借入年数] 40年
[借入先] 福井銀行
※ローン諸経費込み
- 電話問い合わせ(無料)
-
フリーダイヤル 0120-666-940
【受付時間】10時~18時
物件情報
- 物件名
- 越前市芝原B 建売住宅 3,478万円
- 価格
- 3478万円
- 間取り
- 3LDK
- 販売戸数
- -
- 総戸数
- -
- 土地面積(㎡)
- 176.53㎡(53.4坪)
- 建物面積(㎡)
- 111.16㎡(33.62坪)
- 私道負担・道路
- 【南側】 6m 公道 接面9.3m
- 完成時期(築年月)
- 2026年5月 新築
- 住所
- 福井県越前市芝原2丁目GoogleMap
- 交通
- 【最寄り駅】福井鉄道福武線 「スポーツ公園」 徒歩9分
- 構造・工法
- 木造
- 駐車場
- 3台分
- 現況
- 建築中
- 引渡し可能時期
- 2026年6月 予定
- 小学校区
- 吉野小学校
- 中学校区
- 武生第一中学校
- 用途地域
- 1種中高
- 土地権利
- 所有権
- 建ぺい率
- 60%
- 容積率
- 200%
- 都市計画
- 非線引区域
- 建築確認番号
- 第ERI-25039186号
- 取引態様
- 売主
- 地目
- 宅地
- 地勢
- 平坦
- 備考
- ■建物+土地+外構セットの価格です。
- 電話問い合わせ(無料)
-
フリーダイヤル 0120-666-940
【受付時間】10時~18時
周辺環境

ハニービッグベリーマーケット芝原(650m)

業務スーパー武生店(700m)

ローソン越前芝原店(550m)

クスリのアオキ芝原店(550m)

DCM武生店
(■車で約7分)(2400m)

越前市武生第一中学校(2000m)

越前市吉野小学校(900m)

越前市立家久保育園(600m)

医療法人林病院
(■車の場合 約8分)(2800m)

福井銀行武生北支店(750m)

三庄木公園(400m)
設備・仕様

バス 1坪サイズ

追焚機能

浴室暖房

浴室乾燥機

トイレ2ヶ所(1階:タンクレス 2階:温水洗浄便座)

造作洗面台

室内物干し

省エネ給湯器

IHクッキングヒーター

システムキッチン

グリル

食器洗浄乾燥機

浄水器内蔵ハンドシャワー水栓

パントリー

ファミリークローゼット(1階・2階)

土間収納

床下収納

照明器具

人感センサー付照明

ダウンライト

電気

上水道

下水道

複層ガラス

Low-Eガラス

エアコン2台

ダブルロックドア

モニタ付インターホン

ポケットキー

火災警報器(報知機)

耐震等級3
物件見学・お問い合わせフォーム
押し売り営業は一切いたしません。
安心してご入力ください。



