- 建売住宅
3698万円(税込)
【最寄り駅】JR白新線「新発田」 徒歩11分
JR羽越本線「新発田」 徒歩11分
- 電話問い合わせ(無料)
-
フリーダイヤル 0120-666-940
【受付時間】10時~18時
物件の特徴
2026年4月完成予定。
新生活にうれしい《 家具セット付 》の建売住宅!
心地よい距離感 と 確かな性能。
~ すべてがフラットにつながる。31坪で叶える平屋の住まい ~
新発田高校すぐ近く!
クスリのアオキ・セブンイレブンまで徒歩5分以内でアクセス便利♪
物件のおすすめポイント
◆物件のPoint ━━*.
■インテリアコーディネーター厳選!オシャレな 《 家具セット付 》
■駐車スペース 3台OK
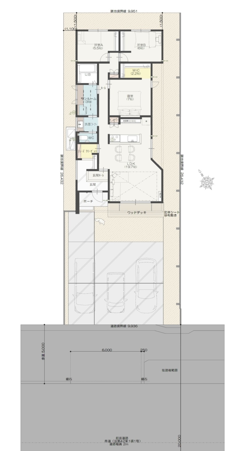
■『折上天井』で程よいオシャレ感と開放感を生み出すリビング。
■キッチンは左右どちらからでも出入りできるペニンシュラ型キッチンを採用。行き止まりのない回遊動線。
家事動線がぶつからない、ストレスフリーな設計。
■内と外がゆるやかに繋がるウッドデッキ
リビングとウッドデッキの高さをフラットにすることで、視覚的な広さは2倍に。
子ども達の遊び場やガーデニング、BBQ、DIYなど、使い方は自由自在。
◆STATESの魅力 ━━*.
◆住宅性能評価付!ZEHを超える高断熱性能
◆「耐震等級3」最高ランクの頑強構造・地震に強い家
◆ 大切な住まいを熱から守る「省令準耐火構造」で火災保険料もお得に!
◆ 徹底した品質管理・安心のアフターサポート・充実の長期保証
「構造・雨漏り 最長60年保証&無償定期点検」をはじめ、設備保証も10年と建てた後もずっと安心が続きます。
《 月々の返済例 》
◆【 新発田市豊町A 】建売住宅 ご購入の場合
(2026年1月現在)
———————————————
[月々の返済額]87,614円
※ボーナス払いなしの場合
———————————————
■諸条件
[価 格] 3,698万円
[頭 金] 100万円
[借入金] 3,598万円
[金利タイプ]変動金利
[金 利] 0.80%
[借入年数] 40年
※ローン諸費用別途
- 電話問い合わせ(無料)
-
フリーダイヤル 0120-666-940
【受付時間】10時~18時
物件情報
- 物件名
- 新発田市豊町A 建売住宅 3,698万円
- 価格
- 3698万円
- 間取り
- 3LDK
- 販売戸数
- -
- 総戸数
- -
- 土地面積(㎡)
- 262.83㎡(79.5坪)
- 建物面積(㎡)
- 103.51㎡(31.31坪)
- 私道負担・道路
- 【南側】20.0m 公道 接面9.9m
- 完成時期(築年月)
- 2026年4月 新築
- 住所
- 新発田市豊町2丁目GoogleMap
- 交通
- 【最寄り駅】JR白新線「新発田」 徒歩11分
JR羽越本線「新発田」 徒歩11分 - 構造・工法
- 木造
- 駐車場
- 3台分
- 現況
- 建築中
- 引渡し可能時期
- 2026年5月 予定
- 小学校区
- 東豊小学校
- 中学校区
- 第一中学校
- 用途地域
- 2種住居
- 土地権利
- 所有権
- 建ぺい率
- 60%
- 容積率
- 200%
- 都市計画
- 市街化区域
- 建築確認番号
- 第 R07-1417 号
- 取引態様
- 売主
- 地目
- 宅地
- 地勢
- 平坦
- 備考
- ■建物+土地+外構セットの価格です。
- 電話問い合わせ(無料)
-
フリーダイヤル 0120-666-940
【受付時間】10時~18時
周辺環境

ウオロク東新町店
(■車で3分)(1,000m)

セブンイレブン新発田豊町4丁目店(190m)

クスリのアオキ南豊町店(400m)

ひらせいホームセンター豊町店(900m)

新潟県立新発田高校(180m)

新発田市立第一中学校(2,300m)

新発田市立東豊小学校(1,200m)

認定こども園わかば幼稚園(450m)

新潟県立新発田病院
(■車で4分)(1,100m)

新発田市役所
(■車で5分)(1,600m)

大光銀行新発田支店
(■車で4分)(1,300m)

すぎわら公園(600m)
設備・仕様

バス 1坪サイズ

追焚機能

浴室暖房

浴室乾燥機

トイレ(タンクレスタイプ)

シャワー付洗面化粧台

サンルーム

室内物干し

省エネ給湯器

IHクッキングヒーター

システムキッチン(ペニンシュラ型)

グリル

食器洗浄乾燥機

タッチレスハンドシャワー水栓

パントリー

ウォークインクローゼット

シューズクローク

床下収納

照明器具

人感センサー付照明

ダウンライト

電気

上水道

下水道

複層ガラス

Low-Eガラス

エアコン

ダブルロックドア

モニタ付インターホン

ポケットキー

ウッドデッキ

火災警報器(報知機)

耐震等級3
物件見学・お問い合わせフォーム
押し売り営業は一切いたしません。
安心してご入力ください。


