- 建売住宅
4397万円(税込)
【最寄り駅】ハピラインふくい「越前花堂」 徒歩14分
- 電話問い合わせ(無料)
-
フリーダイヤル 0120-666-940
【受付時間】10時~18時
物件の特徴
【★完成前ご購入特典】・・・・・━━━━━━━━━━━━━━・・・・・
6月末までの特典✨
\ダイニング家具🪑&子供室エアコンをまるっとプレゼント!/
・・・・・━━━━━━━━━━━━━━━━━━━━━━━━・・・・・
2026年7月完成予定!
― 未来基準で暮らす、家族にやさしいエコハウス。
【GX志向型住宅】対応の次世代省エネ住宅 -
便利さと、これからの安心を、ひとつの形に。
~フラットにつながる暮らし~
—– ● —–《 ◆完成見学会について 》—– ● —–
建物完成時にオープンハウス開催予定!
※ご契約・完成後1ヵ月間の見学会にご協力いただける方への特別なお住まいです。
物件のおすすめポイント
◆物件のPoint ━━*.
■見守れる安心
ダイニング横の小上がりは、遊びとくつろぎの多目的スペース。
お子様を遊ばせていても目が届くから安心。
お昼寝や来客時に、家族の成長に合わせて自由に使えます。
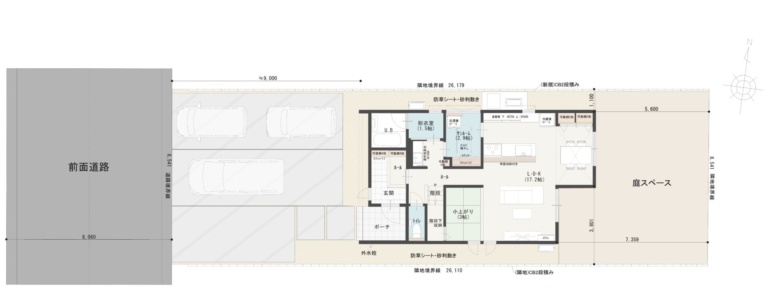
■LDK+小上がりで20帖超!
開放感たっぷり。家族がゆったりくつろげる空間です。
キッチン前やダイニング後ろなど充実した収納を完備。
■広々とした玄関&ポーチ
出入りしやすく、ベビーカーもラクラク置ける玄関。来客時もゆとりを感じられます。
■2Fファミリークローゼット
家族みんなで使えて、すっきり一まとめに。乾いた洗濯物も仕分けしやすい収納計画
■駐車スペース3台分
縦列なら最大5台まで対応可能!
■サンルーム
室内を広く使えるようスライド式の物干しを設置。
■こだわりのデザイン
造作洗面台やアクセントクロス、建具などにもご注目!毎日の気分を高めてくれます。
うれしい『エアコン2台付』!
◆STATESの魅力 ━━*.
◆ 災害時の安全性に配慮した、最上位等級 「耐震等級3」 地震に強い家
◆ 「ウレタン吹付断熱」+「樹脂サッシ」の高気密高断熱住宅
◆ 火に強く、火災保険料も抑えられる安心の住まい「省令準耐火構造」
※省令準耐火構造=火の広がりを抑える国の基準に準じた構造のこと
◆ 全棟「住宅性能評価」付。
ワンランク上の断熱性能を示す ― HEAT20・G2グレード対応 ―
冬あたたかく、夏も快適。
高断熱で、家族が心地よく過ごせる住まい。
◆ 【充実保証・アフターサービス】
住んでからも、ずっと続く安心。永く寄り添うサポートと、充実の保証。
《 月々の返済例 》
◆【 福井市大町A】建売住宅
借入金額 4,500万円 の場合
———————————————————————————
[月々の返済額] 100,479円 ※ボーナス払いなしの場合
———————————————————————————
■お支払い条件
[総予算] 4,595万円
[頭 金] 100万円
[借入額] 4,500万円
[金 利] 0.350%( 固定金利 2年 / 2026年3月現在 )
[借入年数] 40年( 福井銀行 )
※[総予算]45,953,930円( ローン諸費用・諸経費を含む )
※表示の返済額は一例であり、条件により異なります。
- 電話問い合わせ(無料)
-
フリーダイヤル 0120-666-940
【受付時間】10時~18時
物件情報
- 物件名
- 福井市大町B 建売住宅 4,397万円
- 価格
- 4397万円
- 間取り
- 3LDK
- 販売戸数
- -
- 総戸数
- -
- 土地面積(㎡)
- 223.30㎡(67.54坪)
- 建物面積(㎡)
- 105.98㎡(32.05坪)
- 私道負担・道路
- 【西側】8.0m 公道 接面8.5m
- 完成時期(築年月)
- 2026年7月 新築
- 住所
- 福井市大町2丁目GoogleMap
- 交通
- 【最寄り駅】ハピラインふくい「越前花堂」 徒歩14分
- 構造・工法
- 木造
- 駐車場
- 3台分
(※縦列なら最大5台まで対応可能) - 現況
- 建築中
- 引渡し可能時期
- 2026年8月 予定
- 小学校区
- 木田小学校
- 中学校区
- 明倫中学校
- 用途地域
- 準工業
- 土地権利
- 所有権
- 建ぺい率
- 60%
- 容積率
- 200%
- 都市計画
- 市街化区域
- 建築確認番号
- 第ERI-26005387号
- 取引態様
- 売主
- 地目
- 宅地
- 地勢
- 平坦
- 備考
- ■建物+土地+外構セットの価格です。
- 電話問い合わせ(無料)
-
フリーダイヤル 0120-666-940
【受付時間】10時~18時
周辺環境

ショッピングシティ ベル(1,100m)

バロー福井南店(1,200m)

セブンイレブン福井花堂南店(1,000m)

クスリのアオキ花堂店(1,000m)

福井市明倫中学校(1,900m)

福井市木田小学校(1,700m)

めいりんこども園(1,100m)

福井厚生病院(1,400m)

福井花堂郵便局(1,600m)

福邦銀行春日中央支店(1,100m)

大町2号公園(150m)
設備・仕様

バス 1坪サイズ

追焚機能

浴室暖房

浴室乾燥機

トイレ2ヶ所(1階:タンクレス 2階:温水洗浄便座)

サンルーム

シャワー付洗面化粧台

室内スライド式物干し

省エネ給湯器

IHクッキングヒーター

システムキッチン

グリル

食器洗浄乾燥機

タッチレスハンドシャワー水栓

パントリー

ファミリークローゼット

床下収納

照明器具

人感センサー付照明

ダウンライト

電気

上水道

下水道

複層ガラス

Low-Eガラス

エアコン2台

ダブルロックドア

モニタ付インターホン

ポケットキー

火災警報器(報知機)

耐震等級3
物件見学・お問い合わせフォーム
押し売り営業は一切いたしません。
安心してご入力ください。



