イベント情報
ほっこり落ち着く♪ ヌックのある快適空間(坂井市春江町江留中)
  • イベント

ほっこり落ち着く♪ ヌックのある快適空間(坂井市春江町江留中)

場所
日程
2025/07/27(日) ~ 2025/09/21(日)
時間
10:00~17:00【予約制】
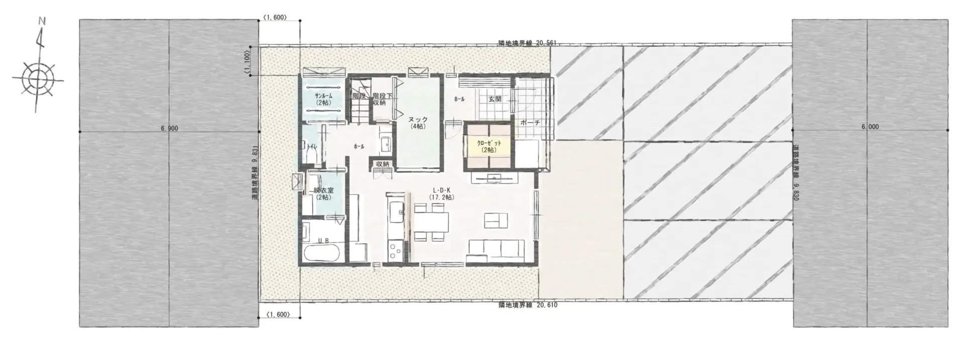
間取り
3LDK 延床面積:108.47㎡(32.81坪)

実際の空間で「暮らしのリアル」を体感しませんか?・・・

 

リビングの入口付近には、家族それぞれのスペースが区切られたファミリーロッカー風の収納スペースを設置!

 

一人ひとりの荷物も整理しやすく、すっきりとした空間を保つことができます。

 

また、ヌックを設けることで、子どもの遊び場とリビングを分けることができ、リビングを常にキレイな状態にキープ◎

 

家族がくつろぐスペースと遊び場を明確に分けることで、快適なリビング空間を実現しました🌟

 

2階にはファミリークローゼットを設置し、季節ものや使用頻度の少ないアイテムの収納に大活躍

 

家族全員の荷物を一箇所にまとめることで、各部屋の収納スペースにゆとりが生まれ、すっきりとした住まいを実現できます!🏠

参加方法

予約制のため、事前にご予約頂いた上でご参加ください。

※1.サイトからのご予約はご来場前日の17時にて締切とさせて頂きます。
※2.締切以降の来場のご希望は、お電話にてスタッフまで直接ご相談下さい。
※3.先着順のため、止むを得ずお時間のご変更やお断りをさせていただく場合がございます。