- 見学会・オープンハウス
イオン・アピタ 2つの大型商業施設をはじめ、公園やドラッグストア等、生活環境が整った「小針球場」跡地の大型分譲地
カーテンレスでつながる、開放感あふれる住まい(西区小針)
- 場所
- 新潟市西区小針Google MAP
- 日程
- 2026/05/01(金) ~ 2026/05/31(日)
- 時間
- 10:00~17:00【予約制】
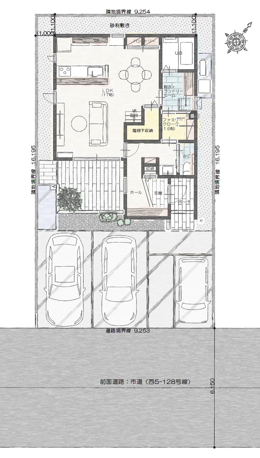
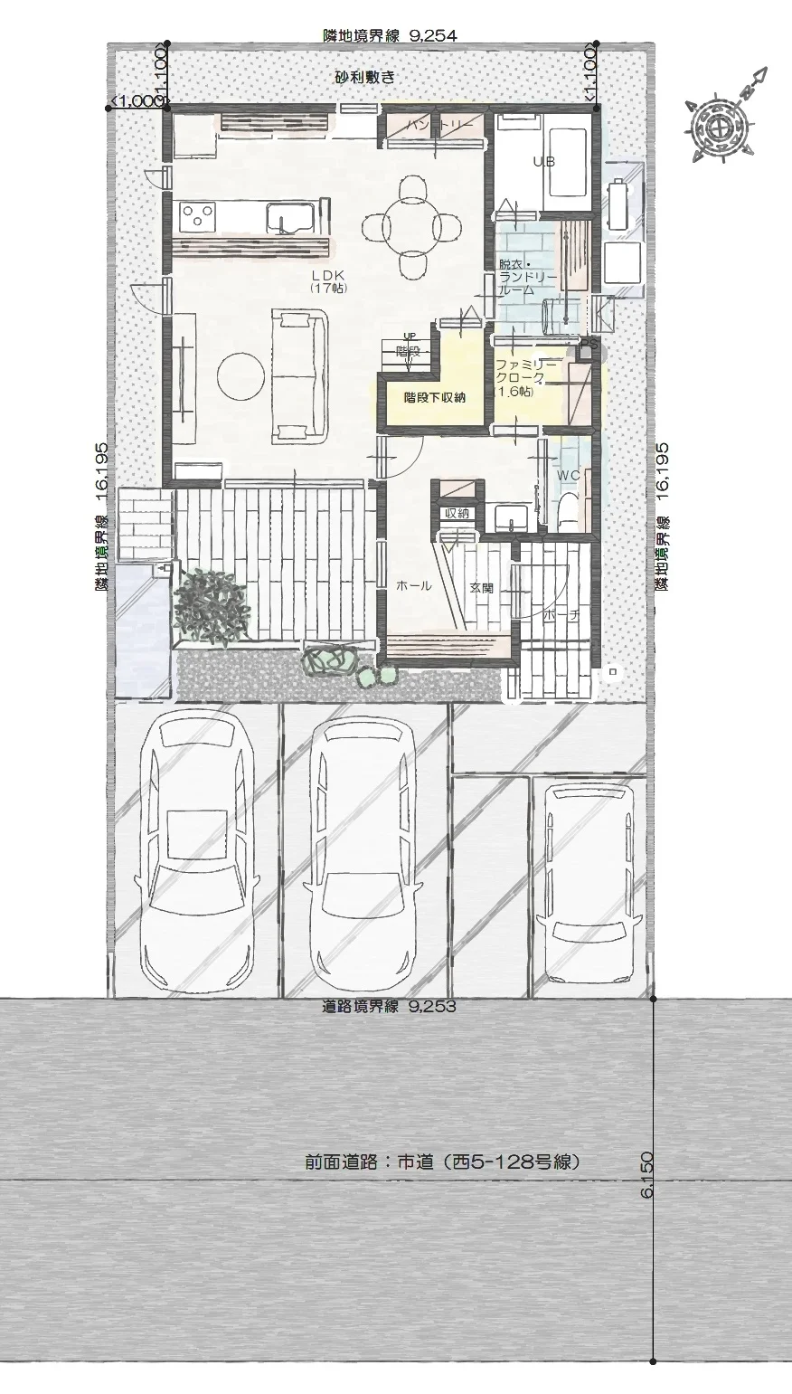
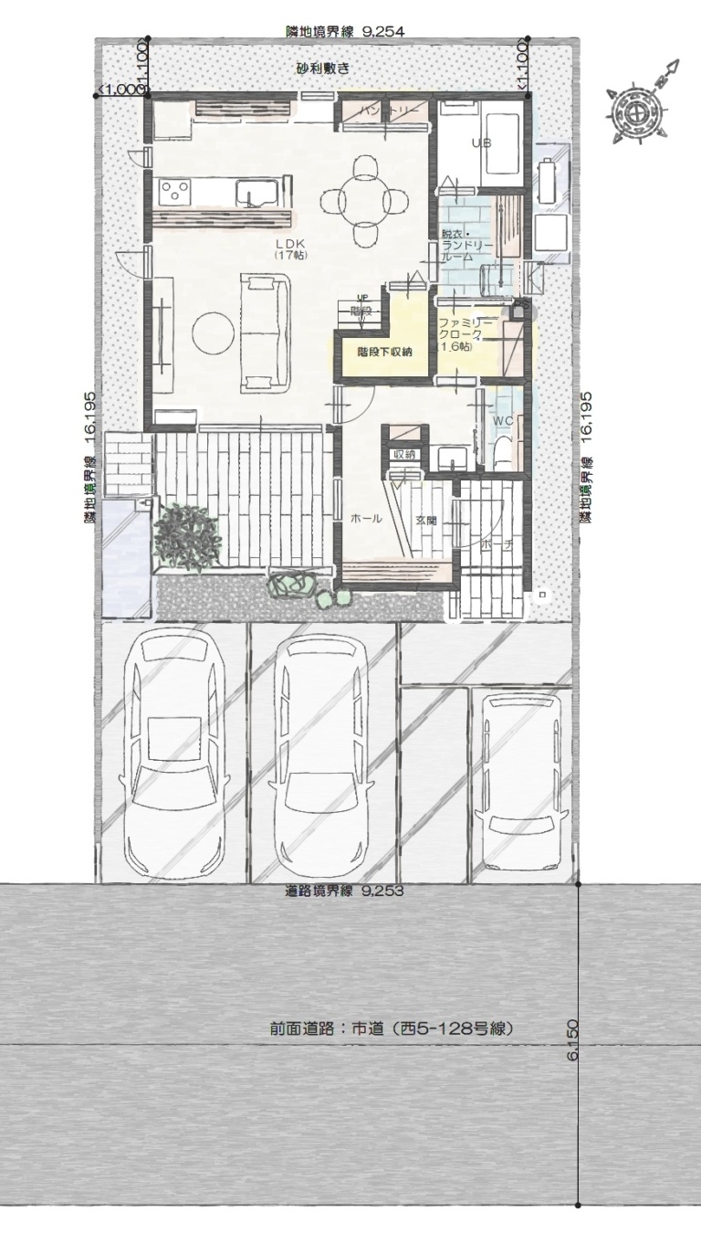
- 間取り
- 3LDK 延床面積:101.57㎡(30.72坪)
ギャラリー
日当たり良好!【プライベートテラス】 のあるお住まい
リビングとつながる陽当たり抜群のプライベートテラスでBBQや外遊びを満喫!
目隠し壁で安心のくつろぎ空間。
家族で使えるファミリークロークや夫婦で分けられる寝室収納など、収納計画もばっちり♩
\ \ チェックポイント //
✅欲しい場所に最適な収納スペースを確保
✅家族でシェアできる、1階ファミリークローク
✅リビングとフラットに繋がるプライベートテラス
参加方法
予約制のため、事前にご予約頂いた上でご参加ください。
※1.サイトからのご予約はご来場前日の15時にて締切とさせて頂きます。
※2.締切以降の来場のご希望は、お電話にてスタッフまで直接ご相談下さい。
※3.先着順のため、止むを得ずお時間のご変更やお断りをさせていただく場合がございます。


