- 見学会・オープンハウス
- イベント
子育ても家事もスマートに。家族時間がもっと好きになる住まい
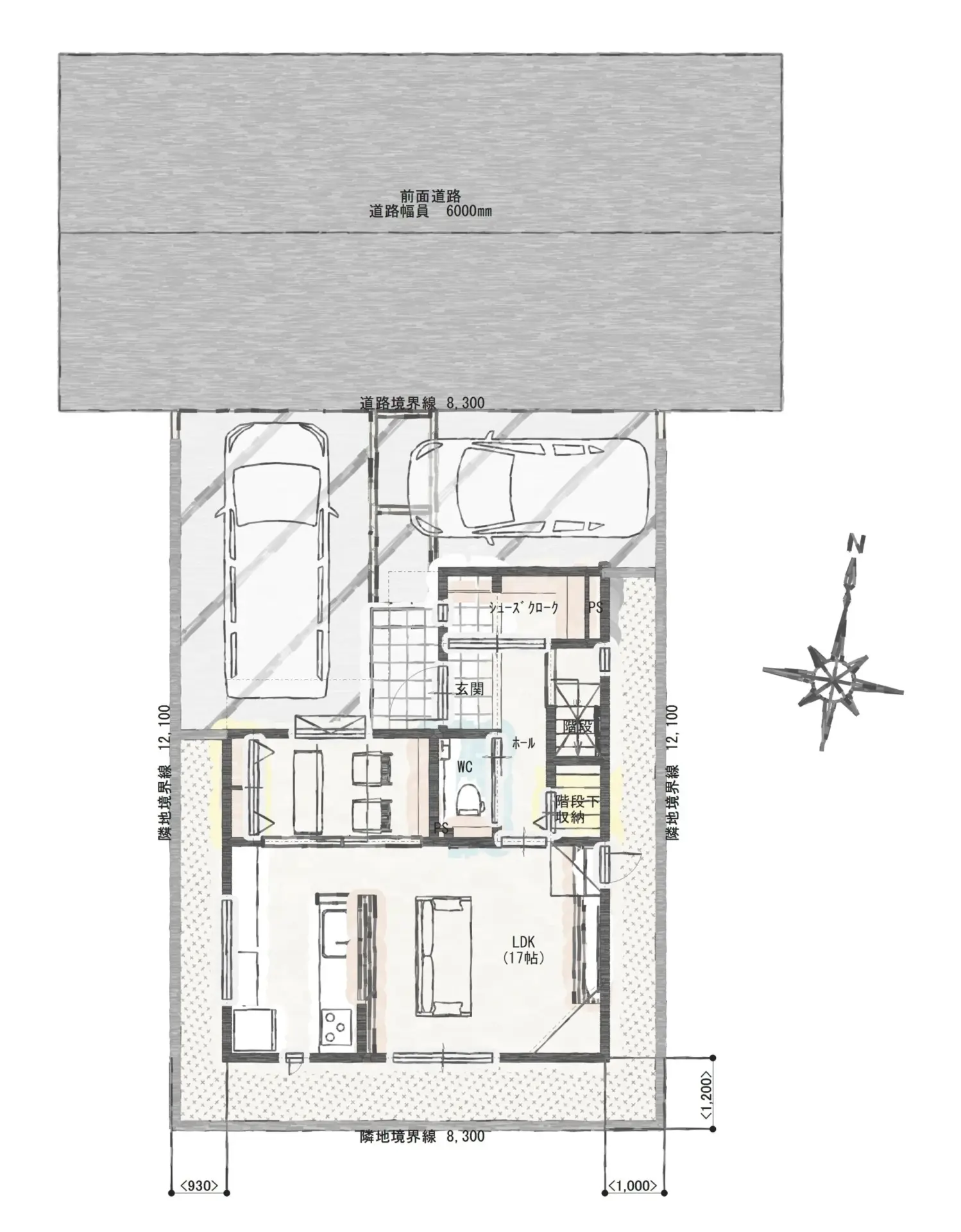
建物形状や外壁の美しさを際立たせたシンプルデザインハウス(中央区網川原)
- 場所
- 新潟市中央区網川原Google MAP
- 日程
- 2025/10/01(水) ~ 2025/10/31(金)
- 時間
- 10:00~17:00【予約制】
- 間取り
- 3LDK 延床面積:88.50㎡(26.77坪)
建物形状や外壁の美しさを際立たせたシンプルデザインハウス
吹き抜けから光が差し込む明るいリビング♩
ダイニングには東西側にに収納&パントリーを配置
2階に設けた洗面室・お風呂と、隣接するファミリークローゼットで洗濯動線もスムーズで快適に!
― みどころポイント ―
✅リビングの一部は吹き抜け仕様に
✅ダイニング空間をゆるやかに仕切る三角垂れ壁
✅窓をあえてなくしたシンプルモダンな外観
見どころたっぷりの見学会、ぜひお気軽にご来場ください🏠
ギャラリー
参加方法
予約制のため、事前にご予約頂いた上でご参加ください。
※1.サイトからのご予約はご来場前日の15時にて締切とさせて頂きます。
※2.締切以降の来場のご希望は、お電話にてスタッフまで直接ご相談下さい。
※3.先着順のため、止むを得ずお時間のご変更やお断りをさせていただく場合がございます。