- 見学会・オープンハウス
家族が自然と集まる、心地よさをデザインしたお住まいを体感!
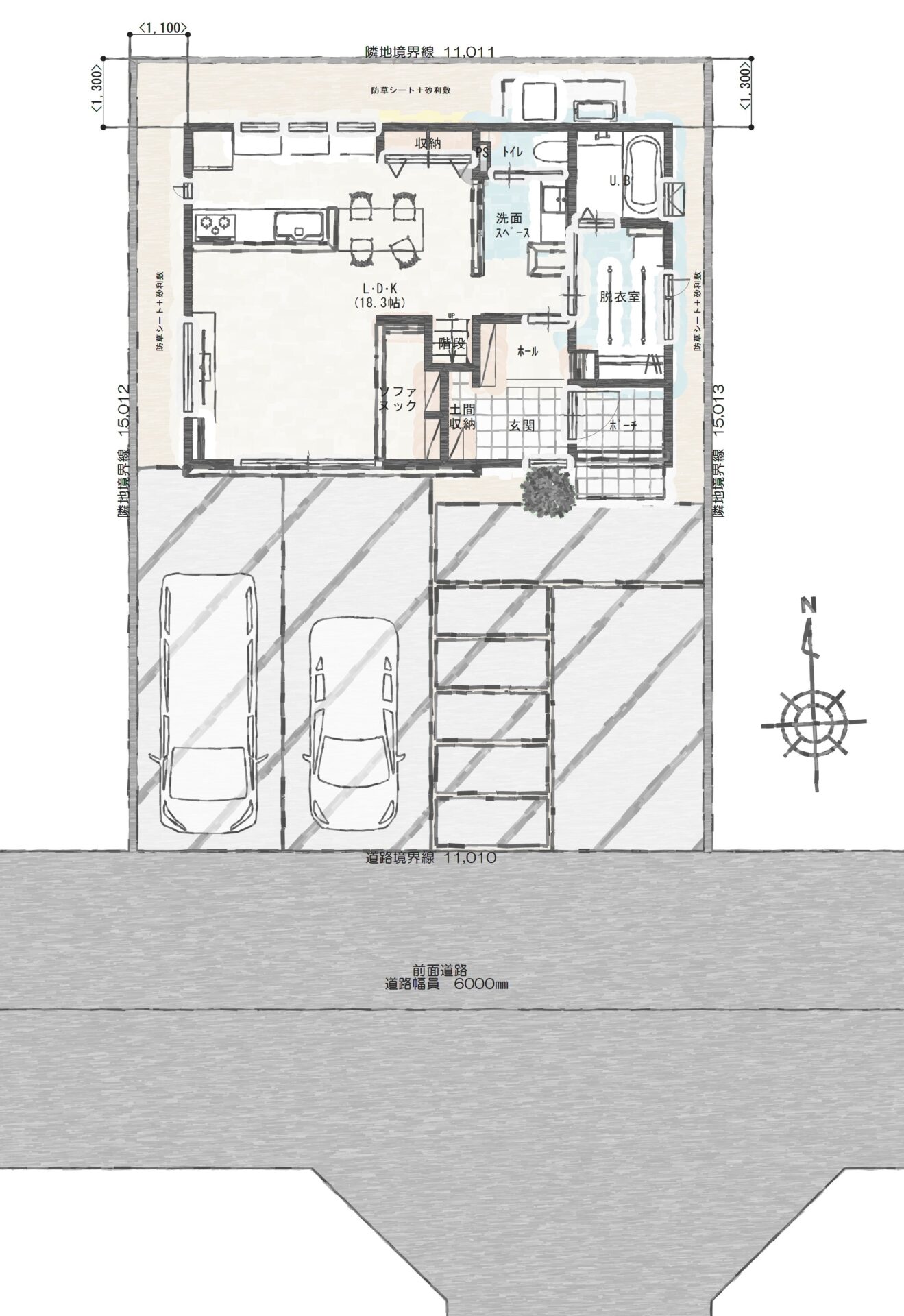
遊び心あるヌックソファと開放的なLDK、快適な動線が魅力のまちなかモデルハウス(南区戸頭)
- 場所
- 新潟市南区戸頭Google MAP
- 日程
- 2026/04/01(水) ~ 2026/04/30(木)
- 時間
- 10:00~17:00【予約制】
- 間取り
- 3LDK 延床面積:97.43㎡(29.47坪)
ギャラリー
遊び心あるヌックソファと開放的なLDK、快適な動線が魅力のまちなかモデルハウス
18帖以上の広々LDKは、大きな窓から光と風を取り込み、家族が自然と集まる開放的な空間に。
階段下を利用した「ヌックソファ」は、お子さまの遊び場や絵本の読み聞かせの場所として大活躍🌟
三角の垂れ壁に囲まれた小さな空間は、ほっこり落ち着ける家族だけの特別な居場所になります。
「開放感」「遊び心」「家事ラク」を兼ね備えた住まいを、この見学会でぜひご体感ください🏠
参加方法
予約制のため、事前にご予約頂いた上でご参加ください。
※1.サイトからのご予約はご来場前日の15時にて締切とさせて頂きます。
※2.締切以降の来場のご希望は、お電話にてスタッフまで直接ご相談下さい。
※3.先着順のため、止むを得ずお時間のご変更やお断りをさせていただく場合がございます。


