- 見学会・オープンハウス
暮らしやすさと心地よさを両立した、こだわりの間取りを体感!
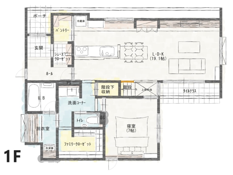
家事ラク動線×将来安心の1階寝室、家族がつながる!まちなかモデルハウス(南区田中)
- 場所
- 新潟市南区田中Google MAP
- 日程
- 2026/05/01(金) ~ 2026/05/31(日)
- 時間
- 10:00~17:00【予約制】
- 間取り
- 3LDK 延床面積:104.84㎡(31.71坪)
ギャラリー
家事ラク動線×将来安心の1階寝室、家族がつながる!まちなかモデルハウス
忙しい毎日を少しでも快適に!
シューズクロークからそのままパントリーへつながる「奥様目線の家事ラク動線」で、買い物帰りの荷物もラクラク収納◎
1階に寝室を設けた間取りは、将来を見据えた安心の設計!生活が1階で完結するので、長く快適にお住まいいただけます。
さらに、リビングからタイルテラス、そして庭へとつながる開放的な空間設計が魅力🌟
お子様の外遊びや家庭菜園、休日のティータイムなど、屋内外のつながりを楽しむ暮らしが広がります。
「家事のしやすさ」「将来の安心」「家族が自然と集まる空間」
この3つを叶える住まいを、ぜひ見学会でご体感ください🏠
参加方法
予約制のため、事前にご予約頂いた上でご参加ください。
※1.サイトからのご予約はご来場前日の15時にて締切とさせて頂きます。
※2.締切以降の来場のご希望は、お電話にてスタッフまで直接ご相談下さい。
※3.先着順のため、止むを得ずお時間のご変更やお断りをさせていただく場合がございます。


