- 見学会・オープンハウス
トレンド×デザイン×快適動線が叶える、心地よい毎日
トレンドカラーで仕上げた、開放感あふれる吹抜けリビングの家(新潟市西区ときめき西)
- 場所
- 新潟市西区ときめき西Google MAP
- 日程
- 2026/05/01(金) ~ 2026/05/31(日)
- 時間
- 10:00~17:00【予約制】
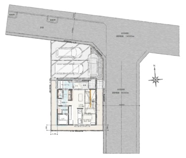
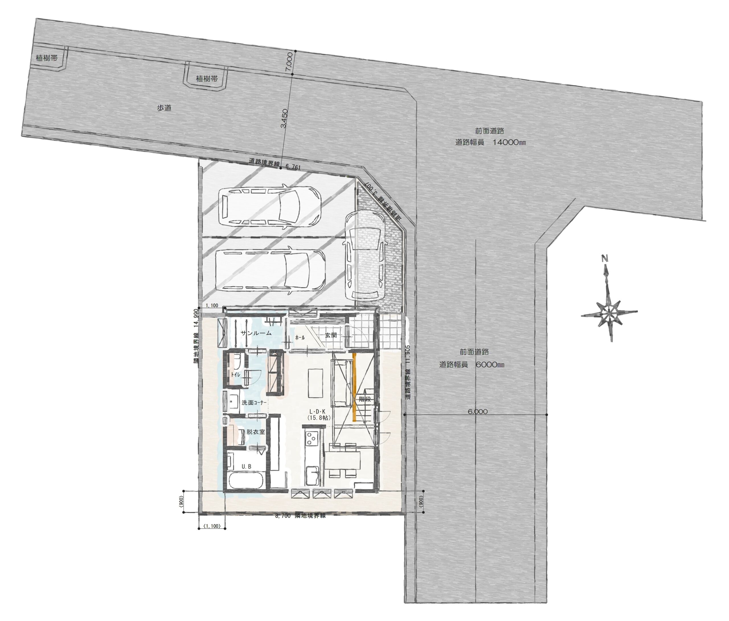
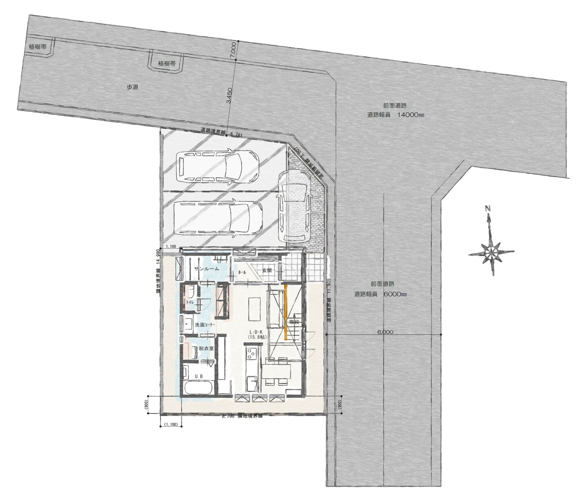
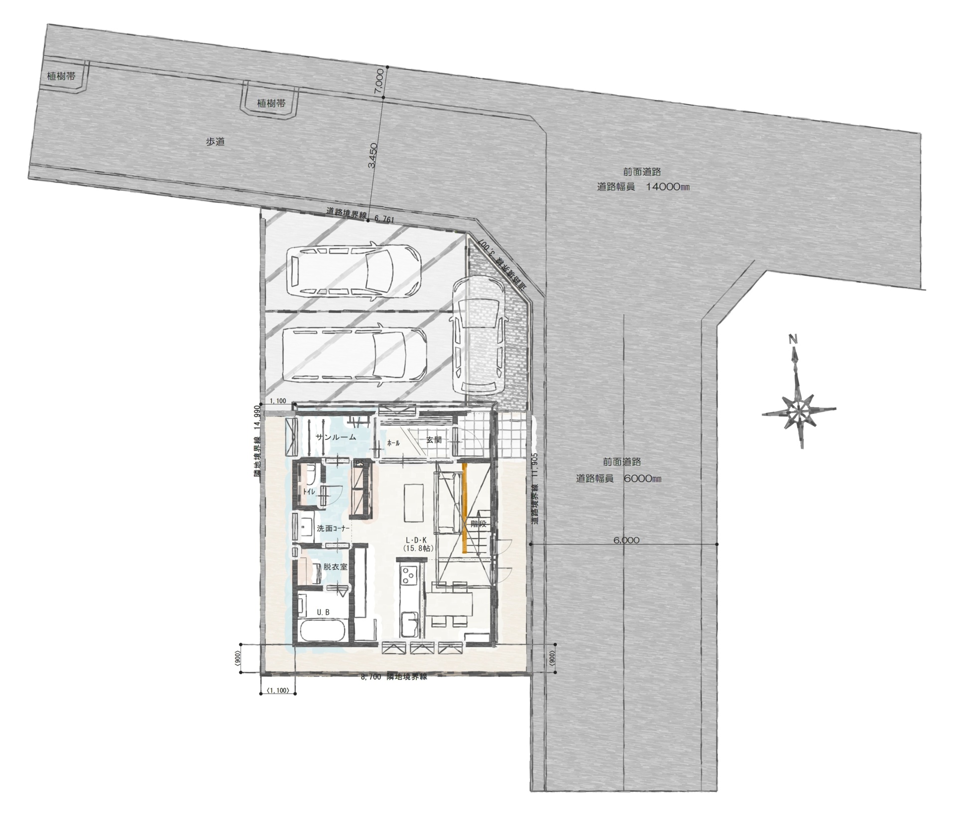
- 間取り
- 3LDK 延床面積:90.07㎡(27.24坪)
ギャラリー
トレンドカラーで仕上げた、開放感あふれる吹抜けリビングの家
外観には、トレンドカラーの「グレー」を採用🌟
凹凸のあるザラッとした質感が映える外壁材で、上品かつモダンな印象に仕上げました。
室内は、美しい鉄骨のオープン階段やあらわし梁、吹抜けを組み合わせ、視線が抜ける開放的な空間を演出。
どこにいても光と風を感じられる心地よいLDKです。
さらに、サンルーム→洗面→脱衣室→浴室が一直線につながる、効率的な水まわり動線を採用!
家事時間を短縮し、日々の暮らしをスムーズに。
寝室には2帖の書斎スペースを設け、リモートワークや趣味時間も快適。
「おうち時間」をもっと豊かに過ごせる住まいです🍃
参加方法
予約制のため、事前にご予約頂いた上でご参加ください。
※1.サイトからのご予約はご来場前日の15時にて締切とさせて頂きます。
※2.締切以降の来場のご希望は、お電話にてスタッフまで直接ご相談下さい。
※3.先着順のため、止むを得ずお時間のご変更やお断りをさせていただく場合がございます。


