- 見学会・オープンハウス
「適材適所の収納」と「遊び心」が同居する、家族にやさしい住まい(越前市芝原)
- 場所
- 越前市芝原2丁目Google MAP
- 日程
- 2026/05/16(土) ~
- 時間
- 10:00~17:00【予約制】
ギャラリー
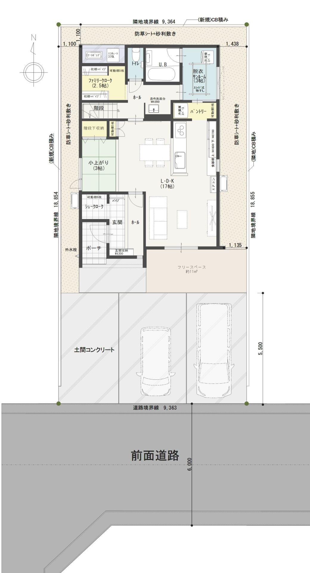
こだわりポイント

01壁面のニッチやアーチ型の飾り棚が、お気に入りの雑貨を飾るギャラリーのような空間

02キッチンから見える小上がりは子供の遊び場、家事、来客の団らんスペース

031階・2階のファミリークロークなど適材適所に設けた豊富な収納
「適材適所の収納」と「遊び心」が同居する、家族にやさしい住まい
家事のしやすさと家族のふれあいを両立させた、こだわり満載の住まい。
注目は、キッチンから見渡せる小上がりスペース。お料理中もお子様の様子を見守れる安心設計で、家事の合間の休憩や来客時の団らんにも最適です🌟
さらに、パントリーや土間収納、1階・2階の両方に設けたファミリークロークなど、荷物が溢れない工夫が随所に光ります。
機能性だけでなく、東面の壁には「犬の足あと」のアクセントクロスを採用し、毎日が楽しくなるキュートな仕掛けも🐶
参加方法
予約制のため、事前にご予約頂いた上でご参加ください。
※1.サイトからのご予約はご来場前日の15時にて締切とさせて頂きます。
※2.締切以降の来場のご希望は、お電話にてスタッフまで直接ご相談下さい。
※3.先着順のため、止むを得ずお時間のご変更やお断りをさせていただく場合がございます。


