- 見学会・オープンハウス
まちなかモデルハウス販売!和モダンで落ち着いた雰囲気のお家(松山市東垣生町)
- 場所
- 松山市東垣生町Google MAP
- 日程
- 2026/04/11(土) ~ 2026/04/30(木)
- 時間
- 10:00~17:00【予約制】
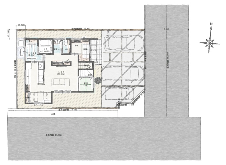
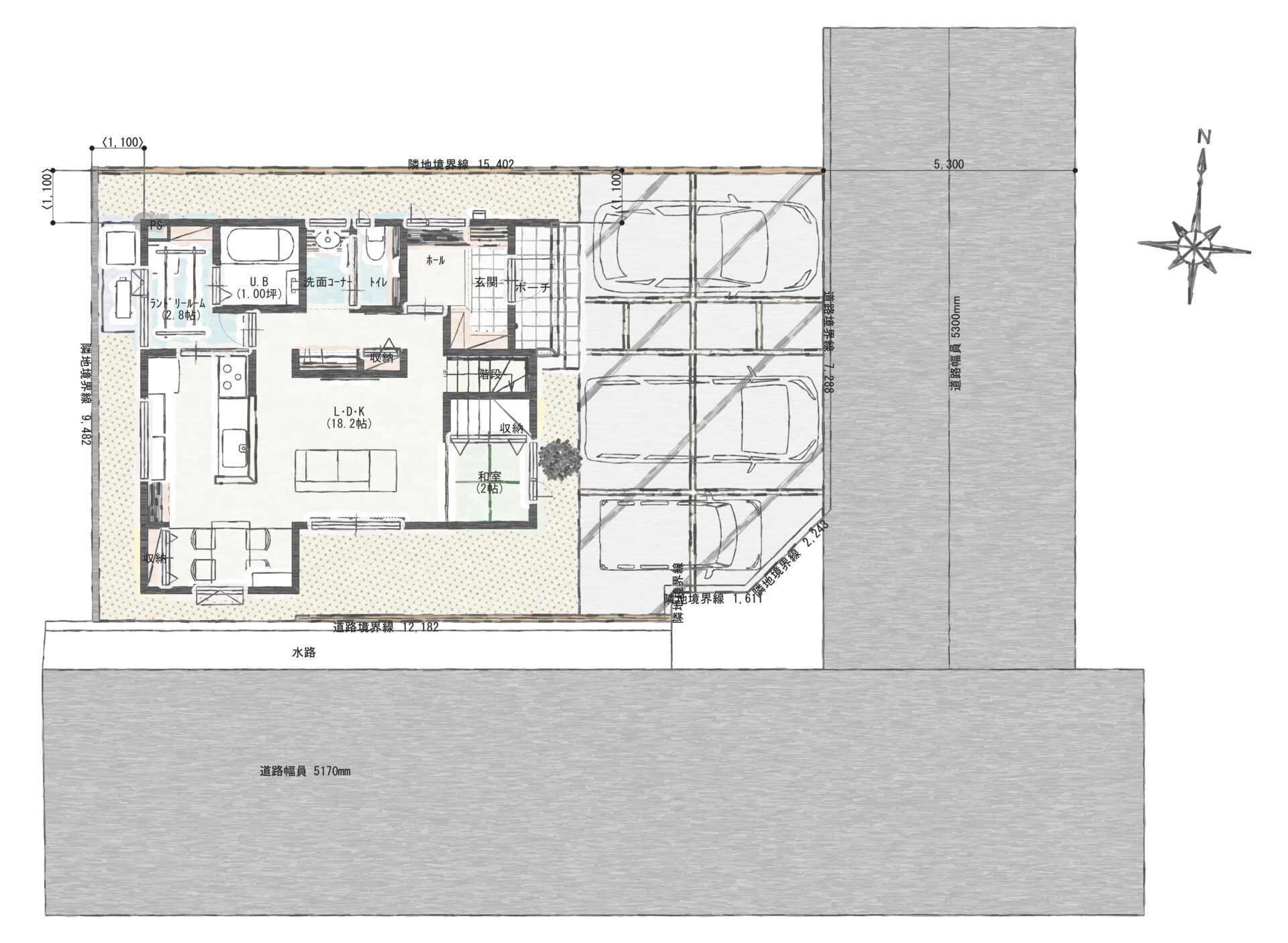
- 間取り
- 3LDK 延床面積:101.64㎡(30.74坪)
ギャラリー
物件ポイント
01災害時も安心『 太陽光パネル 』4.92kW搭載
02「耐震等級3」最高ランクの頑強構造・地震に強い家
03住宅性能評価付き!ZEHを超える高断熱性能の基準「HEAT20 G2グレード」対応
まちなかモデルハウスを販売します!
伝統的な「和」の落ち着きと、現代的な「モダン」が美しく融合した、まちなかモデルハウス
1. 開放感に包まれる、約20帖の広々LDK
和室と一体化することで20帖以上の大空間を実現したLDK。壁一面に広がる大開口窓からは豊かな光が差し込み、リビングに圧倒的な開放感をもたらします。
2. 生活感を消し去る、魔法の「隠す収納」
リビングの顔となるTVボードの裏側には、広々とした隠し収納スペースを確保。散らかりがちな小物や生活用品をスマートに収納できるため、常にモデルハウスのような美しくスタイリッシュな空間をキープできます。
3.毎朝を特別にする、こだわり抜いた造作洗面台
デザイン性の高いタイルやボウルを選定し、まるでホテルのような洗練された空間に仕上げました。一日の始まりを、贅沢な気分で迎えられます。
物件情報
「伝統的な「和」の落ち着きと、現代的な「モダン」が美しく融合した」
まちなかモデルハウス
販売価格:4,000万円(税込)
間取りや周辺環境、内観写真など、詳しい物件情報は下記リンクよりご確認いただけます📍
参加方法
予約制のため、事前にご予約頂いた上でご参加ください。
※1.サイトからのご予約はご来場前日の17時にて締切とさせて頂きます。
※2.締切以降の来場のご希望は、お電話にてスタッフまで直接ご相談下さい。
※3.先着順のため、止むを得ずお時間のご変更やお断りをさせていただく場合がございます。


