- 見学会・オープンハウス
まちなかモデルハウス販売!家事ラク動線と、大人の遊び心が同居する家(松山市東野)
- 場所
- 松山市東野Google MAP
- 日程
- 2026/04/11(土) ~ 2026/04/30(木)
- 時間
- 10:00~17:00【予約制】
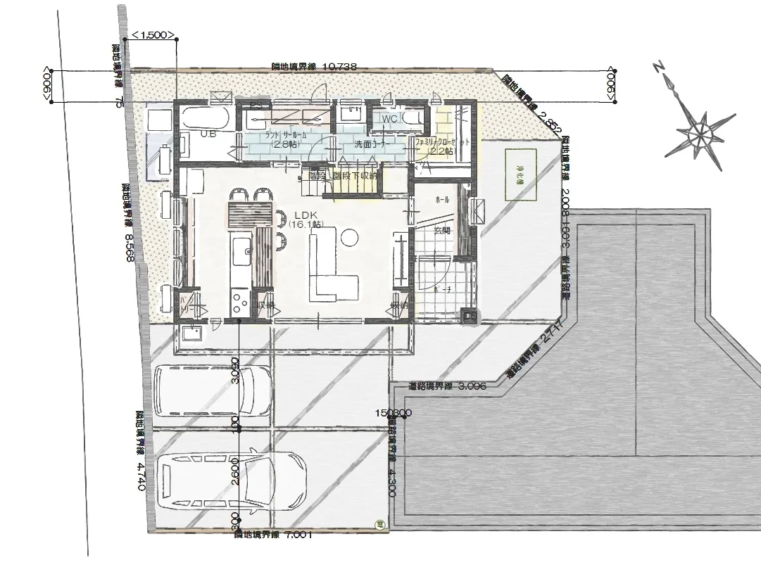
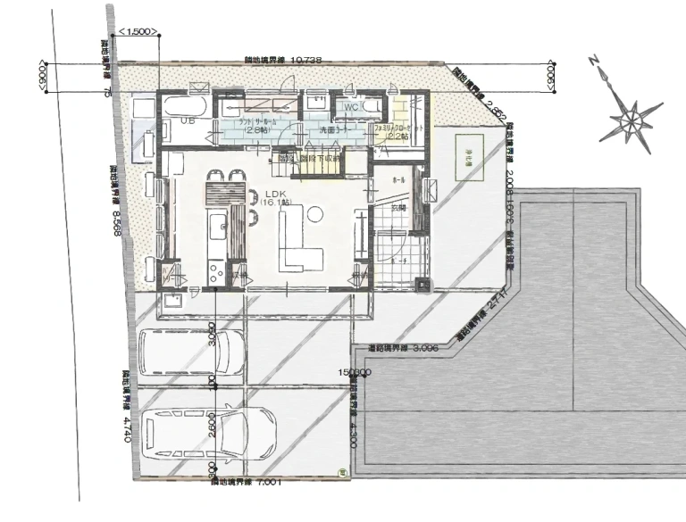
- 間取り
- 3LDK 延床面積:92.32㎡(27.92坪)
ギャラリー
物件ポイント
01災害時も安心『 太陽光パネル 』搭載
02「耐震等級3」最高ランクの頑強構造・地震に強い家
03住宅性能評価付き!ZEHを超える高断熱性能の基準「HEAT20 G1グレード」対応
まちなかモデルハウスを販売します!
スタイリッシュな外観に、暮らしを驚くほど快適にする「家事ラク」のアイデアを詰め込んだ、まちなかモデルハウス
1. キッチンカウンターで愉しむ、バーのようなひととき
キッチンに沿ってL字型に配置されたダイニングスペース。食事の準備をしながら会話が弾むだけでなく、夜は照明を落としてオシャレなバーカウンター風に。
2. 毎日のお洗濯をもっと軽やかに。「3帖のランドリールーム」
雨の日や花粉の時期も安心な、約3帖のゆとりある専用ランドリールーム。広々としたスペースで、洗濯物を干す・畳むの作業がストレスフリーに。
3.究極の効率を実現する「一直線の水廻り×収納動線」
水廻りを一直線に配置したことで、家事の移動距離を最小限に。さらに、洗濯して乾いた衣類はそのまま東側のファミリークローゼットへ「ササッ」と収納。
物件情報
「スタイリッシュな外観に、暮らしを驚くほど快適にする「家事ラク」のアイデアを詰め込んだ」
まちなかモデルハウス
販売価格:3,400万円(税込)
間取りや周辺環境、内観写真など、詳しい物件情報は下記リンクよりご確認いただけます📍
参加方法
予約制のため、事前にご予約頂いた上でご参加ください。
※1.サイトからのご予約はご来場前日の17時にて締切とさせて頂きます。
※2.締切以降の来場のご希望は、お電話にてスタッフまで直接ご相談下さい。
※3.先着順のため、止むを得ずお時間のご変更やお断りをさせていただく場合がございます。


