- 見学会・オープンハウス
まちなかモデルハウス販売!快適な1F寝室と2.5mの折上天井リビング・木目柄のキッチンが魅力的な住まい(徳島市南庄町)
- 場所
- 徳島市南庄町Google MAP
- 日程
- 2026/04/11(土) ~ 2026/04/30(木)
- 時間
- 10:00~17:00【予約制】
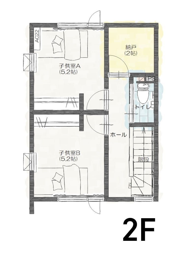
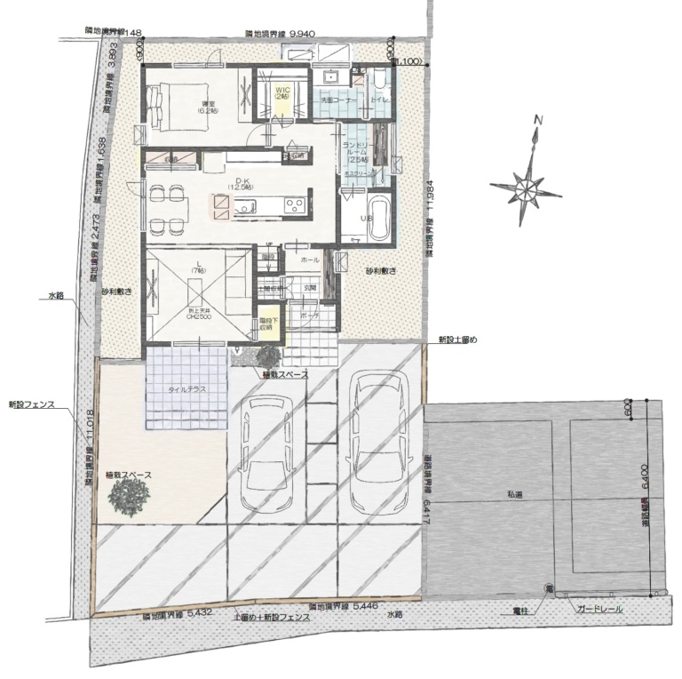
- 間取り
- 3SLDK 延床面積:95.22㎡(28.8坪)
ギャラリー
物件ポイント
01 加茂名中学校、スーパー、ドラッグストア、ホームセンターまで徒歩圏内!
02複数の店舗が揃った、大型ショッピングセンター「タクト」まで車で7分。
03 キョーエイ、くすりのレディ、DMCホームセンターは徒歩圏内の近さ♪
まちなかモデルハウスを販売します!
「今の暮らし」の楽しさと、「将来の暮らし」の安心感。その両方を詰め込んだまちなかモデルハウス
1. 「1階寝室」がもたらす、フラットな安心感
主寝室を1階に配置することで、階段の上り下りなく生活が完結。子育て中の「見守り」がしやすく、将来の老後もワンフロアで快適に過ごせる設計です。
2. 街なかで「おうちアウトドア」を。プライベートテラス
周囲の視線を気にせず過ごせるプライベートテラス。家の中にいながら、いつでもアウトドア気分を満喫できる開放的な空間です。
3.家事と身支度が楽しくなる「広々サニタリー」
ゆとりある広さの洗面台とランドリールーム。洗う・干すがスムーズな動線で、毎日の家事も驚くほど軽やかに。
応募条件
「「今の暮らし」の楽しさと、「将来の暮らし」の安心感。その両方を詰め込んだ」
まちなかモデルハウス
販売価格:4,262万円(税込)
間取りや周辺環境、内観写真など、詳しい物件情報は下記リンクよりご確認いただけます📍
参加方法
予約制のため、事前にご予約頂いた上でご参加ください。
※1.サイトからのご予約はご来場前日の17時にて締切とさせて頂きます。
※2.締切以降の来場のご希望は、お電話にてスタッフまで直接ご相談下さい。
※3.先着順のため、止むを得ずお時間のご変更やお断りをさせていただく場合がございます。


