写真で見るだけではわからなかった、空間や収納の広さ、見え方、暖かさなどをご体験いただけますので、これから建てるお住まいでの具体的な生活のイメージが湧いてきます。
自然に囲まれた癒しの贅沢空間【プライベートテラス】 のある家
新潟市西区小針(まちなかモデルハウス)
- 所在地
- 新潟市西区小針1丁目Google MAP
- TEL
- 025ー230ー3955
- 営業時間
- 10:00 ~ 17:00 ※ご予約時のみオープン
- 定休日
- 水・木曜日
2025/5/31(土曜日)オープンのまちなかモデルハウスです!
\ \ チェックポイント //
✅欲しい場所に最適な収納スペースを確保
✅家族でシェア!1階ファミリークローク
✅リビングと繋がるプライベートテラス
新潟市西区小針(まちなかモデルハウス)でできること
01リアルな体験ができる!
02情報収集がはかどる!
ホームページに掲載されている情報は全体のほんの一部です。モデルハウスでは家づくりに役立つたくさんの資料がありますので、情報収集がはかどること間違いなしです。
03家づくりの相談ができる!
「こんな暮らしをしたい」というイメージがある程度固まったら、モデルハウスの営業マンに話してみてください。理想的な暮らしを実現するための具体的なお住まいの案と、お見積り、実際の進め方などを、わかりやすくご説明させていただきますので、イメージがよりハッキリとしてきますよ。
04住宅ローンの相談ができる!
「住宅ローンはいっぱいあって、何を選んだらいいかよくわからない」という方は、是非ご相談ください。経験豊富なローンアドバイザーが具体的なアドバイスをいたしますので、より良いローンを選んでいただけるでしょう。
まずは見に来て、
感じてください!
百聞は一見にしかず。
写真では伝わらない空間の広がりや、素材の質感、暮らしのイメージを、ぜひ現地でご体感ください。
実際の住まいを見ながら、家づくりのヒントを見つけてみませんか?
皆さまのご来場を心よりお待ちしております。
ギャラリー
おすすめポイント

開放感あふれるLDKは家族が自然と集まる心地よい空間。対面キッチンで料理をしながらも会話を楽しめ、白を基調とした清潔感のあるデザインが毎日の暮らしを豊かに彩ります。

テレビを中心としたスタイリッシュなリビング。ゆったりとしたソファでくつろぎながら、家族団らんの時間を大切にできる落ち着いた空間設計です。

ファミリークロークは家族の衣類をまとめて収納でき、奥のランドリースペースで洗濯から収納まで一連の家事動線がスムーズ。効率的な暮らしを実現する機能的な設計です。

プライベート感を重視した主寝室。大型クローゼットで衣類もたっぷり収納でき、落ち着いた色調で質の高い睡眠時間をサポートする安らぎの空間です。

南向きの明るいバルコニーで洗濯物もよく乾きます。休日にはチェアを置いてリラックスタイムを楽しんだり、バーベキュースペースとしても活用できる開放的な空間です。
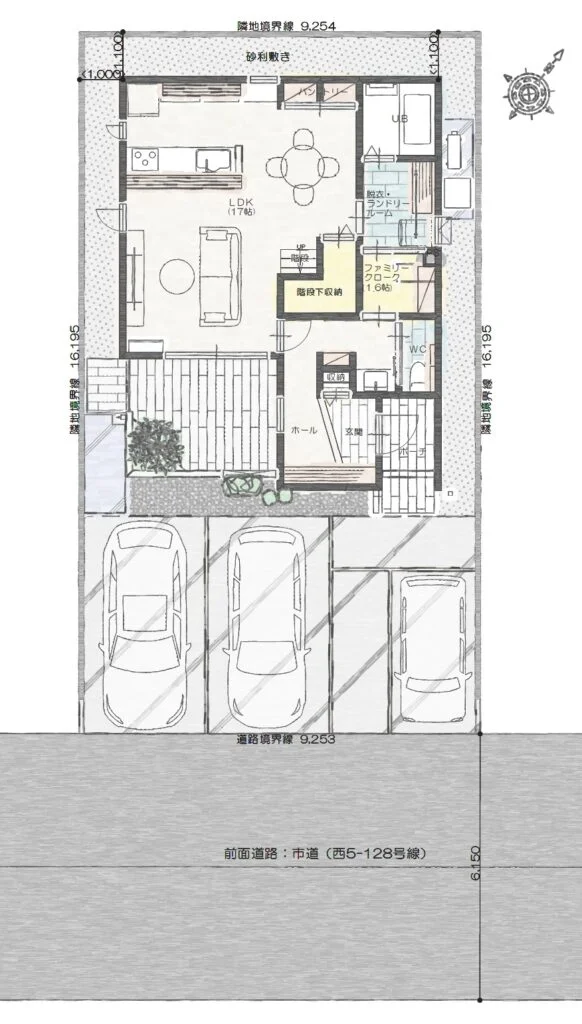
間取り図



自然に囲まれた癒しの贅沢空間【プライベートテラス】 のある家
リビングとつながる陽当たり抜群のプライベートテラスでBBQや外遊びを満喫!
目隠し壁で安心のくつろぎ空間。
家族で使えるファミリークロークや夫婦で分けられる寝室収納など、収納計画もばっちり♩