写真で見るだけではわからなかった、空間や収納の広さ、見え方、暖かさなどをご体験いただけますので、これから建てるお住まいでの具体的な生活のイメージが湧いてきます。
1階で暮らしが完結する、将来も安心の住まい
松山市東垣生町(まちなかモデルハウス)
- 所在地
- 松山市東垣生町Google MAP
- TEL
- 089ー961ー4001
- 営業時間
- 10:00 ~ 17:00 ※ご予約時のみオープン
- 定休日
- 水・木曜日
年末年始休業のお知らせ
平素より格別のご愛顧を賜り、誠にありがとうございます。
年末年始休業については下記のボタンよりご確認ください。
休業期間中でもお問い合わせフォームからご相談いただけますが、返信は年明けの営業開始後に順次対応させていただきます。
縦長の土地を上手に活かし、家事も移動もスムーズにできる“行き止まりのない回遊動線”を採用。
勾配天井のリビングは、明るく開放的でデザイン性も抜群。
歳を重ねても暮らしやすく、今も未来も快適に過ごせるモデルハウスです🍃
松山市東垣生町(まちなかモデルハウス)でできること
01リアルな体験ができる!
02情報収集がはかどる!
ホームページに掲載されている情報は全体のほんの一部です。モデルハウスでは家づくりに役立つたくさんの資料がありますので、情報収集がはかどること間違いなしです。
03家づくりの相談ができる!
「こんな暮らしをしたい」というイメージがある程度固まったら、モデルハウスの営業マンに話してみてください。理想的な暮らしを実現するための具体的なお住まいの案と、お見積り、実際の進め方などを、わかりやすくご説明させていただきますので、イメージがよりハッキリとしてきますよ。
04住宅ローンの相談ができる!
「住宅ローンはいっぱいあって、何を選んだらいいかよくわからない」という方は、是非ご相談ください。経験豊富なローンアドバイザーが具体的なアドバイスをいたしますので、より良いローンを選んでいただけるでしょう。
まずは見に来て、
感じてください!
百聞は一見にしかず。
写真では伝わらない空間の広がりや、素材の質感、暮らしのイメージを、ぜひ現地でご体感ください。
実際の住まいを見ながら、家づくりのヒントを見つけてみませんか?
皆さまのご来場を心よりお待ちしております。
ギャラリー
おすすめポイント

和室を含めて約20帖以上のLDK

TVボードの裏に設けた『隠す収納』

オシャレで特別な造作洗面台

収納力バツグンの玄関収納

屋根付きバルコニーで外干しOK!
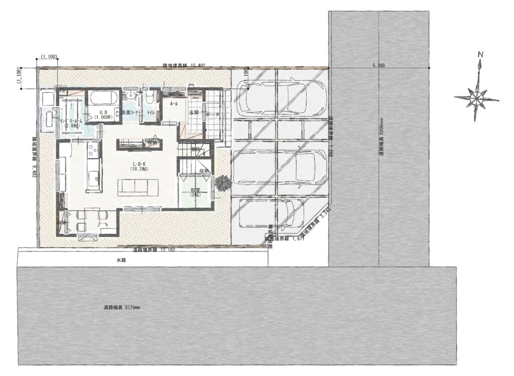
間取り図



1階で暮らしが完結する、将来も安心の住まい
・縦長の敷地形状を生かし、生活空間を1階に集約した“1階完結型プラン”
・キッチン、洗面、ファミリークロークをつなぐ回遊できる家事動線で効率的に
・リビングには勾配天井を採用し、自然光が心地よく入る開放的な空間に
・生活動線とデザイン性を両立した、長く快適に暮らせる間取り