写真で見るだけではわからなかった、空間や収納の広さ、見え方、暖かさなどをご体験いただけますので、これから建てるお住まいでの具体的な生活のイメージが湧いてきます。
子育て家族にちょうどいい!まちなかモデルハウス
徳島市南庄町(まちなかモデルハウス)
- 所在地
- 徳島市南庄町Google MAP
- TEL
- 営業時間
- 10:00 ~ 17:00 ※ご予約時のみオープン
- 定休日
- 水・木曜日
通勤・通学、買い物にも便利な徳島市南庄町に、家族みんなが暮らしやすいリアルサイズの新モデルハウスが完成しました!
内装はホワイト×木目調でまとめた、あたたかみのあるやさしい空間。
19.5帖の広々LDKと、光と風をたっぷり取り込む大開口の窓で、明るく開放的な暮らしが実現します🏠
徳島市南庄町(まちなかモデルハウス)でできること

01リアルな体験ができる!

02情報収集がはかどる!
ホームページに掲載されている情報は全体のほんの一部です。モデルハウスでは家づくりに役立つたくさんの資料がありますので、情報収集がはかどること間違いなしです。

03家づくりの相談ができる!
「こんな暮らしをしたい」というイメージがある程度固まったら、モデルハウスの営業マンに話してみてください。理想的な暮らしを実現するための具体的なお住まいの案と、お見積り、実際の進め方などを、わかりやすくご説明させていただきますので、イメージがよりハッキリとしてきますよ。

04住宅ローンの相談ができる!
「住宅ローンはいっぱいあって、何を選んだらいいかよくわからない」という方は、是非ご相談ください。経験豊富なローンアドバイザーが具体的なアドバイスをいたしますので、より良いローンを選んでいただけるでしょう。
まずは見に来て、
感じてください!
百聞は一見にしかず。
写真では伝わらない空間の広がりや、素材の質感、暮らしのイメージを、ぜひ現地でご体感ください。
実際の住まいを見ながら、家づくりのヒントを見つけてみませんか?
皆さまのご来場を心よりお待ちしております。
ギャラリー
おすすめポイント

家族が自然と集まる19.5帖の開放的LDK

内装はグレー×木目でナチュラルシンプル

ワンフロアで日常生活を過ごせるように寝室を1階に配置

広々とした洗面台とランドリールームで毎日の家事や身支度も楽しく
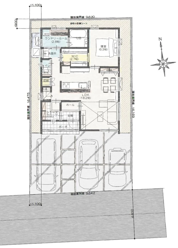
間取り図



家族みんなが心地よく過ごせる、開放感あふれる住まい
19.5帖のゆとりあるLDKは、家族が自然と集まりたくなる心地よい空間。
大開口の窓からは光と風がたっぷり差し込み、明るく開放的な暮らしを叶えます。
リアルサイズにこだわった間取りは、実際の暮らしにちょうどいい設計。
さらに、各所にしっかりと収納を確保することで、毎日の「片付けやすさ」も◎
散らかりにくく、快適さがずっと続く住まいです。