写真で見るだけではわからなかった、空間や収納の広さ、見え方、暖かさなどをご体験いただけますので、これから建てるお住まいでの具体的な生活のイメージが湧いてきます。
家事効率と開放感を両立した、長く愛せる住まい
新潟市南区田中(まちなかモデルハウス)
- 所在地
- 新潟市南区田中Google MAP
- TEL
- 営業時間
- 10:00 ~ 17:00 ※ご予約時のみオープン
- 定休日
- 水・木曜日
◆この間取りのおすすめポイント
✓ 1階完結型で将来も安心、バリアフリー対応も可能
✓ ファミリークローゼットで家事時短を実現
✓ パントリー付きでキッチン周りすっきり
✓ 吹抜けが生む開放感と家族のつながり
✓ タイルテラスでセカンドリビング的な使い方も
✓ 回遊動線で移動がスムーズ、暮らしやすさ抜群
✓ 収納が豊富で「片付く家」を実現
新潟市南区田中(まちなかモデルハウス)でできること
01リアルな体験ができる!
02情報収集がはかどる!
ホームページに掲載されている情報は全体のほんの一部です。モデルハウスでは家づくりに役立つたくさんの資料がありますので、情報収集がはかどること間違いなしです。
03家づくりの相談ができる!
「こんな暮らしをしたい」というイメージがある程度固まったら、モデルハウスの営業マンに話してみてください。理想的な暮らしを実現するための具体的なお住まいの案と、お見積り、実際の進め方などを、わかりやすくご説明させていただきますので、イメージがよりハッキリとしてきますよ。
04住宅ローンの相談ができる!
「住宅ローンはいっぱいあって、何を選んだらいいかよくわからない」という方は、是非ご相談ください。経験豊富なローンアドバイザーが具体的なアドバイスをいたしますので、より良いローンを選んでいただけるでしょう。
まずは見に来て、
感じてください!
百聞は一見にしかず。
写真では伝わらない空間の広がりや、素材の質感、暮らしのイメージを、ぜひ現地でご体感ください。
実際の住まいを見ながら、家づくりのヒントを見つけてみませんか?
皆さまのご来場を心よりお待ちしております。
ギャラリー
おすすめポイント

2階の吹抜けとつながり、縦の広がりを感じる心地よい空間

家族が自然と集まる、ゆとりあるリビング・ダイニング

収納をたっぷり備えたキッチン

開放的な吹き抜け階段

将来を見据えた1階寝室で、階段の上り下りなく生活できる安心設計

ファミリークローゼット:洗濯物をその場で収納、「洗う→干す→しまう」が最短動線で完結

洗面コーナー・脱衣室分離:朝の身支度時も家族とバッティングしません

洗濯機・浴室・脱衣室がまとまった配置:効率的な家事動線を実現

玄関からの回遊動線:荷物を持ったまま直接キッチンへアクセス可能

シューズクローゼット:家族の靴をたっぷり収納
パントリー:食品ストックや日用品をすっきり整理

お子様の個室や趣味部屋として活用、成長に合わせた荷物もしっかり管理
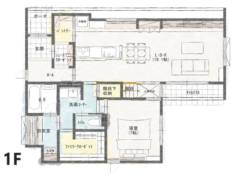
間取り図



1階完結型の暮らしやすさ。家事ラク動線と吹抜けが叶える3LDK+ファミリークローゼット
1階に主寝室を配置した「平屋感覚」で暮らせる2階建て住宅。19.1帖の広々LDKと吹抜けが生み出す開放感、そして家事効率を追求した回遊動線が魅力です。ご夫婦お二人でも、お子様がいるファミリーでも快適に過ごせる機能的な間取りです。