
K様邸
コストを抑えるためセルフビルドで家づくりに積極的に参加、どこを切り取っても絵になる空間

- 建立地
- 富山県
- 家族構成
- お父様・お母様・ご主人・猫ちゃん2匹
- 敷地面積
- 271.90㎡(82.25坪)
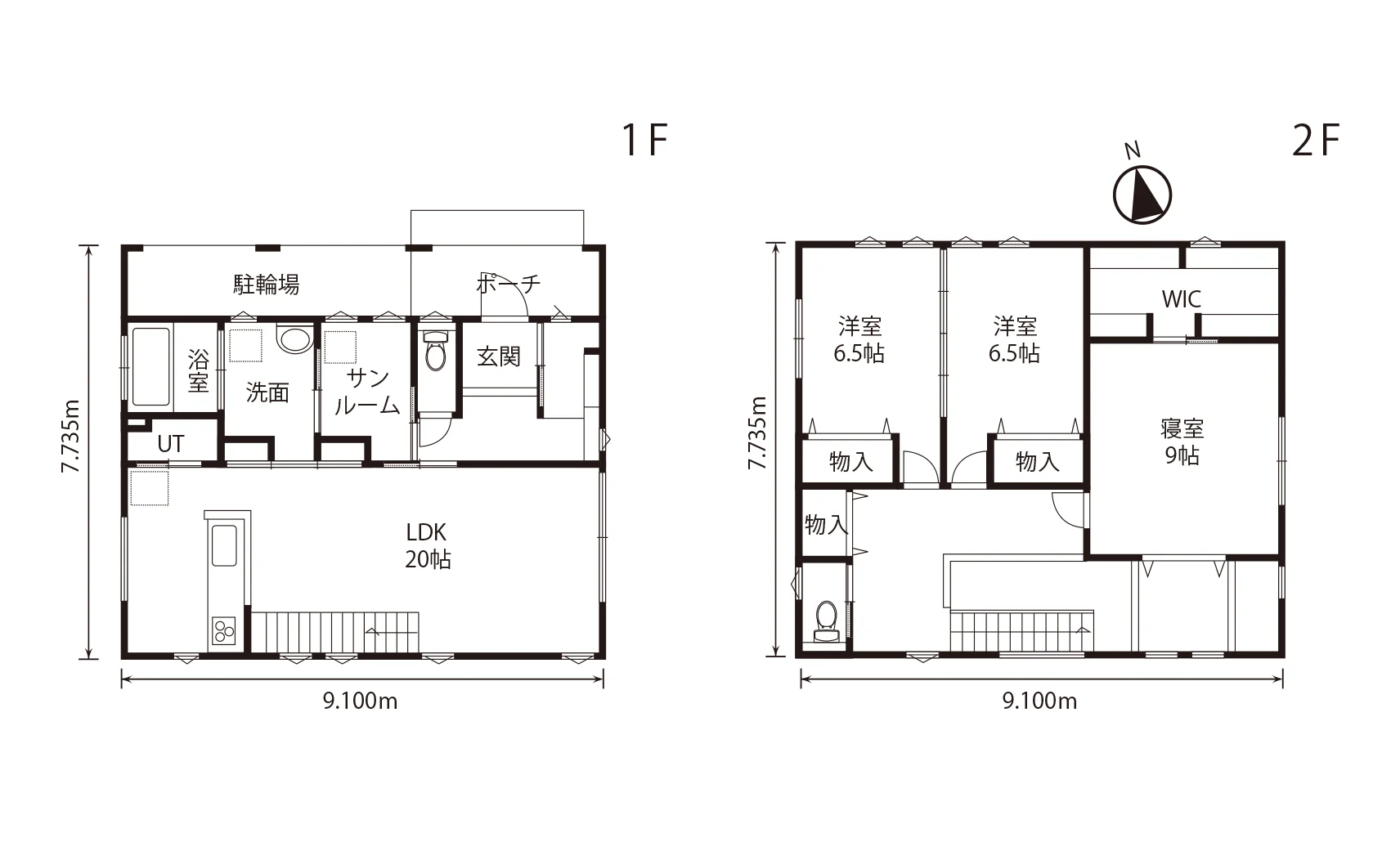
- 延床面積
- 127.51㎡(38.57坪)
お客様からのメッセージ
- Q1ステーツを選んだ理由を教えてください。
-
ご主人
離れて暮らす両親と同居するため、家づくりを考え始めました。車4台が停められる敷地・吹き抜け・スケルトン階段など、新居への想いはたくさんありましたが、予算は2,500万円ほど。「自由設計で、コスパに優れる住宅会社」と、行き着いたのがステーツさんでした。
- Q2プラン決め~完成まで、設計でこだわった点はどこですか?
-
ご主人
ネットで探したお気に入りの施工例を参考に、自分の好きなテイストでコーディネートしました。ものづくりが好きで、キッチンの飾り棚は手づくりしました。また、キッチンのタイル貼りや外壁と天井に使った木の塗装もセルフビルドしました。夏場だったので天井の塗装は大変でしたが、現場の職人さん達と色々と話せて、今となってはいい思い出です!
- Q3最後に一言お願いします!
-
ご主人
予算オーバーしたので、少しでもコストを抑えるために自分で出来る部分はやってみようと思いました。
メンテナンスも自分で出来るので、いつまでも家をきれいに保てます。
お気軽にご来場ください
ステーツの
家を見にいく
全国で年間200棟以上の
オープンハウスを随時開催。
図面では分かりにくい動線や使い勝手、
LDKや収納の広さなどを実際にご覧いただけます。
こちら