
この記事では、庭に屋根を設置する際の屋根の種類やコツを紹介します。一戸建ての庭と家づくりを失敗しないためには、実際の事例から学ぶことが大切です。この機会に、ぜひご覧ください。
- 庭に設置する屋根の種類6つ
- テラス屋根
- オーニング
- パーゴラ
- サンルーム
- ガーデンルーム
- カーポート
- 一戸建ての庭に屋根を設置するメリット・デメリット
- メリット1:日よけ・雨よけができる
- メリット2:室温が上がるのを防げる
- デメリット1:雨や雪が隣に落ちてしまいトラブルをまねくことがある
- デメリット2:増税になる可能性がある
- 一戸建ての庭に屋根を設置するとき失敗しないコツとは?
- 設置する目的をきちんと決める
- 家となじんで長く楽しめるデザインにする
- 気候や環境に合わせた屋根の種類を選ぶ
- 庭に屋根を設置するのに向いているのはどんな人?
- アウトドアが好きな人
- 洗濯物を外に干したい人
- エコな暮らしをしたい人
- 庭に屋根を設置した実際の事例を紹介
- 機能性とデザイン性を兼ね備えた庇(ひさし)のある家
- カーポートの一部を庭の屋根として活用した家
- ウッドデッキスペースを玄関の屋根と繋いだ家
- まとめ
庭に設置する屋根の種類とは?
ここでは、庭に設置する屋根の種類についてくわしく解説します。
テラス屋根
テラス屋根は、タイルやウッドデッキを床にして、その上につくられた屋根を指します。この屋根は、ポリカーボネートという丈夫な材料でできていて、雨や紫外線から守ってくれます。
庭やデッキでリラックスしながら、天気の影響を気にせず快適に過ごせるのはうれしいポイントです。デザインの幅も広いので、家の外観ともピッタリ合わせることができるでしょう。
オーニング
「オーニング」は、屋外スペースを快適でおしゃれに演出するための素敵なアイテムです。一般的には軽量で丈夫なテント生地が使われ、折りたたむことができます。
この特性から、必要に応じて巻き上げることができるため、台風がきてしまっても壊れる心配がありません。シンプルなデザインが美しさを引き立て、庭に軽やかな印象を与えてくれます。
パーゴラ
「パーゴラ」は、イタリア語で「ぶどう棚」を意味しています。見た目がぶどう棚そのものなので、この名前がつけられました。植物を絡ませて、自然素材の庭の屋根が完成します。
パーゴラは庭やテラスに独自のテイストを加えてくれるうつくしいデザインが特徴的です。屋根部分が格子状になっているので、日差しを程よく取り入れつつも、開放感があります。
植物を絡ませているので季節ごとに表情を変えるため、自然も楽しめるのが魅力のひとつです。
サンルーム
「サンルーム」は、庭に取り付けたテラス屋根と透明な壁でできた場所で、別名「テラス囲い」とも呼ばれています。雨や風が強くても、中にいると吹き込まないので安心です。洗濯物を干すこともでき、雨の日でも取り込まなくて大丈夫なのは、うれしいメリットのひとつです。
サンルームでは、美しい庭の景色を楽しみつつ、中は快適な室内空間を楽しめます。透明な壁からたくさんの自然光が入り込むので、室内の明るさも保てるでしょう。寒さや暑さを感じることなく心地よい空間で四季折々の雰囲気を楽しむことができるサンルームは、リラックスする空間としてもピッタリです。
ガーデンルーム
「ガーデンルーム」とは、主に家の大きな窓に隣接した場所で、ガラスやアクリルのパネルで覆われた空間を指します。このスペースはペットや子供が遊んだり、植物を置いたり、または趣味の日曜大工などに使われることがよくあります。
また、洗濯物を干すのにもピッタリで、天気に左右されずに使えるのは魅力的です。このようにガーデンルームは、家の中と外の雰囲気を楽しみつつゆったりと過ごせる場所として、いろんな楽しみ方ができます。
カーポート
「カーポート」は車を駐車するための屋根のことです。その屋根は、テラス屋根と同じく、ポリカーボネートや、アルミ製などの丈夫な材料がよく使われています。
カーポートの下は雨や紫外線から守られていて、安全で使いやすいスペースのため、最近では駐車場としてだけではなく、家庭用のビニールプールを置くなど遊ぶ場所としても使われる傾向にあります。
一戸建ての庭に屋根を設置するメリット・デメリット
ここでは、一戸建ての庭に屋根を設置するメリット・デメリットをくわしく解説します。
メリット1:日よけ・雨よけができる
庭に屋根を設置するひとつのメリットは、日よけと雨よけの機能です。
屋根があれば、真夏の日差しを避けることができ、外での時間が快適に楽しめます。急な雨や悪天候にも影響されずに、外での時間を満喫できるでしょう、
また、家庭菜園やアウトドア家具も、屋根があれば雨や日差しの影響を受けないのは魅力的なポイントのひとつです。
メリット2:室温が上がるのを防げる
屋根を庭に設置するメリットのひとつは、室温の上昇を防げることです。
太陽の光が家に差し込むと、室内が暑くなってしまうことがありますが、家と隣接した庭に屋根があれば、上手に日差しの熱を避けられます。特に夏は、強い日差しから家を守ることで、冷房の使いすぎも防げるでしょう。逆に冬場は、低い太陽高度の光が入るので暖かくできます。
このように快適な室内を保ちつつ、エネルギーコストも節約できるのは魅力的です。ぜひ庭をつくるときは屋根の設置も検討してみてください。
デメリット:雨や雪が隣に落ちてしまいトラブルをまねくことがある
一戸建ての庭に屋根を設置する際のデメリットのひとつは、雨や雪が隣に落ちてしまいトラブルをまねくことがあることです。
屋根が雪を受けた場合、その雪がどこに落ちていくかが重要となります。もし考えないで設置してしまえば、隣のお宅に雪が落ちてしまい、トラブルになるかもしれません。
この問題を防ぐには、屋根を取り付ける前に土地の傾きや水の流れを考えて、調整することが必要です。屋根を設置するときは、隣人とトラブルを起こさないように、きちんと計画をたてて調整しましょう。
一戸建ての庭に屋根を設置するとき失敗しないコツとは?
ここでは、一戸建ての庭に屋根を設置するとき失敗しないコツについてくわしく解説します。
設置する目的をきちんと決める
一戸建ての庭に屋根をつけるとき大事なのは、なぜそれをするのかをしっかり考えることです。屋根の目的はいろいろあって、日差しから守るためや雨や雪をしのぐため、外でリラックスするためなどさまざまです。その目的がハッキリしていないと、屋根をつけても思った通りの効果が得られず、後悔してしまうこともあります。
屋根をつける目的をハッキリさせるには、庭をどの季節や状況で楽しみたいかを考えて、必要な機能やデザインをしっかり決めることが大切です。きちんと決めておけば、ピッタリの屋根の種類やデザインが見つかり、庭が理想の快適な場所になります。
失敗せずに一戸建ての庭を素敵にするには、最初に明確な目的を持つことがポイントです。
家となじんで長く楽しめるデザインにする
一戸建ての庭に屋根をつけるとき大切なのは、家とのバランスを考えて長く楽しめるデザインにすることです。屋根のデザインが家と合っていないとちぐはぐな感じになってしまい、家と庭全体の美しさが損なわれることがあります。
庭に屋根をつけるときは、家の外観やスタイルにあった形や素材を選びましょう。色や質感も統一感があると、尚良いです。そうすることで屋根が自然に家に溶け込んで、庭と家がなじんだ素敵な一戸建てになります。
見た目のデザインだけでなく、使いやすさも考えましょう。具体的には、屋根の形や高さが庭の使い勝手や計画に合っているかを考えます。植物やアウトドアの家具の配置にも気を使うと良いでしょう。
長く愛されるデザインを選ぶことも大切です。一時のトレンドに左右されず、シンプルで時代を超えたデザインを選ぶことで、庭も家もいつまでも楽しめるでしょう。
気候や環境に合わせた屋根の種類を選ぶ
一戸建ての庭に屋根をつけるとき失敗しないために大切にしたいのは、地域の気候や環境にピッタリな屋根を選ぶことです。
例えば、日照時間が長い場所では紫外線に強くて暑さをしのぐ屋根がピッタリです。逆に雨や雪が多い場所では、雨どいがついていたり雪の滑りが良いなど構造が優れている屋根が必要でしょう。風の強い場所では、風向きに対して有効な屋根のかけ方がおすすめです。
屋根の素材もきちんと選ばなければなりません。金属の屋根は丈夫で、瓦の屋根は昔ながらの風情ある雰囲気が漂います。選ぶ素材は地域の気候に合わせつつも、家の外観となじむように選びましょう。
地域に合った屋根を選ぶことで、長持ちする屋外スペースを作れます。ぜひ意識して選んでみてくださいね。
庭に屋根を設置するのに向いているのはどんな人?
ここでは、庭に屋根を設置するのに向いているのはどんな人なのか、くわしく説明します。
アウトドアが好きな人
庭に屋根をつけるのは、アウトドアが好きな人にピッタリです。
例えば、日光浴や庭での読書、家族や友達とのバーベキューなど、いろいろなアクティビティも、屋根があれば雨の日でも関係なく快適に楽しめます。このように天気に左右されず、一年中庭を思う存分楽しむことができるのは、アウトドアが好きな人にとってうれしいことでしょう。
洗濯物を外に干したい人
庭に屋根をつけるのが向いている人は、洗濯物を外に干したい人です。屋根があれば天気を気にせずにいつでも洗濯物を外で干せます。そのため、雨や悪天候を心配せず、いつでも清潔でいい香りのする洗濯物を楽しむことができるでしょう。
また、屋根の下で洗濯物を干せば、強すぎる太陽光や雨から守られるので、洗濯物が劣化したり色褪せたりするのを防ぐことができます。このようなことから庭に屋根をつけるのは、洗濯物を外で干すのが楽しみのひとつとなっている人に向いているといえるでしょう。
エコな暮らしをしたい人
庭に屋根をつけるのは、エコな生活を望む人たちにピッタリです。
屋根があれば、太陽の光を適度に遮ることで、季節によっては室内の温度をエアコンを使わずに心地よく保てます。雨水も屋根を通して集めて再利用できるので、水を節約することにもなるでしょう。
エネルギーを節約したり、自然の恵みを活用したりすることに興味がある人たちにとって、庭に屋根をつけることは、地球環境にやさしいエコな生活を実現する手段となるため、向いているといえます。
庭に屋根を設置した実際の事例を紹介
ここでは、庭に屋根を設置した実際の事例を紹介します。ぜひ一戸建てを建築する際の参考にしてください。
機能性とデザイン性を兼ね備えた庇(ひさし)のある家
家族構成:夫婦+子供2
角地に家を建てる予定で、大きな窓を取り入れて明るく開放的な雰囲気にしたいんですが、それと同時にプライバシーも保ちたいです。庭のスペースも確保して、リビングと一体で使える庭が理想です。どうしたらこれらの要望を実現できるでしょうか?
また、夏の日差しから守るため、外部に庇を設けることで心地良い空間となり、急な雨にも対応できるようになっています。
なお、デザインの一部としても機能させることで、快適で美しい住空間を実現しました。
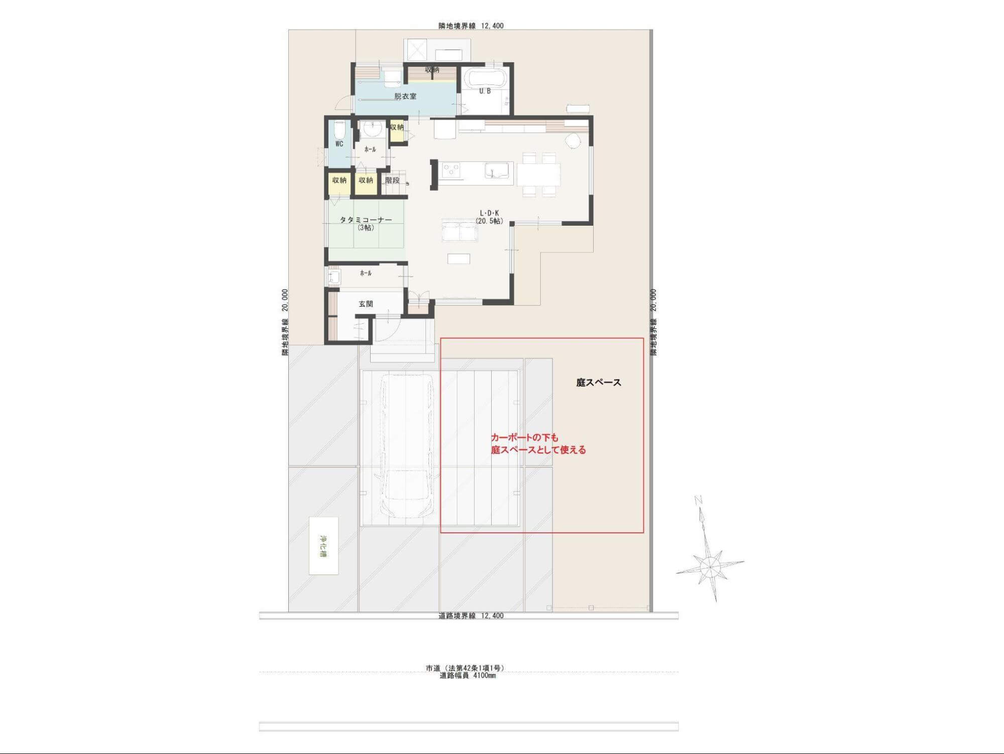
カーポートの一部を庭の屋根として活用した家
家族構成:夫婦+子供2
ウッドデッキスペースを玄関の屋根と繋いだ家
家族構成:夫婦+子供2
同時に、駐車場の後ろへ庭スペースを配置することで、道路からのプライバシー性にも気を配りました。これにより、内と外が一体化した素敵な住まいが実現できています。
まとめ
庭に屋根をつけることで、庭や家の見た目がおしゃれになるだけではありません。機能的で心地の良い屋外スペースを作ることができます。具体的には、日差しから室内を守れたり、雨の日でも庭を利用できたりと、庭に屋根をつけることで生活を豊かにすることができるでしょう。
ステーツではプランナーがお客様に合わせたご提案をさせていただきます。ぜひお気軽にご相談ください。