- 建売住宅
3350万円(税込)
伊予鉄道高浜線 山西 徒歩17分
- 電話問い合わせ(無料)
-
フリーダイヤル 0120-666-940
【受付時間】10時~18時
物件の特徴
\ 家計に優しい”太陽光発電システム”4.92kW搭載! /
\ 白×グレーのスッキリしたシンプルな外観、家具付きの建売です♪ /
《◆価格改定》どど~んと120万円お値引きで” 税込3,350万円”!
【松山市清住A】建売が特別価格に・・・!!
この機会にぜひご検討ください^^
※旧価格:3,480万円(公表日:2024/10/6)→ 3,350万円(価格改定日:2025/1/31)
物件のおすすめポイント
建売のポイント
・ マルナカ・松山病院、徒歩圏内!スーパーが近いので買い物に便利♪
・ 静かな環境で日当たり良好なエリア
・ 家計にやさしい「太陽光発電システム4.92kW搭載」で電気代の節約に!
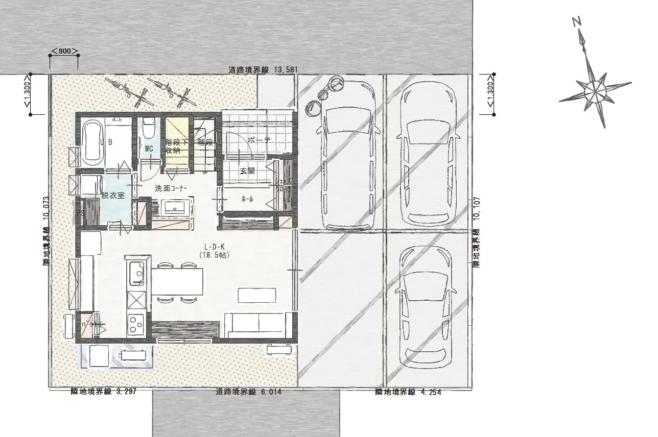
・ 駐車4台OK
・ 毎日の身支度が楽しめる、オシャレな造作洗面台
・ ちょっとした作業やお子様の学習用に使えるスタディカウンターと、
空間に奥行きと特別感を演出してくれる間接照明付き18.5帖のLDK。
・ 2Fの階段横の「フリースペース」は扉のないオープンスペース。
本や趣味のものを並べたり、収納場所に、秘密基地としても利用OK♪
・ 洗濯物やお布団も干せる南面のバルコニー
■「松山市清住A」建売 月々の返済例
(2025年4月現在)
[月々の返済額]79,140円 ※ボーナス払いなしの場合
■諸条件
[価 格] 3,350万円
[頭 金] 100万円
[借入金] 3,250万円
[金利タイプ]新変動金利プラン(保証料含む)
[金 利] 0.80%
[借入先/借入年数]伊予銀行(40年返済の場合)
※ローン諸費用別途
※以下の諸費用が別途必要となります。
・契約印紙代 5,000円
・水道負担金 330,000円
・受益者負担金 34,235円
・境界基礎ブロック費用 359,843円
・水道申請・検査 4,300円
・確認申請費料 21,000円
・完了検査料 23,000円
- 電話問い合わせ(無料)
-
フリーダイヤル 0120-666-940
【受付時間】10時~18時
物件情報
- 物件名
- 松山市清住A 建売住宅 3,350万円
- 価格
- 3350万円
- 間取り
- 3LDK
- 販売戸数
- -
- 総戸数
- -
- 土地面積(㎡)
- 136.94㎡(41.42坪)
- 建物面積(㎡)
- 93.47㎡(28.27坪)
- 私道負担・道路
- 北4.3m 公道 接面13.5m
- 完成時期(築年月)
- 2024年07月
- 住所
- 松山市清住2丁目GoogleMap
- 交通
- 伊予鉄道高浜線 山西 徒歩17分
- 構造・工法
- 木造
- 駐車場
- 4台
- 現況
- 完成済み
- 引き渡しについて
- 即引渡し可
- 小学校区
- 味生小学校
- 中学校区
- 津田中学校
- 用途地域
- 1種住居
- 土地権利
- 所有権
- 建ぺい率
- 60%
- 容積率
- 172%
- 都市計画
- 市街化区域
- 建築確認番号
- 第2023建確-2505号
- 取引態様
- 売主
- 地目
- 宅地
- 地勢
- 平坦
- 備考
- ■土地+建物セットの価格です。
- 電話問い合わせ(無料)
-
フリーダイヤル 0120-666-940
【受付時間】10時~18時
周辺環境

マルナカ清住店(450m)

フジ松江(1000m)

ファミリーマート清住店(450m)

くすりのレデイ別府店
(800m)

ホームセンターコーナン三津浜店(650m)

松山市立津田中学校(1800m)

松山市立味生小学校(1300m)

済生会松山病院(650m)

三津公園(600m)
設備・仕様

バス1坪以上

追焚機能

浴室暖房

浴室乾燥機

トイレ2ヶ所

タンクレストイレ

温水洗浄便座

シャワー付洗面化粧台

室内物干し

省エネ給湯器

IHクッキングヒーター

システムキッチン

グリル

食器洗浄乾燥機

浄水器

ウォークインクローゼット

シューズIC

床下収納

照明器具

間接照明

人感センサー付照明

ダウンライト

電気

上水道

下水道

太陽光発電システム

複層ガラス

エアコン2台以上

ダブルロックドア

モニタ付インターホン

ディンプルキー

火災警報器(報知機)

耐震等級3
物件見学・お問い合わせフォーム
押し売り営業は一切いたしません。
安心してご入力ください。


