- 建売住宅
3690万円(税込)
【最寄り駅】JR大糸線 「松本駅」車で17分
【バス停】アルピコ交通「岡田東区」徒歩2分
- 電話問い合わせ(無料)
-
フリーダイヤル 0120-666-940
【受付時間】10時~18時
物件の特徴
《 ※2025年11月 価格を見直しました!! 》
✼••┈┈┈┈•• ご契約特典付き! ••┈┈┈┈••✼
弊社インテリアコーディネーター厳選!
この建売のために設えた”家具セット”をプレゼント♪
お得なこの機会にぜひご検討ください。
✼••┈┈┈┈┈┈┈┈••✼••┈┈┈┈┈┈┈┈••✼
子育て世帯におススメの好立地。
保育園・小・中学校・スーパーが徒歩圏内!
電気代高騰の中、太陽光4.92kw搭載で光熱費削減。
物件のおすすめポイント
◆物件のPoint ━━*.
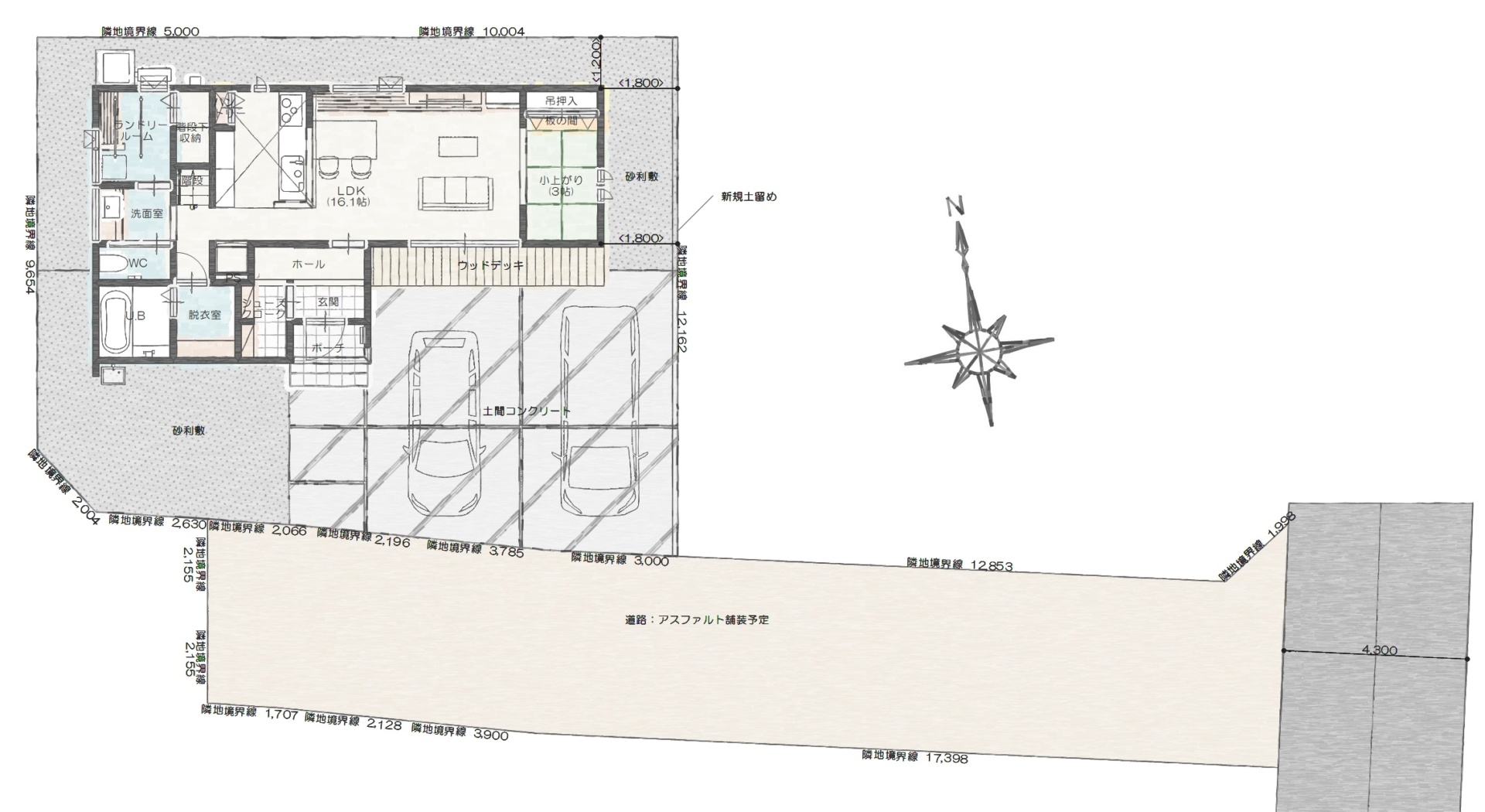
●LDKは造作ベンチ&TV台でスッキリ家具いらず!
●お子様の遊び場やちょっとした客間としても使える小上がり和室。
●充実の水回りスペースは、ランドリールーム・脱衣室・洗面室が分かれている ので、ストレスなく家事ができます。
●温かみのあるグレージュカラーが映えるインテリアに仕上げました。
●リビング用暖房強化型エアコン、寝室用エアコン 計2台付
《 月々の返済例 》
◆【 松本市岡田B 】建売住宅 ご購入の場合
(2025年11月現在)
———————————————
[月々の返済額]86,890円
※ボーナス払いなしの場合
———————————————
■諸条件
[価 格] 3,690万円
[頭 金] 100万円
[借入金] 3,590万円
[金利タイプ]変動金利
[金 利] 0.768%
[借入年数] 40年
※ローン諸費用別途
- 電話問い合わせ(無料)
-
フリーダイヤル 0120-666-940
【受付時間】10時~18時
物件情報
- 物件名
- 松本市岡田B 建売住宅 3,690万円
- 価格
- 3690万円
- 間取り
- 3LDK
- 販売戸数
- -
- 総戸数
- -
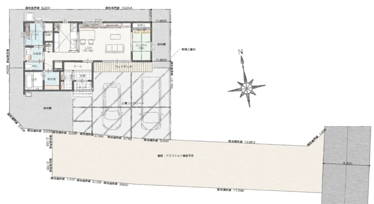
- 土地面積(㎡)
- 228.29㎡(69.05坪)
- 建物面積(㎡)
- 99.38㎡(30.06坪)
- 私道負担・道路
- 【東側】4.3m 接面2.1m
- 完成時期(築年月)
- 2025年03月
- 住所
- 松本市大字岡田下岡田GoogleMap
- 交通
- 【最寄り駅】JR大糸線 「松本駅」車で17分
【バス停】アルピコ交通「岡田東区」徒歩2分 - 構造・工法
- 木造
- 駐車場
- 2台分
- 現況
- 完成済
- 引き渡しについて
- 要相談
- 小学校区
- 岡田小学校
- 中学校区
- 女鳥羽中学校
- 用途地域
- 1種中高
- 土地権利
- 所有権
- 建ぺい率
- 60%
- 容積率
- 178%
- 都市計画
- 市街化区域
- 建築確認番号
- 第24NJM-10-01047号
- 取引態様
- 売主
- 地目
- 宅地
- 地勢
- 平坦
- 備考
- ■建物+土地+外構セットの価格です。
- 電話問い合わせ(無料)
-
フリーダイヤル 0120-666-940
【受付時間】10時~18時
周辺環境

食彩スーパーF(230m)

デリシア桐店
(※車で約5分)(1,800m)

ファミリーマート松本岡田店(850m)

松本市立女鳥羽中学校(1,000m)

松本市立岡田小学校(500m)

松本市岡田保育園(600m)

信州大学医学部附属病院
(※車で約7分)(2,300m)

岡田体育館(500m)

松岡南緑地(1,200m)
設備・仕様

バス 1坪サイズ

追焚機能

浴室暖房

浴室乾燥機

トイレ2ヶ所(1階:タンクレス 2階:温水洗浄便座)

造作洗面台

室内物干し

省エネ給湯器

サンルーム

IHクッキングヒーター

システムキッチン

グリル

食器洗浄乾燥機

浄水器内臓ハンドシャワー水栓

パントリー

ウォークインクローゼット

シューズIC

床下収納

照明器具

人感センサー付照明

ダウンライト

電気

上水道

下水道

太陽光発電システム

複層ガラス

Low-Eガラス

エアコン2台

ダブルロックドア

モニタ付インターホン

ポケットキー

火災警報器(報知機)

耐震等級3
物件見学・お問い合わせフォーム
押し売り営業は一切いたしません。
安心してご入力ください。


