
注文住宅で家を建てる時「南向きの家は建てるな」と言われることがあります。しかし実はこの意見は昔の家を基準にしていることが多く、すべてを真に受ける必要はありません。この記事では南向きの家を建ててはいけないと言われる詳しい理由や、その実態を詳しく解説します。ぜひご覧ください。
理由が知りたいな。
方角別の特徴が知りたいです。
本記事でご紹介する方角別の特徴を踏まえて、ハウスメーカーの担当者に相談してみてくださいね。
- 南向きの家は建てるなと言われる6つの理由
- 1.人気があり土地の価格が高い
- 2.プライバシーの観点が気になる
- 3.夏場は室温が高くなりやすい
- 4.日差しの影響を受けやすい
- 5.北側はほとんど日が当たらない
- 6.土地探しに時間がかかる
- 好条件の土地があれば南向きの家でも大丈夫
- 南向きの家を建てるメリット
- 1日を通して日差しが入りやすい
- 資産価値が高い傾向にある
- 家の目の前に明るい庭を作れる
- 南向きの家の間取り事例
- リビングに日差しが入りやすくした間取り
- プライバシーを確保した間取り
- 縦長の敷地を活かした間取り
- 南向きの家を建てる際のポイント
- 断熱性能にこだわる
- プライバシーに配慮した間取りにする
- 日当たりをもとに部屋の用途を考える
- 耐久性の高い外壁材を採用する
- 採光や通風、デザインのバランスを踏まえて窓のサイズを決める
- 南向き以外の家の特徴
- まとめ
南向きの家は建てるなと言われる6つの理由
なぜ南向きの家は建てるなと言われているのでしょうか。その理由は主に次の6つです。
・人気があり土地の価格が高い
・プライバシーの観点が気になる
・夏場は室温が高くなりやすい
・日差しの影響を受けやすい
・北側はほとんど日が当たらない
・土地探しに時間がかかる
以下でそれぞれの内容を詳しく解説します。
1.人気があり土地の価格が高い
南に面した土地は日当たりが良く人気があることから、エリアによっては土地の取得費用が高額になる傾向があります。
土地の取得費用が大きくなると、予算オーバーになってしまい建物にこだわれない可能性も。土地の方角も重要な要素ですが、住宅購入の予算総額と内訳をもとに選ぶ必要があります。
土地取得価格を下げる手段はないか、信頼できる専門家に相談することがポイントです。
2.プライバシーの観点が気になる
リビングは日当たりの良い南向きにつくることが一般的です。つまり、南向きの土地に家を建てる場合、リビングが道路に面していることになります。車や人通りが多い道路の場合、外からの視線が気になりかねません。
また、プライバシーだけでなく、防犯性の観点からも配慮が必要です。洗濯物が干しにくい、カーテンが開けにくいなど、いつも周囲に気を遣いながら生活しないといけない可能性があります。
ただし、この問題は間取りを工夫することで、いくらでも対処できます。
3.夏場は室温が高くなりやすい
南向きの家は日当たりが良すぎるため、夏場に室温が高くなると言われています。例えば、縁側やベランダなど、南に大きな窓を設けると、夜でも熱がこもることも。
の基準でつくられた断熱性の低い家に言えることであり、近年の住宅ではそこまで心配することではありません。
南向きに大きな窓を設けたい場合は、ハウスメーカーの担当者とも相談をして、断熱性を考慮しましょう。
4.日差しの影響を受けやすい
南の窓からの日差しが強いと、部屋の中が眩しくなるだけでなく、内装や家具が傷む原因になります。
直射日光が家具に当たると温度が上がり、材料の木材が乾いてしまいます。紫外線で焼けて、内装や家具の色が変わると、元の色には戻りません。塗装が黄色くなったり、劣化する要因にもなります。
近年では遮光レースカーテンなどもあるので、必要に応じて上手に取り入れてみましょう。
ステーツ標準仕様の「Low-eガラス」は、窓ガラス面に金属皮膜が含まれています。これにより、紫外線や赤外線を跳ね返し、Low-eが無い窓に比べて室内の日焼けを少なくできます。
5.北側はほとんど日が当たらない
真南に家を建てると、北側にほとんど日が当たらなくなります。室内が暗くジメジメしやすくなります。また、北側の外壁に苔が生えたり、結露で汚れたりすることも。外観を損ねることもあるので要注意です。
ちなみに、ステーツの住宅では外壁と内壁の間に通気層があり、湿気が溜まらない構造になっています。
6.土地探しに時間がかかる
南向きの土地は人気があり希少価値が高い傾向にあります。そのため、南向きの土地にこだわり過ぎると、条件に合う土地が中々見つからず、家が完成するまでに時間がかかる可能性があります。
スムーズに進めるには、色々な選択肢を見てみることも大切ですね。
好条件の土地があれば南向きの家でも大丈夫
「南向きの家を建てるな」と言われていますが、どの方角でも一定のデメリットはあります。方角にはそれぞれ一長一短があり、家を建てるのに完璧な方角などそもそもないからです。
そして、近年では住宅性能が高くなっているため、昔の住宅ほど南向きによるデメリットは多くありません。土地の方位に関わらず、ご自身の理想や予算をもとに希望の住宅が建てられる土地を選びましょう。
南向きの家を建てるメリット
南向きに家を建てる主なメリットは以下の通りです。
・1日中日差しが入る
・資産価値が高い
・明るい庭を作れる
以下でそれぞれのメリットを詳しく解説します。
1日を通して日差しが入りやすい
リビングを南に作ることで1日の長い間、明るく開放的な空間で過ごせます。日中外出している方はその恩恵を受けにくいですが、休日などは充実したお家時間を満喫できるでしょう。
また、自宅で過ごす時間の長い、在宅ワークをしている方などには特におすすめです。
ジメジメしていないので、部屋干しもストレスなくできます。
資産価値が高い傾向にある
南にある土地は人気があって需要が高いため、資産価値も高い傾向にあります。建物は築年数の経過によって価値が減少するため、20年を経過したあたりから、資産価値はほぼ土地値となります。つまり、土地の価値が低いと資産性はほぼありません。
将来的な売却、子供への相続などを踏まえて、資産価値の高い土地を購入するのも1つの選択肢です。資産価値が高ければ、住み替え時にも資金計画が立てやすくなります。
家の目の前に明るい庭を作れる
南向きは家の目の前に明るい庭や、日当たりの良い家庭菜園スペースを設計しやすい点がメリットです。
庭でガーデニングや家庭菜園をしたい方は、ぜひ南向きの土地を検討してみましょう。
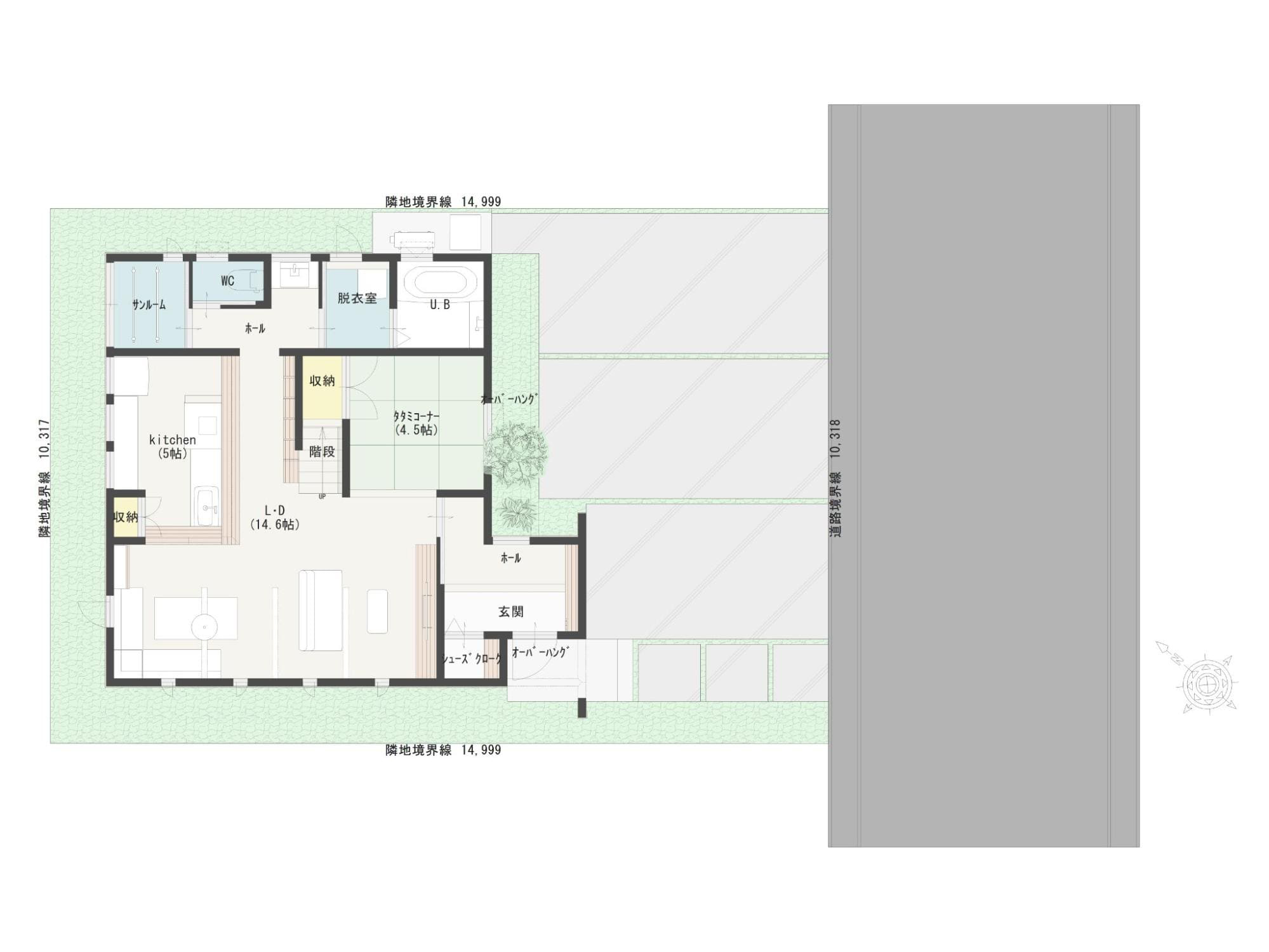
南向きの家の間取り事例
南向きの土地のメリットが理解できたところで、ここからは間取り事例をご紹介します。以下はステーツが建築した南向きの家の間取りです。ぜひ家づくりの参考にしてみてください。
リビングに日差しが入りやすくした間取り
足元の窓はロールスクリーンで隠せるので、テレビを見る時に集中できますね。開放的で子供ものびのび快適に過ごせそうです。
リビングに日差しが入りやすくなっています。
プライバシーを確保した間取り
縦長の敷地を活かした間取り
南向きの家を建てる際のポイント
南向きの家を建てる際には、特に以下のポイントに着目しましょう。
・断熱性能
・プライバシー
・日当たりをもとに部屋の用途を決定
・耐久性の高い外壁材の採用
・窓のサイズ
以下でそれぞれの内容を詳しく解説します。
断熱性能にこだわる
断熱性能が高いと、夏場に室内が暑くなり過ぎる状況を回避できます。エアコンが効きやすくなるため、電気代を抑えるうえでも効果的です。一年を通して快適な家になるよう、断熱性能にはこだわりましょう。
そもそも断熱性が高いと、電気代を抑えられるので良いですね。
プライバシーに配慮した間取りにする
土地や家を下見する段階で、人通りや交通量などをチェックしましょう。その際、実際の生活をイメージすることがポイントです。家具の配置や座ったときの目線の高さなど、普段の生活をもとに間取りを考える必要があります。
プライバシーに配慮した間取りにする工夫は色々あります。例えば家と道路の間に、庭や駐車場でスペースを作ったり、フェンスを設置して見えにくくしたりすることで、人目が気になるストレスを抑えられるでしょう。
日当たりをもとに部屋の用途を考える
方角によって日当たりの特徴は異なります。部屋の配置を決める際には、日当たりを基準にするのも良いでしょう。
例えば北向きの部屋は一般的に、光が入らず、暗いイメージがありますが、その特徴を活かすこともできます。
・寝室にする
・趣味部屋にする
・日焼けさせたくない本や家具を置く
・直射日光に弱い観葉植物を育てる
耐久性の高い外壁材を採用する
南向きは日差しが強いため、外壁が傷みやすい傾向にあります。外壁材の耐久性は、種類によって違うので、耐久性の高い外壁材を採用しましょう。
ただし、完全メンテナンスフリーの外壁材は存在しません。外壁材の耐久性は、平均で10~12年前後。外壁材も住宅のその他の様々な部分と同様に、お手入れが欠かせません。
どのような外壁材の耐久性が高いかは、ハウスメーカーの担当者に相談してみてくださいね。
ステーツでは変色・褪色(たいしょく)に対応する、30年のメーカー保証付き外壁材の取り扱いもあります。
採光や通風、デザインのバランスを踏まえて窓のサイズを決める
注文住宅をはじめ、家づくりのプランニングでは、採光や通風・デザインのバランスを踏まえた窓の計画が大切です。
間取りの検討と合わせて、機能性の高い配置位置や外観デザインを考えましょう。
また、窓の仕様によっては結露を引き起こし、カビなどの原因になることも。
快適な家にするために、窓の知識も深めたいですね。
南向き以外の家の特徴
方角ごとの特徴を把握できると、間取りを考える際に目的に合った部屋を配置しやすくなりますよ。
・北向き:最も日が当たりにくく、暗くて冬は寒い。日照時間は夏以外にない
・東向き:朝日が入り、午後にはかげる。日照時間は西向きと同程度
・西向き:朝は日が入らず、午後にかけて日が入る。日照時間は東向きとほぼ同程度
まとめ
家づくりで大切なことは、方角だけではありません。南向きに限らず、どの方角にもメリット・デメリットがあるため、その方角に適した間取りにすることが大切です。
断熱性能やプライバシー、採光・通風・デザインなどの要素を総合的に考えながら、予算を踏まえて計画的に家づくりを進めましょう。
「土地選びから家づくりをトータルでサポートして欲しい」と言った場合は、できるだけ早い段階で専門家に相談するのがおすすめです。
ステーツではプランナーがご家族一人ひとりのお気持ちに寄り添って、お客様が納得いく家づくりをサポートいたします。ぜひお気軽にご相談ください。