
土足のまま活動できる「土間」。実は近年、土間をリビングとする家づくりが注目を集めています。そこでこの記事では土間リビングの成功事例や新築時に後悔しない対策などを紹介します。ぜひご覧ください。
後悔しないためにも、どんな間取りにできるか事例を知りたいな。
一生に一度かもしれない家づくり。
帰るのが楽しみになる家にするには、どのような点に注意すればいいの?
新築に取り入れる新しいアイディアの一つとして、本記事でご紹介するポイントや事例を参考にしてみてくださいね。
- 土間リビングにして後悔する人がいる理由
- 冬に寒さを感じる
- 土間部分を活用できていない
- 室内の移動が面倒になる
- 段差が不便に感じる
- 頻繁に掃除をする必要がある
- 土間リビングで後悔しないためには対策が重要
- 1.家の断熱性を高める
- 2.湿気対策をする
- 3.複数の用途を考えておく
- 4.段差を小さくする
- 5.床材にこだわる
- 土間リビングのメリット
- 開放感がある
- 人が集まる空間になる
- 多目的に使える
- 汚れが気にならない
- 夏は涼しい
- 土間リビングの間取り実例
- 玄関とリビングを土間で繋げた間取り
- 土間空間を仕切れる間取り
- 大開口の土間がある間取り
- 魅力的な土間リビングにするためのポイント
- 統一感のあるインテリアを選ぶ
- 実用性・プランを考える
- 設備を検討する
- 実績豊富なハウスメーカーに相談する
- まとめ
土間リビングにして後悔する人がいる理由
土間リビングとは土間とリビングを一体化したスペースのことです。
通常のリビングは、フローリングやカーペット敷きなどを素足で歩けます。一方、土間リビングは、床を貼らずにタイルやコンクリート、モルタル、天然石などで仕上げるのが特徴。土足で歩くことを前提に作られたスペースです。
土間リビングはリビングと隣接しており、土間とリビングの移動がスムーズにできるため、非常に機能的です。しかし、なかには「土間リビングにして後悔した」という意見を見聞きすることも。
以下でその理由を詳しく解説します。
冬に寒さを感じる
土間で使われる、タイルやコンクリート、モルタル、天然石などの素材は熱伝導率の高い素材です。
土間が外と繋がっている場合、外の寒さが床材から伝わり、室内に侵入するため、土間部分から底冷えを感じる場合があります。
夏は涼しい反面、冬は寒くなりがちです。そのため、土間リビングを計画する際にはしっかり冬場の寒さ対策を意識して設計する必要があります。
土間部分を活用できていない
室内と外の中間に位置する土間は、インドアとアウトドアの要素を兼ね備えています。しかし、土間リビングを取り入れても、活用しきれず無駄になってしまったという方もいます。
室内の移動が面倒になる
土間が居室にまたがると、物を取りに行く際に毎回、靴やスリッパを履かなければなりません。これが頻繁に発生すると、煩わしく感じる可能性があります。
土間が広いと、移動距離が長くなる分、さらに室内の移動が面倒に感じるでしょう。
段差が不便に感じる
土間を作るとどうしても室内に段差が生じます。そのため、お年寄りや小さな子供がいるご家庭では、転倒や落下の危険もあります。
バリアフリーにはできないため、小さな子供がいる家庭や高齢の両親と同居する家庭は注意が必要です。
頻繁に掃除をする必要がある
土間は家の内外を繋ぐスペースです。土足での出入りがあるため、土間には外部からの砂埃や泥、雨の日の水滴などが原因で汚れが生じることがあります。
掃除が不十分だと室内の印象が損なわれてしまうことも。また、土間部分が濡れていたりすると、転倒の危険もあるため、しっかりとメンテナンスしなければなりません。
土間リビングで後悔しないためには対策が重要
ここまで、土間リビングを取り入れて後悔した理由を紹介しました。では後悔しないために、どのような対策ができるのでしょうか。
この章では次の5つの対策を解説します。
・家の断熱性を高める
・湿気対策をする
・複数の用途を考える
・段差を小さくする
・床材にこだわる
それぞれの対策を詳しくみていきましょう。
失敗しない家づくりに活かしましょう!
1.家の断熱性を高める
基礎部分の断熱が不十分だと、寒い土間リビングになる可能性があります。住宅の断熱材の性能は昔に比べると進化しているため、適切な断熱対策がとれれば、足元の冷えを軽減できます。
また、土間リビングは開放的である一方で、空間から熱が逃げやすく、保温が難しい点も課題です。家全体の断熱性を高めるためには、大きな窓は樹脂サッシや3枚ガラスにするなどの方法もあります。
その他、吹抜けやリビング階段、土間、小屋裏、大開口など、冷暖房効率が下がってしまう要素を取り入れる際は、高性能の暖房を取り入れましょう。
断熱性を重視したメーカーを選ぶことで、土間リビングでも快適な住環境を実現できます。
専門家に相談して、理想の家づくりを実現しましょう。
また、簡易的な寒さ対策としては、薪ストーブや間仕切りの導入も有効です。
2.湿気対策をする
土間は一般的に湿度が高くなりやすい場所です。しかし、適切な断熱材を基礎に組み込むことで湿気の影響を抑えられます。
土間リビングの場合、湿気を調節するために、壁に珪藻土や漆喰を使用する方法もあります。しかし根本的には家全体の断熱性を高めることが重要です。
断熱性能の高い家づくりをするには、土間だけでなく床や壁、窓、天井など他の部分も含めた断熱対策が欠かせません。
3.複数の用途を考えておく
土間を効果的に利用するためには、まず利用目的を明確にしましょう。土間を収納として使用するのか、それとも交流の場として活用するのかによって、必要となる設備が異なるからです。
利用目的が決まったら、次はその目的に合った広さの土間リビングを計画しましょう。スペースが広過ぎると居室を圧迫しますし、逆に狭過ぎると使い勝手が悪くなります。
広さだけでなく、形状も印象や使い勝手に影響を与える要素です。土間リビングの間取りは正方形にするのか、それとも長方形にするのかなども考慮しつつ、設計を進めましょう。
4.段差を小さくする
土間リビングは室内の一部が土間になるため、室内に段差が生まれ、住まいのバリアフリー化が難しくなります。
移動の負担を軽減するには、段差を少なくし、スムーズに土間エリアを使えるようにすることが重要です。
今は問題ない高さの段差でも、年齢を重ねると、小さな段差でもつまずきや転倒の原因となり得ます。段差に気づかずつまずくことを防ぐには、段差の高さだけでなく、床材と色の組み合わせを工夫し、視覚的にわかりやすくすることも効果的です。
5.床材にこだわる
床材にはそれぞれ特徴があります。利用目的に合わせて選択してください。例えばモルタルで仕上げた床材は費用を抑えられますが、ひび割れが生じる可能性があります。
一方、フロアタイルは汚れにくく、多彩な選択肢がありますが、価格が高めな点がデメリットです。しかし、内装の床材に近い分、クイックルワイパーが使えたり、土汚れが無ければ掃除機の使用もできたりするため、掃除しやすい点が特徴です。
天然石は高級感がありますが、価格は高め。水に濡れると滑りやすい特徴があります。
なお、ステーツでは磁器質タイルを採用することが多く、ザラザラした材質であるため、掃き掃除がメインになります。
床材の見た目や安全性、メンテナンス性、コストなど総合的に考慮したうえで、床材を選びましょう。
土間リビングのメリット
土間リビングの主なメリットは次の5つです。
・開放感がある
・人が集まる空間になる
・多目的に使える
・汚れが気にならない
・夏は涼しい
以下でこれらのメリットをさらに詳しく解説します。
開放感がある
土間リビングは周囲よりも一段低く設定されるため、おしゃれで通気性の良い、開放感のあるデザインになります。また、室内と土間の素材の違いによって、視覚的な変化をもたらすことが可能です。
土間と室内の境目は腰掛けにもなるため、縁側のような使い方も可能です。
人が集まる空間になる
土間リビングは人が集まるスペースとして利用しやすいのがメリットです。
土間リビングを使うことで、家に上がるハードルを下げ、かつ玄関で立ち話をするよりも楽にコミュニケーションが取れます。
外からの訪問者や家族が自然に集まり、居心地の良い空間を提供できます。
土間リビングは通常の床から10~20cmほど下げて設計されるため、庭との距離が近くなるのも特徴。
大きな窓を取り入れることで家と庭の境目がさらにゆるやかになり、外界との一体感が得やすくなります。
多目的に使える
土間リビングは子供やペットの遊び場としてだけでなくDIY、ガーデンニングスペースなど、通常のリビングではためらうような用途にも利用可能です。
外のような使い勝手をもちながらも、屋内の快適な環境で天候に左右されずに利用できるのがメリット。汚れや作業の後片付けも気軽に行えます。
汚れが気にならない
土間リビングはコンクリートやタイルなどの耐久性に優れた素材が一般的に使用され、傷がつきにくい特徴があります。ブラシやホウキを使用して容易に掃除ができ、必要に応じて水洗いも可能な高いメンテナンス性が大きなメリットです。
土間リビングは土足で歩くことを前提として作られていますが、飲食物のこぼれや汚れに対しても懸念が少ない点も嬉しいポイント。絨毯やカーペットを敷いているリビングよりも簡単に汚れを取り除けます。
しかし床材にこだわれば、掃除がしやすくなり、汚れや傷が目立ちません。
夏は涼しい
土間リビングでは、夏場に素足で歩くと床がひんやりして気持ち良いという特徴があります。標準的に基礎断熱を行っているので外の暑さの伝わりを抑えて、タイルやコンクリートの素材としてのひんやり感が生まれる点がメリットです。
床部分を広くするほど、室内が涼しく感じられ、夏のエアコン代の節約になります。
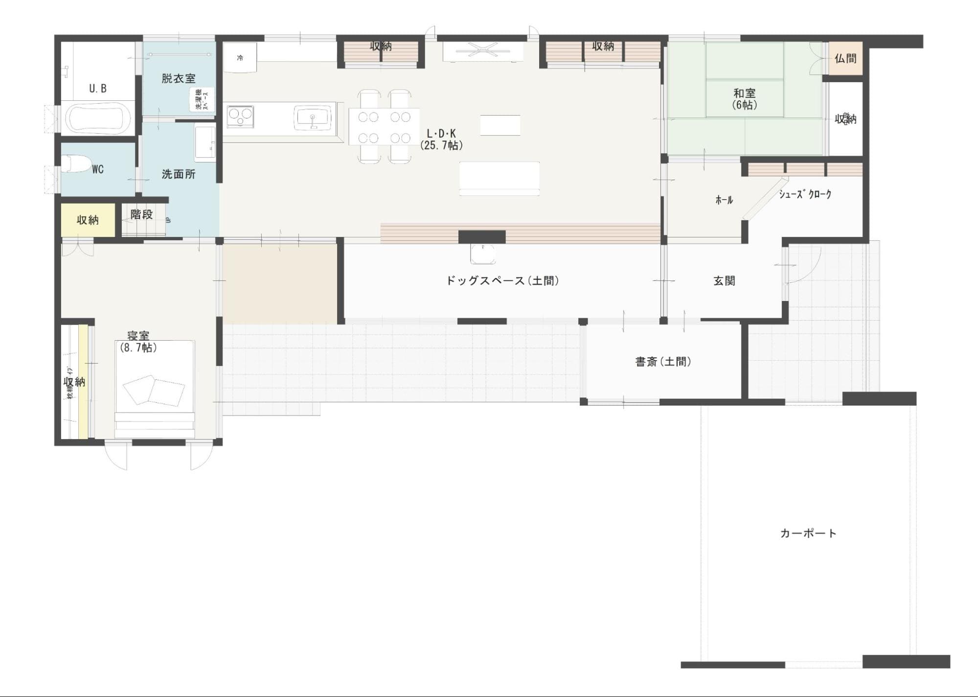
土間リビングの間取り実例
ここからはステーツの土間リビングの間取り実例を紹介します。家づくりの参考になさってください。
玄関とリビングを土間で繋げた間取り
階段は引き戸で仕切れるので、1階だけで暖房空間を区切れるように設計されています。
土間空間を仕切れる間取り
扉を開けばLDKと土間が広がり開放的な空間になりますし、冬場などの寒い時期は扉を閉めることで室内に外の寒気が入ることを防げます。
大開口の土間がある間取り
大開口やリビング階段ではありますが、天井カセット式エアコンなど、高性能の暖房機器で対応しています。
魅力的な土間リビングにするためのポイント
土間リビングの外観や機能性を高めるには、どのような点に気を付けたら良いのでしょうか。ここでは主に次の4つのポイントを解説します。
・インテリア
・実用性・プラン
・設備
・ハウスメーカー選び
以下でそれぞれのポイントを詳しく解説します。
統一感のあるインテリアを選ぶ
土間リビングのインテリアを選ぶ際には、土間部分の色に合わせてインテリアを選ぶと家全体に統一感が生まれます。
例えば、ナチュラル系、ミディアム系(中間色)、ダーク系、ホワイト系、ブラック系など、好きな色をひとつベースカラーとして決めます。そしてその好きな色で家具を揃えるやり方です。
同じナチュラル系でも、合わせる素材や色でイメージが変わります。色だけでなく、生地の素材を合わせるのもポイント。例えばカーテンとクッション、家具の素材が同じだと、統一感が生まれます。
実用性・プランを考える
土間リビングの実用性を考慮する際には、土足OKかどうかを検討する必要があります。例えば雪の日に濡れた長靴で土間リビングまで入ると、リビングが水で濡れてしまう可能性があります。
また、外からそのまま居住スペースに入ってくると、においや湿気が気になる問題も生じるでしょう。
実用性・プランを考えることで、後悔のない土間リビングが実現します。
設備を検討する
土間の利便性を高めるためには、設計の段階で様々な設備を検討することが重要です。
例えば照明やコンセント、可動式の棚、シューズボックス、換気口、水道、排水溝などの設備を検討することがあげられます。
どのような設備を取り入れるかは、土間リビングの用途によって異なるため、まずはどのように使用するのかを明確にしましょう。
実績豊富なハウスメーカーに相談する
ここまでで紹介してきた通り、土間リビングはおしゃれでさまざまな活用方法があります。しかし実は、土間リビングはプランニングが非常に難しいスペースでもあるのです。
快適に過ごすためには、長期的なプランニングと土間リビングのデメリットをカバーできる工夫を施す必要があります。
土間リビングを検討している方は、施工実績が豊富なハウスメーカーにご相談ください。
まとめ
土間リビングには通常のリビングでは実現できない面白みや機能性があります。今回紹介した床材や段差の高さ、設ける位置などのポイントを押さえられると、取り入れた後に「失敗した」と後悔する事態を回避できます。
ステーツではプランナーがご家族一人ひとりのお気持ちに寄り添って、納得いくまで土間リビングのプランをご提案いたします。ぜひお気軽にご相談ください。
