
「愛媛県で注文住宅を建てたい」「費用や相場、人気の間取りが気になる」とお悩みではありませんか?本記事では、愛媛県特有の温暖な気候や台風などの自然環境に配慮した住まいづくりに合わせて、注文住宅の費用・相場について詳しく解説します。また、ステーツの施工事例をもとに、家族が快適に暮らせる理想の間取りのポイントも紹介します。これから愛媛県で家づくりを検討している方は、ぜひ最後までご覧ください。
愛媛県で注文住宅を建てる際の費用と影響する要素
愛媛県で注文住宅を建てる場合、どのくらい費用がかかるのでしょうか。また、どのような要素が家づくりの費用に影響するのでしょうか。
愛媛県の注文住宅の相場
以下では、愛媛県で注文住宅を建てる場合の相場について解説します。
建築費用
注文住宅での家づくりを土地探しから行う場合、「土地取得費用」が必要になります。以下は「2024年度 フラット35利用者調査」を基にした、土地取得費用の比較です。
(抜粋:フラット35利用者調査|住宅金融支援機構)
愛媛県の坪単価は約15万円で、全国平均の約19.7万円と比べて約4.7万円割安です。
敷地面積は246㎡(74.41坪)。全国平均の251.2㎡(75.98坪)と大きな差はなく、同等の広さの土地をより手頃な価格で取得できる点が特徴です。四国平均の約12.2万円よりはやや高い水準ですが、全国的に見るとバランスの取れた価格帯といえます。
このことから、愛媛県では比較的広い土地を全国平均よりも安く購入でき、コストを抑えつつ理想の注文住宅を実現しやすい環境が整っているとわかります。加えて、省エネ住宅を対象にした補助金制度を活用できれば、初期費用の負担を軽減しながら高性能な住まいづくりも可能です。
建築費用
続いて、建築費用の相場を全国・首都圏の平均と比較してみましょう。こちらも「2024年度 フラット35利用者調査」のデータを基にしています。
(抜粋:フラット35利用者調査|住宅金融支援機構)
愛媛県の住宅面積は106.5㎡(32.21坪)。全国平均の111.1㎡(33.6坪)や四国平均の107.7㎡(32.57坪)とほぼ同水準です。建築費用の坪単価は約99.6万円で、全国平均の約104.5万円や四国平均の約101.9万円よりも低く、コストを抑えながら住まいを建てられる点が特徴といえます。
つまり、愛媛県では全国平均と同等の広さを確保しつつ、比較的手頃な価格で注文住宅を実現しやすい環境が整っています。
注文住宅を検討する際は、土地取得費用と建築費用に加え、諸経費が必要です。一般的に建物費用・土地価格以外の費用は、総額の5〜7%を見込んでおくと良いでしょう。
上記を踏まえ、愛媛県で家づくりをする際にかかる各費用の相場は以下の通りです。
・土地取得費用:1,113.4万円
・建築費用:3,211.2万円
・諸経費用:約216万円〜約302万円
これらを合計すると、約4,540万〜約4,644.6万円が愛媛県で注文住宅を建てる際の費用の目安となります(※)。
※世間の平均として見た場合の費用目安
ステーツで家を建てる場合、規模や仕様によりますが、建物税別価格は、2,000万〜2,399万円が目安です。
費用に影響する要素
愛媛県で注文住宅を建てる際、費用に影響する要素を紹介します。
積雪対策
愛媛県は温暖な気候のイメージが強いものの、県南部の山間地では冬季に積雪が見られる地域もあります。
そのため、地域によっては安心して暮らせる住まいを実現するために、以下が必要です。
・断熱性能の高い壁材や積雪を考えた屋根材の使用
・耐雪を考えた構造計算
こうした工夫により、冬でも室内を快適に保ちながら光熱費の削減にも繋がります。しかし、一方で特殊な断熱材や強度の高い構造材の導入も必要です。したがって、一般的な住宅よりも建築費用が高くなるケースがあります。
ステーツは新潟の積雪地域を基準とした家づくりを行っているため、雪の少ない四国では標準仕様でも十分に安心・快適な住まいを実現できます。
塩害対策
愛媛県は瀬戸内海や宇和海に面しており、海に近いエリアでは潮風に含まれる塩分が住宅の外壁や金属部分に付着し、劣化を早める原因となります。
そのため、長く安心して暮らせる家を建てるために、ステーツでは以下のような提案が可能です。
・塩害に強い建材を採用
・サビに強い部材の使用
このような対策により、外壁や屋根、バルコニーの手すりなどが劣化しにくくなり、将来的な修繕コストの軽減にも繋がります。
ただし、耐塩害仕様の建材や塗装は一般的なものより価格が高く、初期の建築費用が上乗せされる点は考慮が必要です。
高温多湿対策
愛媛県は温暖な瀬戸内型気候に属するエリアです。夏場には高温多湿となる日が多いため、快適に暮らすには湿気対策が欠かせません。
特に住宅内部では、以下のような湿気によるカビや結露を防ぐ工夫が重要です。
・高性能な換気システムの導入
・防湿性に優れた建材
また、床下の通気性を高めたり断熱材の種類を工夫したりすると、長く清潔で健康的な住環境を保つことができます。ただし、これらの対策を講じるためには追加の設備導入や施工が必要です。したがって、一般的な住宅よりも建築費用が上がる場合があります。
ステーツではこうした愛媛県の気候特性にもしっかりと対応できる設計・施工を行っており、安心して家づくりを任せられる体制が整っています。
愛媛県で人気の注文住宅の間取りと特徴
以下では、愛媛県で人気の間取りとその特徴を解説します。
愛媛県の家づくりで人気の間取り例
ステーツが提案する愛媛県の注文住宅は、明るく開放感のあるリビングを中心に、家事動線や収納計画を重視した提案が可能です。
中でも、大きな窓から光や風をたっぷり取り込み、明るく開放感のあるリビングを中心にした提案は多くのお客様にご好評いただいています。さらに、家事がしやすい動線を意識した配置にすることで、毎日の暮らしがよりスムーズになります。
また、必要な場所にしっかりと収納を設けたり、家族それぞれのプライベート空間を確保したりすることで、片付けやすく快適に過ごせる住まいになります。
加えて、バルコニーやテラスなど外とつながるスペースを取り入れることで、ガーデニングやおうちアウトドアを楽しむなど、日々の暮らしに豊かさを添える工夫も広く取り入れられています。
平屋の注文住宅の場合
愛媛県では、暮らしやすさを大切にした平屋の注文住宅が人気です。階段の上り下りが基本的になく、子供がいる家庭からシニア世代まで安心して暮らせる住まいとして選ばれています。
また、リビングやダイニングを家の中心に配置することで、家族の気配を感じやすく、自然とコミュニケーションが生まれるのも魅力です。
二世帯の注文住宅の場合
愛媛県では、家族や親戚との繋がりを大切にする風土から、二世帯住宅を選ぶ人も多く見られます。親世帯と子世帯が同じ家で暮らすことで、子育てや介護をお互いに助け合いやすく、安心して毎日を過ごせるのが魅力です。
間取りは、キッチンや浴室など一部を共有するタイプと、それぞれの世帯に独立した設備や部屋を備えるタイプがあり、生活スタイルに合わせて柔軟に設計できます。
ステーツでは、こうした愛媛県ならではの暮らし方にも配慮した家づくりを行っています。
注文住宅の施工事例と間取り
ステーツが建てた、愛媛県の注文住宅の事例を紹介します。
事例01
面積:31.88坪
家族構成:夫婦+子供2人
こちらは洗練されたデザインと、生活しやすい間取りが特徴的な事例です。家族の快適さと暮らしやすさを考え抜いた住まいとなっています。
リビングは高天井に梁を見せ、光がたっぷりと差し込む開放的な空間に。
キッチンと一体型の造作ダイニングテーブルは、カフェのようなおしゃれな雰囲気がありながらも、配膳や片付けがしやすいデザインです。
小上がりヌックは勉強や遊び場として、家族が集まれる居心地の良い場所として最適。ヌックとリビングの間にある壁の開口部を通して会話が自然に生まれます。
1階には一人ひとりのクローゼットを設け、帰宅後すぐに荷物をしまえる工夫も。片付けの習慣が自然と身につきます。
広々としたバルコニーでは、気軽にベランピング(※)を楽しめるのもポイント。日常に非日常の楽しさを取り入れた住まいとなっています。
※自宅のベランダやバルコニーで行うキャンプ気分を味わうアウトドア
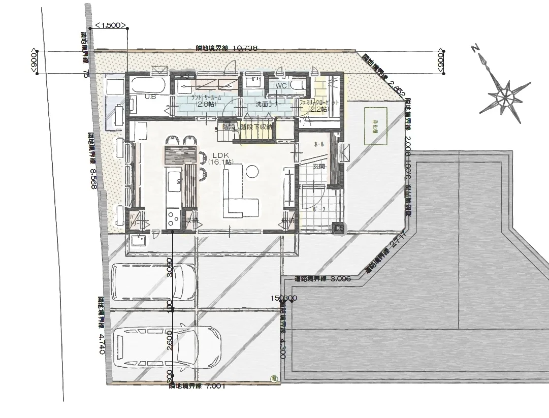
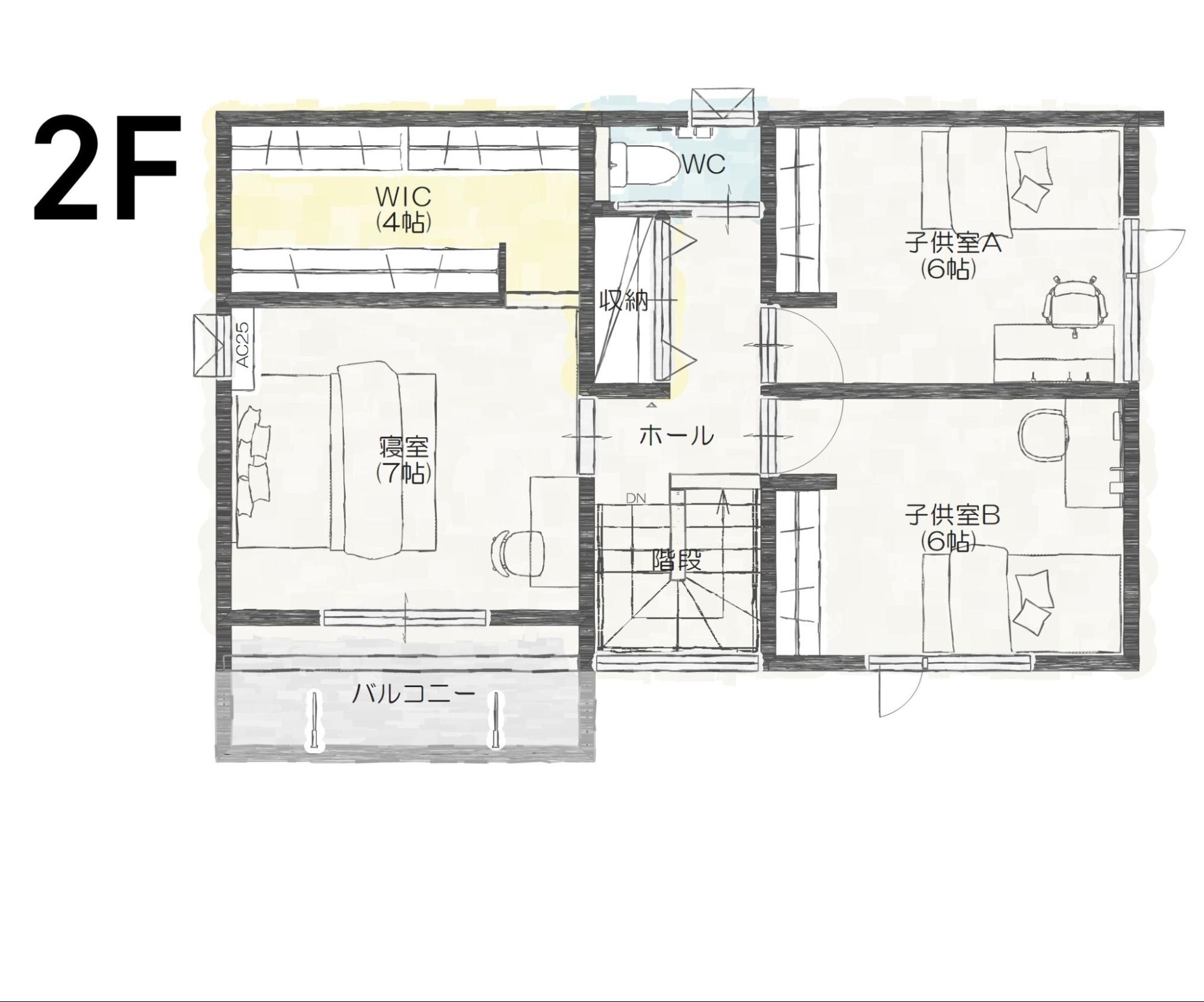
事例02
面積:27.92坪
家族構成:夫婦+子供2人
家族の暮らしやすさを第一に考えた工夫が随所に光る住まいの事例です。
1階のリビングは16帖の広さに加え、大開口の窓から光と風を取り込む間取りが特徴的。明るく開放感あふれる空間となっています。
キッチンに沿ってL字型に配置したダイニングは、バーカウンターのようなおしゃれな雰囲気。家族の会話も自然と弾みます。
ランドリールームの広さは約3帖。一直線にまとめた水回り動線で洗濯から収納まで効率的に行えるのも魅力です。
2階には日当たりの良いバルコニーがあり、洗濯物や布団を気持ち良く干せる快適なスペースとなっています。
耐震等級3やZEH仕様、準耐火仕様といった安心性能。4.92kWの太陽光発電システムで省エネでエコな設計を実現しています。
南側道路で陽あたり良好。3台分の駐車スペースも確保しており、家族みんなが快適に暮らせる理想的な住まいです。
事例03
面積:29.80坪
家族構成:夫婦+子供2人
日本の落ち着いた雰囲気と北欧のシンプルなデザインを融合させた「ジャパンディスタイル(※)」の事例です。
※日本の和の落ち着きと北欧のシンプルで温かみのあるデザインを融合させた住まいのスタイル
ダイニングとキッチンの上部には下がり天井を設置。日常に特別感を添えるデザインとなっています。
家事を助ける強い味方として、ガス衣類乾燥機「乾太くん」を採用。ふんわりと素早く衣類を乾かせるので忙しい毎日も安心です。ゆとりサイズのランドリールームは洗濯から収納までスムーズに行え、家事の負担を大幅に軽減します。
タイルテラスでは、ガーデニングや家族でおうちアウトドアを満喫できます。
まとめ
愛媛県で家づくりを考える際は、温暖な瀬戸内型気候や一部地域での積雪、海沿いの塩害、高温多湿といった自然環境に合わせた設計が欠かせません。断熱性や耐久性に優れた建材の採用、風通しや日当たりを考えた間取り、防湿や防錆といった工夫を取り入れることで、一年を通じて快適に暮らせる住まいが実現します。
また、平屋や二世帯住宅など、家族のライフスタイルやメリット・デメリットを検討することで、安心で暮らしやすい住環境を整えられます。
ステーツでは、愛媛県の気候風土を踏まえた最適な注文住宅をご提案しており、安心して長く住める家づくりをお手伝いしています。モデルハウスのご見学やご相談も承っておりますので、ぜひお気軽にお問い合わせください。