
見学会・キャンペーン

坂井市春江町沖布目 2棟同時住宅完成見学会
このイベントキャンペーンは終了いたしました
2025/03/01(土) ~ 2025/03/31(月)
開催時間 | 10:00~17:00【予約制】 |
---|---|
開催場所 |
坂井市春江町沖布目
|
坂井市春江町沖布目 見学会開催!
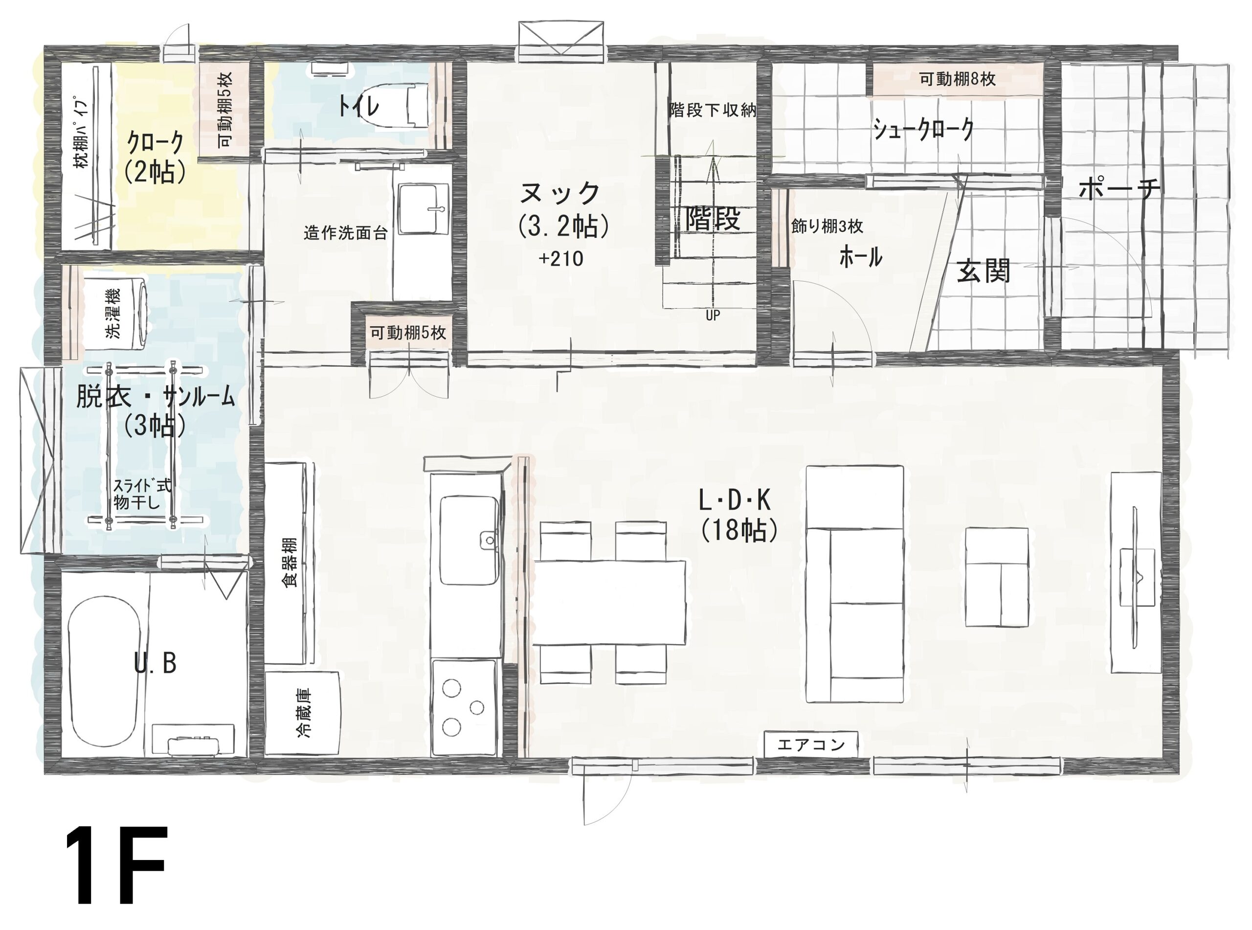
■坂井市春江町沖布目A■

・ヌックと合わせて21.2帖の広々LDK!
・LDKの横には三角入口がかわいいヌックを設け、フリースペースとして使用できます
・シュークロークや1階クローク、造作洗面横のニッチスペースなど適材適所の収納。
・サンルームには室内を広く使えるようスライド式の物干しを設置。
・床材や壁紙のアクセント・建具などのデザインにも注目!

・収納用の納戸があり、季節物や大型の荷物を保管するのに便利です。

・駐車スペース4台OK!
・火災に強く、防火性能の高い「省令準耐火構造」の住まい








■坂井市春江町沖布目B■

・小上がりと合わせて約21帖の広々LDK
・TV裏には おこもり空間の「畳スペース」を設け、自分時間を過ごせます。
・シュークロークや洗面まわりの収納、パントリー、2階ファミリークロークなど適材適所の収納。
・サンルームには室内を広く使えるようスライド式の物干しを設置。

・寝室に設けた固定カウンター、作業スペースやインテリアとして多目的に活用できます。
・家族全員が使える大容量のファミリークローク、5枚の可動棚の設置されているため、収納の自由度が高いです。

・床材や壁紙のアクセント・建具などのデザインにもご注目!
・火災に強く、防火性能の高い「省令準耐火構造」の住まい
・駐車スペース4台分OK!









参加方法
予約制のため、事前にご予約頂いた上でご参加ください。
※1.サイトからのご予約はご来場前日の15時にて締切とさせて頂きます。
※2.締切以降の来場のご希望は、お電話にてスタッフまで直接ご相談下さい。
※3.先着順のため、止むを得ずお時間のご変更やお断りをさせていただく場合がございます。
※2.締切以降の来場のご希望は、お電話にてスタッフまで直接ご相談下さい。
※3.先着順のため、止むを得ずお時間のご変更やお断りをさせていただく場合がございます。

来場希望日の1日前17時~当日のご来場予約については、弊社営業時間(10:00~18:00)内に、
フリーダイヤル 0120-666-940 までお電話いただきますようご協力をお願いいたします。
※営業日にご予約確認をお電話又はメールにてご連絡させていただきます。